Dossier d’œuvre architecture IA29000704 | Réalisé par
  • enquête thématique régionale, Inventaire des fortifications littorales de Bretagne
  • enquête thématique régionale, Inventaire des héritages militaires en Bretagne
Ensemble fortifié (Stützpunkt Roscoff Mo 94), Pointe de Bloscon (Roscoff)
Œuvre étudiée

Dossier non géolocalisé

Localisation
  • Aire d'étude et canton Bretagne Nord
  • Commune Roscoff
  • Lieu-dit Pointe de Bloscon
  • Dénominations
    ensemble fortifié, fort, blockhaus

La pointe de Bloscon à Roscoff constitue l’un des nombreux ensembles fortifiés du Mur de l’Atlantique (Atlantikwall) en Bretagne. L’intérêt du Stützpunkt Roscoff  (point d’appui lourd numéroté "Mo 94") réside à la fois dans la concentration de bunkers - dotés de différents objectifs : maritime ou terrestre - et dans l’étagement des fortifications avec la réutilisation du Fort Bloscon (batterie d’artillerie de côte de l’époque contemporaine implantée sur un fort vaubanien de l’époque moderne, lui-même implanté sur un château fort de l’époque médiévale…)

Au niveau documentaire, le site présente également un intérêt exceptionnel : plans de l'époque française (certains ont été collectés par l’Association "1846"), plans allemands et relevés de bunkers (via Axis History Forum), plans du service interdépartemental de déminage en Bretagne (conservés au mémorial Fort Montbarey à Brest et étudié par Olivier Doher) et photographies de propagande (collectées par Alain Chazette qui dirige la Librairie Histoire et Fortifications).

Ce dossier d'Inventaire du patrimoine a été mis à jour avec ses parties constituantes en 2023 dans le cadre de l'Inventaire des héritages militaires en Bretagne.

Un ensemble fortifié du Mur de l’Atlantique (Atlantikwall)

Lors de la Seconde Guerre mondiale, le Fort Bloscon et la pointe homonyme sont intégrés au Mur de l’Atlantique. Des fermes et maisons sont évacuées de leurs habitants et réquisitionnées pour le logement des soldats. Des bunkers sont construits en 1943 sous maîtrise d’ouvrage de l’Organisation Todt. Ce "point d’appui lourd" (Stützpunkt) numéroté "Mo 94" appartenait au groupe défensif côtier de Morlaix (Küsten-Verteidigungs-Gruppe, abrégé "KVGr"), sous-groupe de Roscoff. Cette position d’infanterie avait pour objectif la défense du port de Roscoff et du chenal de l’Île de Batz contre un débarquement.

Des études préalables sont réalisées par les compagnies géologiques (Schutzstaffel Wehrgeologen-Kompanie) en vue de futures implantations militaires. Les compagnies géologiques assurent notamment l’approvisionnement en eau (Wasserversorgung) des ouvrages existants et à créer (défenses côtières). La dotation d’eau standard est de 20 litres par jour et par soldat en temps de paix et 10 litres en période de combat pour une durée de 21 jours. Cette connaissance du terrain de chaque ensemble fortifié est retranscrite dans un rapport au Génie contenant : l’ordre de mission et le nombre de soldats affectés à l’ensemble, une description de la situation, un rapport géologique et hydrologique, la planification de l’alimentation en eau et une carte de situation (Lageskizze Stützpunkt Roscoff).

Selon le projet initial du 18 avril 1943, il est prévu de construire sept bunkers (Bauwerke) permanents (Ständigen) sur plan-type pour une garnison de 60 soldats :

- deux bunkers - casemates de type 611 pour 10 hommes chacune abritant un canon de campagne ;

- un bunker - casemate de type 653 pour 5 hommes abritant un canon de 5 cm ;

- un bunker - abri observatoire d´artillerie avec toit blindé et créneau bétonné de type 627 pour 5 hommes ;

- un bunker - abri pour un groupe de type 501 pour 10 hommes ;

- deux bunker - abris pour un groupe de type 621 pour 10 hommes chacun ;

Le projet évolue et d’autres bunkers sont construits afin d’améliorer la défense maritime et terrestre. Un réseau de tranchées relie les bunkers entre eux. Si la garnison initiale prévue est de 60 soldats, elle peut être évaluée en 1944 à une centaine de soldats de l’armée de terre (Heer).

Bunkers - abris passifs

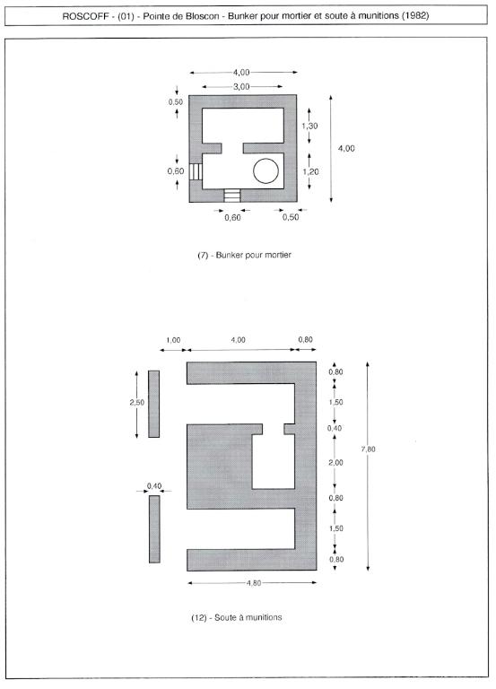
- dans l’enceinte du fort, deux soutes à munitions (une construction spéciale, SK en extension du bunker - casemate de type 611 et un bunker de type VF5a) ;

- dans l’enceinte du fort, deux abris à personnels type tôle ondulée métro (un bunker de type VF1b et un bunker VF Wellblech) ;

- sur la pointe de Bloscon, deux bunkers - abris à personnels de type 621 et un bunker - abri de type 661 à personnels en construction spéciale, SK (il agglomère un bunker - abri 661 et un bunker - abri 622 ; voir le plan réalisé par Olivier Doher) ;

- divers bunker - abris à personnels dont deux baptisés "Felsen" et "Bunker Johann". L’un d'entre eux se trouve près d'An diou Roc’h.

Défense contre des objectifs maritimes

- en contrebas de la chapelle Sainte-Barbe, un bunker - abri observatoire d'artillerie de type 627 ;

- dans l’enceinte du fort, un bunker - casemate de type 611 défendant l’entrée du port de Roscoff (canon de campagne de 75 mm Krupp tirant vers l’Ouest) ;

- sur le boulevard Sainte-Barbe, un bunker - casemate de type 611 défendant le chenal de l’Île de Batz (canon de campagne de 75 mm Krupp tirant vers le Nord-ouest) ;

- sur le boulevard Sainte-Barbe, un bunker - casemate de type 631 défendant le port de Roscoff (canon antichar de forteresse de 4,7 cm Skoda couplé à une mitrailleuse tirant vers l’Ouest) ;

- sur le boulevard Sainte-Barbe, au début de la Jetée de Pen ar Vil, un bunker de type VF67 dit Tobruk-Stand pour tourelle de char Renault FT ;

- sur la micro-falaise côté Baie de Morlaix, un bunker - casemate de type 667 flanquant le fort (canon de 5 cm KwW tirant vers le Nord-est) ;

- sur la micro-falaise côté Baie de Morlaix, un bunker - casemate de type 667 (ou 653 ?) flanquant le fort (canon tirant vers le Nord).

Défense contre des objectifs terrestres

Près de la chapelle Sainte-Barbe, un poste d’observation ;

Implanté au sommet d'An diou Roc’h, un poste d’observation et de tir ;

Près d'An diou Roc’h également, un bunker pour tourelle de char Renault FT (?). Il est accolé au bunker - baptisé "Felsen" (type 621 ?) ;

Plusieurs postes d’observation et de tir dits Tobruk-Stände dont trois situés dans l’enceinte du fort, deux situés près de la chapelle Sainte-Barbe et le dernier situé près de l’actuelle station d’épuration.

A droite de la route principale menant vers le fort, un bunker - abri de type 634 avec une cloche blindée pour mitrailleuse.

Défense par des champs de mines

D’après les plans allemands de minage, l’accès à la pointe de Bloscon est barré par plusieurs champs de mines totalisant 1103 engins (554 mines antichar et 549 mines antipersonnel) :

- champ de mines Elorn I/41 "Linde" (tilleul) divisé en trois sections A, B et C posé le 20 février 1943 au-delà d'An Diou Roc’h (les deux roches). C’est vraisemblablement dans ce secteur que ce trouve le bunker baptisé "Felsen" (rocher).

457 Schützen-Minen modèle 1935 (antipersonnel).

28 T-Minen modèle 1929 (antichar).

- champ de mines Elorn I/92 divisée en deux sections A et B posé le 20 juillet 1943 (3./Pi./Btl. 371 : 42294D)

454 Holz-Minen modèle 1942 (antichar).

- champ de mines Elorn I/136 posé le 28 septembre juillet 1943 (3./Pi./Btl. 371 : 42294D)

92 "Schützen Minen" modèle 1942, partie A  (antipersonnel).

- champ de mines Elorn I/148 posé le 31 mars 1944 (2./Pi./Btl. 266 : 57727C)

72 "Holz-Minen" modèle 1942.

Ces champs de mines sont délimités par des réseaux de barbelés.

23 janvier 1944 : inspection des fortifications par Erwin Rommel

Le dimanche 23 janvier 1944, le Generalfeldmarschall Erwin Rommel, inspecteur des fortifications à l'Ouest puis chef du groupe d'armées B, visite avec le General der Infanterie Erich Straube du 74e corps d'armée les fortifications du Mur de l’Atlantique à Roscoff : on les voit marchant avec d’autres officiers devant le bunker de type 631 surmonté d’un faux crénelage… La tournée démarre à 7h30 du matin et va de Sibiril, situé à l'ouest de Roscoff, à Plounez, près de Paimpol où se trouve une importante batterie d’artillerie sur voie ferrée (4 canons de 203 mm).

3 août 1944 : évacuation de la garnison vers la Festung Brest

L’ensemble fortifié de la pointe Saint-Samson est évacué le 3 août 1944 lors du repli des troupes nazies vers la Festung Brest. La garnison de l’Île de Batz évacue le 7 août en détruisant la caserne centrale, le sémaphore, la partie sommitale du phare, le corps de garde crénelé de la pointe Ouest, deux moulins à vent et des maisons…

La ville de Morlaix est libérée le 8 août 1944 par l’armée américaine. Déminé par les Américains, le port de Roscoff (et de Morlaix) est utilisé pour approvisionner les troupes américaines en route pour assiéger Brest.

L’après-guerre

Les bunkers de la pointe de Bloscon ont progressivement été absorbés par l’urbanisation. Certains ont été remblayés voire détruits comme le bunker - abri observatoire d’artillerie de type 627 qui se situait en contrebas de la chapelle Sainte-Barbe. D’autres sont toujours désaffectés. Certains enfin, servent de support à une maison ou ont été transformés en maison.

Selon le rapport Pinczon du Sel établis entre 1946 et 1947 : "une coupole à mitrailleuse lourde à cinq hublots monte la garde vers l'intérieur derrière Ardiou Roch An diou Roc’h] , aidée par deux bunkers à Tobrouk de mitrailleuses". Il s’agit du bunker de type 634 - actuellement remblayé - localisé dans la parcelle n° 215 de la section AI. Sa cloche blindée pour mitrailleuse a été ferraillée après-guerre.

En arrivant vers la pointe de Bloscon, un bunker - poste de secours de type 661 en construction spéciale, SK, doté d´un agrandissement de type 622 (et d´un abri-puits situé à proximité ?) est situé sur la parcelle n° 193 de la section AI. Le 12 janvier 1946, un refus de démolition de ce bunker a été adressé par le capitaine de Vaisseau Seyeux, commandant le secteur de défense de Brest à la propriétaire madame Guivarch. Ce refus est motivé par le coût prohibitif de la destruction à la charge de l´état ("Génie rural ou Ponts et Chaussées"). Pour un blockhaus de 10 mètres par 20 mètres, la destruction est évaluée par l’administration à un million et demi de Francs soit 4800 Francs le mètre cube de béton. "Ce prix n´est pas en rapport avec la surface et la valeur d´un terrain ainsi récupéré" même d´un "excellent rendement pour les primeurs". "Ils [les terrains] sont encore partiellement parsemés de pierres, de sable etc. provenant des terrassements effectués par les allemands, et ne recouvrent pas leur valeur de culture avant quelques années. On peut se demander si l´intérêt bien compris des propriétaires, exige réellement la démolition de ces constructions dont le résultat sera de mélanger davantage terre arable et sous-sol et de parsemer le terrain de nombreux débris de béton plus ou moins gros dont l´élimination retardera la mise en valeur des terrains".

En 1959, la tourelle de char Renault FT est encore en place sur le bunker de type VF67 dit Tobruk-Stand de la Jetée de Pen ar Vil ; il perd sa tourelle dans les années qui suivent. Celui situé près d'An diou Roc’h a également perdu sa tourelle mais conserve son embase.

  • Murs
    • béton béton armé
  • Toits
    béton en couverture
  • Typologies
  • État de conservation
    état moyen, inégal suivant les parties, menacé
  • Statut de la propriété
    propriété privée
    propriété de la commune
  • Intérêt de l'œuvre
    vestiges de guerre, à signaler
  • Éléments remarquables
    ensemble fortifié, fort, blockhaus

Documents d'archives

  • Rapport Pinczon du Sel. Livre IV. "Le Mur de l´Atlantique de la côte de la Manche et de l´Atlantique du Mont Saint-Michel à la Laïta". 1946-1948.

    Service Historique de la Défense de Brest
  • Fonds d'archives du service interdépartemental de déminage en Bretagne (conservé au mémorial Fort Montbarey à Brest en 2002). Ce fonds est constitué d´une part, des archives de minage provenant de l´Etat-Major Allemand datant de mars 1943 à juillet 1944 et d´autre part, des archives du service de déminage français s´étalant de 1945 aux années cinquante.

  • Collection de photographies réunie par Alain Chazette (Librairie Histoire et Fortifications).

Bibliographie

  • CHAZETTE, Alain. DESTOUCHES, Alain. PAICH, Bernard. Album Mémorial Atlantikwall, Le Mur de l´Atlantique en France 1940-1944. Bayeux : édition Heimdal, 1995, 480 p. ISBN 2-84048088-3.

  • LEVASSEUR, Olivier. Mémoire en Images : Roscoff. Joué-lès-Tours, Alain Sutton, 1998, 127 p.

    Centre de Recherche Bretonne et Celtique, Bibliothèque Yves Le Gallo (Brest)
  • CHAZETTE, Alain, PAICH, Bernard, DESTOUCHES, Alain, BOULARD, Emmanuel. Tobrouk Typologie. Atantikwall - Südwall. Paris : éditions Histoire et fortifications, 2004, 64 p,

  • CHAZETTE, Alain, DESTOUCHES, Alain, TOMINE, Jacques, PAICH, Bernard, LAURENT, Jacky. Atlantikwall. Mythe ou réalité. Bonchamp-lès-Laval : éditions Histoire et fortifications, 2008, 480 p.

    p. 281-282
  • DOHER, Olivier. Fortifications allemandes en France 1940-1944. Un aperçu du minage dans le groupe de fortifications côtières de Morlaix (KVG Mo) de Locquirec à Plouescat. Non publiée, version du 31 juillet 2014, 558 p.

Annexes

  • 23 mars 1942 : les instructions générales de combat pour la défense côtière (2023)
  • Le fonds du service interdépartemental de déminage en Bretagne (conservé au mémorial Fort Montbarey à Brest)
  • Fiche d´inventaire utilisée par les enquêteurs de la Marine pour constituer le rapport Pinczon du Sel (transcription)
  • Le rapport Pinczon du Sel : premier inventaire du Mur de l'Atlantique (1946-1947)
  • Iconographie
Date(s) d'enquête : 2002; Date(s) de rédaction : 2002, 2023
A rapprocher de
(juxtaposé)

Bunker - abri de type VF (dit tôle métro), Fort Bloscon (Roscoff)

Commune : Roscoff
Lieu-dit : Pointe de Bloscon, Fort Bloscon
(juxtaposé)

Bunker - abri de type VF1b (dit tôle métro) pour 6 soldats avec soute à munitions de type VF5a, Fort Bloscon (Roscoff)

Commune : Roscoff
Lieu-dit : Pointe de Bloscon, Fort Bloscon
(juxtaposé)

Bunker - casemate de type 611 avec soute à munitions, Fort Bloscon (Roscoff)

Commune : Roscoff
Lieu-dit : Pointe de Bloscon, Fort Bloscon
(juxtaposé)

Bunker - poste d'observation et de tir dit Tobruk-Stand Est, Fort Bloscon (Roscoff)

Commune : Roscoff
Lieu-dit : Pointe de Bloscon
(juxtaposé)

Bunker - poste d'observation et de tir dit Tobruk-Stand Nord-est, Pointe de Bloscon (Roscoff)

Commune : Roscoff
Lieu-dit : Pointe de Bloscon, Fort Bloscon
(juxtaposé)

Bunker - poste d'observation et de tir dit Tobruk-Stand Ouest, Fort Bloscon (Roscoff)

Commune : Roscoff
Lieu-dit : Pointe de Bloscon, Fort Bloscon
(juxtaposé)

Château fort puis Fort Bloscon, Pointe de Bloscon (Roscoff)

Commune : Roscoff
Lieu-dit : Pointe de Bloscon
Adresse : Boulevard Sainte-Barbe
(juxtaposé)

Fortifications et ensemble fortifié du port de Roscoff (Mo 95)

Commune : Roscoff
Lieu-dit : Le Port
(juxtaposé)

Mur défensif crénelé de la batterie du Fort Bloscon (Roscoff)

Commune : Roscoff
Lieu-dit : Pointe de Bloscon, Fort Bloscon
(juxtaposé)

Murs de soutènements et quai, Fort Bloscon (Roscoff)

Commune : Roscoff
Lieu-dit : Pointe de Bloscon
(juxtaposé)

Poste d'observation et de tir, Roc'h Illievec, Jardin exotique et botanique (Roscoff)

Commune : Roscoff
Lieu-dit : Roc'h Illievec, Jardin exotique et botanique