Dossier d’œuvre architecture IA29000921 | Réalisé par
  • enquête thématique régionale, Inventaire des fortifications littorales de Bretagne
  • enquête thématique régionale, Inventaire des héritages militaires en Bretagne
Bunker - abri pour observatoire d'artillerie de type 627, en contrebas de la chapelle Sainte-Barbe, Pointe de Bloscon (Roscoff)
Œuvre étudiée
Copyright
  • (c) Collection particulière

Dossier non géolocalisé

Localisation
  • Aire d'étude et canton Bretagne Nord
  • Commune Roscoff
  • Lieu-dit Pointe de Bloscon, En contrebas de la chapelle Sainte-Barbe
  • Adresse
  • Cadastre AI 172  ; IA 170
  • Dénominations
    blockhaus, poste d'observation

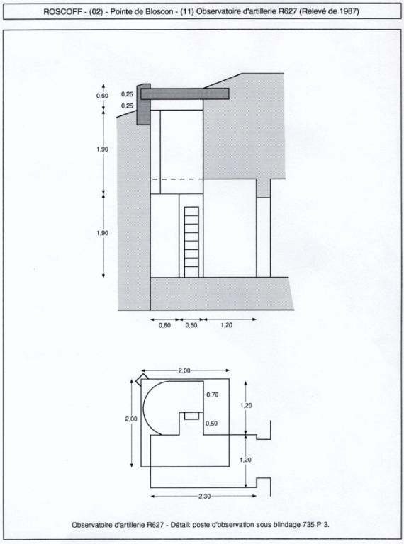
Ce bunker de type 627, élevé par l’Allemagne nazie en 1943 grâce à l’Organisation Todt, a nécessité un terrassement de 900 m3 et pour son édification 630 m3 de béton, 30 t de fer rond en ferraillage et 5,2 t de fer profilé pour le plafond. Implanté en contrebas de la chapelle Sainte-Barbe, il est totalement enterré dans le sol et seule sa dalle de couverture et son poste d’observation blindé émergent. Il s’agit d’un type de bunker assez rare sur le Mur de l’Atlantique (28 exemplaires construits selon Rudi Rolf).

Abritant vraisemblablement le poste de commandement du Stützpunkt Roscoff, sa fonction était également de régler le tir des batteries d’artillerie de campagne de Vézen Doket, Kerdalar, Kerhoant.

Ce bunker a fait l'objet d'un relevé et de photographies par Olivier Doher en 1987.

Il a été publié dans plusieurs ouvrages d’Alain Chazette.

Il a été détruit dans les années 1990.

Bunker construit en 1943 sous maîtrise d’ouvrage de l’Organisation Todt.

Il a été détruit dans les années 1990.

Ce bunker - abri de type 627 était doté d'un observatoire d'artillerie protégé par un toit blindé.

  • Murs
    • béton béton armé
  • Toits
    béton en couverture, acier en couverture
  • Étages
    sous-sol
  • Escaliers
    • escalier intérieur : escalier droit
  • État de conservation
    détruit

Bibliographie

  • CHAZETTE, Alain. DESTOUCHES, Alain. PAICH, Bernard. Album Mémorial Atlantikwall, Le Mur de l´Atlantique en France 1940-1944. Bayeux : édition Heimdal, 1995, 480 p. ISBN 2-84048088-3.

  • FLEURIDAS, Patrick. HERBOTS, Karel. PEETERS, Dirk. Constructions normalisées. 600-699. 700-704. Regelbauten. S. l., 2008, 183 p., 2-914827-27-X.

Documents multimédia

  • Atlantikwall Superforum. Le Mur de l'Atlantique en France. Bunkerarchéologie.

    Message du 15 Juin 2007.

    https://atlantikwall.superforum.fr/t211p280-quiz-bretagne?highlight=Roscoff#6317

Date(s) d'enquête : 2002; Date(s) de rédaction : 2002, 2023