Bunker construit en 1943 sous maîtrise d’ouvrage de l’Organisation Todt. Il est connu par une photographie de propagande.
Dossier d’œuvre architecture IA29000919
| Réalisé par
Lécuillier Guillaume
Lécuillier Guillaume
Cliquez pour effectuer une recherche sur cette personne.
- enquête thématique régionale, Inventaire des fortifications littorales de Bretagne
- enquête thématique régionale, Inventaire des héritages militaires en Bretagne
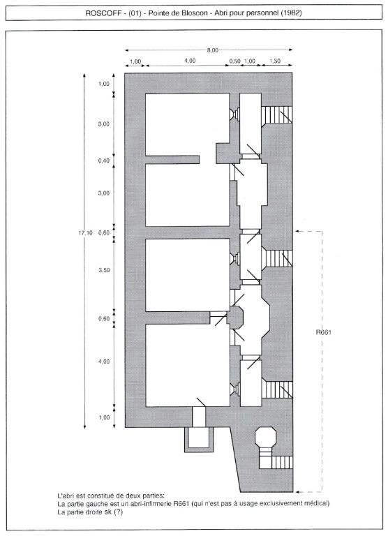
Bunker - abri de type non identifié (type 661 SK ?), Pointe de Bloscon (Roscoff)
Œuvre étudiée
Copyright
- (c) Collection particulière
Dossier non géolocalisé
Localisation
-
Aire d'étude et canton
Bretagne Nord
-
Commune
Roscoff
-
Lieu-dit
Pointe de Bloscon
-
Dénominationsblockhaus
-
Période(s)
- Principale : 2e quart 20e siècle
-
Dates
- 2023, daté par source
-
Auteur(s)
-
Auteur :
Organisation Todtingénieur militaire attribution par travaux historiquesOrganisation TodtCliquez pour effectuer une recherche sur cette personne.
-
Auteur :
Ce bunker n'a pas été localisé avec précision. Il est connu par une photographie de propagande. Pourrait-il s'agir du bunker - abri 661 SK photographié et dessiné par Olivier Doher en 1982 ?
-
Murs
- béton béton armé
-
Toitsbéton en couverture
-
Statut de la propriétépropriété privée
-
Intérêt de l'œuvrevestiges de guerre
- (c) Collection particulière
- (c) Collection particulière
- (c) Collection particulière
Documents d'archives
-
Collection de photographies réunie par Alain Chazette (Librairie Histoire et Fortifications).
Bibliographie
-
CHAZETTE, Alain. DESTOUCHES, Alain. PAICH, Bernard. Album Mémorial Atlantikwall, Le Mur de l´Atlantique en France 1940-1944. Bayeux : édition Heimdal, 1995, 480 p. ISBN 2-84048088-3.
Date(s) d'enquête :
2002;
Date(s) de rédaction :
2002,
2023
(c) Association Pour l'Inventaire de Bretagne
Lécuillier Guillaume
Lécuillier Guillaume
Cliquez pour effectuer une recherche sur cette personne.
Dossiers de synthèse
Articulation des dossiers