Dossier d’œuvre architecture IA29000758 | Réalisé par
  • enquête thématique régionale, Inventaire des fortifications littorales de Bretagne
  • enquête thématique régionale, Inventaire des héritages militaires en Bretagne
Bunker - casemate de type 631, Boulevard Sainte-Barbe (Roscoff)
Œuvre étudiée
Copyright
  • (c) Collection particulière

Dossier non géolocalisé

Localisation
  • Aire d'étude et canton Bretagne Nord
  • Commune Roscoff
  • Lieu-dit Pointe de Bloscon
  • Adresse Boulevard Sainte-Barbe
  • Cadastre AI 793
  • Dénominations
    blockhaus, casemate, poste d'observation
  • Parties constituantes non étudiées
    maison

Bunker construit en 1943 par l’Allemagne nazie sous maîtrise d’ouvrage de l’Organisation Todt. Il est connu par une série de photographies de propagande montrant son camouflage particulièrement soigné : faux appareillage de pierre de taille et plantes grimpantes en peinture sur fond ocre jaune, merlons et créneaux sur la dalle de couverture… Le dimanche 23 janvier 1944, le Generalfeldmarschall Erwin Rommel est photographié devant cette casemate - masquée par des filets de camouflage - lors de son inspection du Mur de l'Atlantique, de Sibiril à Paimpol, secteur de la 266e division d'infanterie commandée par le Generalleutnant Karl Spang.

Le bunker sert d’appui à une maison d’habitation construite en 2016-2017. Sa dalle de couverture est partiellement occupée par une terrasse. Le béton a été repeint faisant disparaitre les dernières traces du camouflage.

Bunker construit en 1943 sous maîtrise d’ouvrage de l’Organisation Todt.

La casemate, armée d’un canon de 47 mm Skoda, est mentionnée comme en bon état dans le Rapport Pinczon du Sel réalisé après-guerre.

Le bunker sert de support à une maison d’habitation construite en 2016-2017.

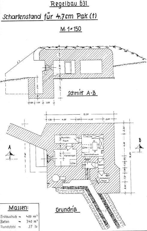
Construit en béton armé, ce bunker - casemate de type 631, conçu pour abriter un canon de 4,7 cm Skoda et une mitrailleuse, regroupe une chambre de tir, un magasin à munitions, une pièce de vie / chambrée pour les soldats avec sas, entrée dédiée défendue par un créneau blindé en caponnière et un second créneau flanquant le couloir d’accès et utilisable depuis la pièce de vie. Sous la chambre de tir est aménagée en sous-sol une soute pour les douilles vides.

Dalle de couverture et murs périphériques mesurent 2 m d’épaisseur, ce qui place ce type de bunker dans les "constructions permanentes" (Ständig Ausbau), c’est-à-dire à l’épreuve des bombes et étanche aux attaques au gaz.

Son embrasure rectangulaire à volet blindée, orientée vers l'ouest-sud-ouest, permettait de prendre en enfilade le port de Roscoff. Son armement est mixte associant sous une même rotule blindée une arme de défense antichar (canon) et une arme anti-personnel (mitrailleuse). Le canon Skoda, 4,7 cm Festung Pak (Panzerabwehrkanone, canon antichar de forteresse) pouvait tirer des obus de rupture, perforant ou explosif. Il était couplé à une mitrailleuse de type "MG37" (Maschinengewehr) d'origine tchèque ("BRNO Vz 37") de calibre 7.92 mm dont la portée utile dépasse les 1000 m.

Le canon Skoda - saboté - est encore en place (état en 2004 lors d’une visite autorisée). Il aurait été démonté et récupéré vers 2015.

Un poste d’observation et de tir circulaire (Ringstand ou Tobruk-Stand), accessible de l’extérieur via un petit escalier, permettait d'assurer la défense rapprochée.

Le mur de flanquement de l’embrasure (côté nord) n’a pas été construit dans son entièreté par rapport au plan-type.

L'équipage théorique de ce bunker était de 6 soldats pour servir le canon et assurer la défense rapprochée.

Le bunker sert d’appui à une maison d’habitation et sa dalle de couverture est occupée par une terrasse. Le béton a été peint faisant disparaître les dernières traces du camouflage.

  • Murs
    • béton béton armé
  • Toits
    béton en couverture
  • Étages
    rez-de-chaussée, sous-sol
  • État de conservation
    désaffecté
  • Mesures
    • l : 12,5 m
    • la : 12,8 m
    • h : 8,9 m
  • Précision dimensions

    Selon le catalogue des plans-types, la réalisation d'un bunker - casemate de type 631 (Schartenstand für 4,7cm FestungsPaK) a nécessité une fouille de 400 m3, 740 m3 de béton, 37 t de fer rond et 6,2 t de fer profilé.

  • Statut de la propriété
    propriété privée
  • Intérêt de l'œuvre
    vestiges de guerre, à signaler
  • Éléments remarquables
    blockhaus

Documents d'archives

  • Collection de photographies réunie par Alain Chazette (Librairie Histoire et Fortifications).

Bibliographie

  • CHAZETTE, Alain. DESTOUCHES, Alain. PAICH, Bernard. Album Mémorial Atlantikwall, Le Mur de l´Atlantique en France 1940-1944. Bayeux : édition Heimdal, 1995, 480 p. ISBN 2-84048088-3.

  • FLEURIDAS, Patrick. HERBOTS, Karel. PEETERS, Dirk. Constructions normalisées. 600-699. 700-704. Regelbauten. S. l., 2008, 183 p., 2-914827-27-X.

Date(s) d'enquête : 2002; Date(s) de rédaction : 2002, 2023