Dossier d’œuvre architecture IA29000725 | Réalisé par
  • enquête thématique régionale, Inventaire des fortifications littorales de Bretagne
Batterie d'artillerie côtière (Mo 86 c) puis station d’expérimentation agricole, Vézen Doquet (Saint-Pol-de-Léon)
Œuvre étudiée

Dossier non géolocalisé

Localisation
  • Aire d'étude et canton Bretagne Nord
  • Commune Saint-Pol-de-Léon
  • Lieu-dit Vézen Doket
  • Cadastre BD 92
  • Dénominations
    batterie, blockhaus, casemate, magasin de munitions
  • Destinations
    institut de recherche, remise

La batterie d’artillerie côtière de Vézen Doquet à Saint-Pol-de-Léon constitue l’un des nombreux ensembles fortifiés du Mur de l’Atlantique (Atlantikwall) en Bretagne aménagés par l'Allemagne nazie. La ferme de Vézen Doquet (et sans doute d’autres fermes) est réquisitionnée durant la Seconde Guerre mondiale pour accueillir des soldats du 266e régiment d'artillerie (266e Artillerie-Regiment) et subvenir aux besoins des chevaux nécessaires au fonctionnement de la batterie hippomobile. Construite "en dur" en 1944, cette batterie d’artillerie côtière, composée de quatre bunkers - casemates de type 669, armés chacun d’un obusier de campagne de 15 cm d’une portée maximum de 13 500 m, avait pour objectif la défense de la baie de Morlaix contre un débarquement ennemi.

L’intérêt de cette batterie d’artillerie est de conserver des marquages et instructions de tir en bon état. En 1965, l’Institut national de la recherche agronomique (INRA) s’installe à Vézen Doquet ce qui préserve le site des dégradations. C’est sur ce site qu’est implantée la station d’expérimentation, gérée depuis 1982 par le Caté (Comité d’Action Technique et Économique), syndicat professionnel regroupant les organisations professionnelles légumières et horticoles de Bretagne.

Les bunkers - casemates de Vézen Doquet sont cadastrées. En raison de leur intérêt historique et architectural, is méritent de figurer dans les documents de planification inter-communaux. Ce dossier d'Inventaire du patrimoine a été mis à jour en 2023 dans le cadre de l'Inventaire des héritages militaires en Bretagne.

L'organisation de la défense côtière

C’est l’armée de terre (Heer) de l’armée du IIIe Reich (Wehrmacht) qui a en charge la défense des côtes bretonnes. La 266e division d’Infanterie (266 Infanteriedivisionen) du General Karl Spang, dont le poste de commandement est implanté au château du Gollot à Plounévez-Moëdec, a en charge le littoral compris entre Saint-Brieuc et Cléder, nommée section de défense côtière KVA A2 qui s’étend sur 240 km. La section de défense côtière KVA A2 est divisée en deux groupes défensifs côtiers (Küstenverteidigungsgruppe, abrégé KVG) à savoir, le KVG Pontrieux et le KVG Morlaix. Tous les ensembles fortifiés commencent par "Mo" en référence à la commune de Morlaix.

Le commandement allemand a tenu en permanence un groupe de trois batteries d’artillerie côtières divisionnaires (Divisionsbatteries) dans la région de Saint-Pol-de-Léon afin de défendre la baie de Morlaix contre un éventuel débarquement.

Des batteries d'artillerie hippomobiles

Ces batteries d'artillerie sont dites hippomobiles car les canons et le matériel nécessaire - dont les projectiles (obus et gargousses) - sont tractés par des chevaux. Pour le fonctionnement d’une seule batterie d’artillerie de quatre pièces, il faut compter 3 officiers, 24 sous-officiers et 86 hommes de troupe ainsi que 20 chevaux de monte et 75 chevaux de trait.

La construction des bunkers de la batterie de Vézen Doket

La batterie d'artillerie a occupé des positions de campagne, de l’automne 1942 jusqu'au début de 1944, année où les bunkers sont construits à Vézen Doket. La ferme toute proche et ses terres sont réquisitionnées pour assurer son fonctionnement (la ferme apparaît sur le plan issu du rapport Pinczon du Sel).

La batterie d’artillerie côtière de Vézen Doket est numérotée "Mo 86c" : elle appartient au groupe défensif côtier de Morlaix, sous-groupe de Roscoff. Cette batterie dépendait du 2e puis du 4e / régiment d'artillerie (266e Artillerie-Regiment) de l’Armée de terre. Les bunkers de cette batterie côtière nouvellement construite n'ont pas été utilisés.

Après le débarquement de Normandie, la batterie et ses servants sont envoyés vers Saint-Brieuc d’où ils reviennent trois semaines après, avant de repartir vers la Festung Brest à la fin du mois de juillet 1944. Alors que commune de Saint-Pol-Léon attend sa libération par les troupes américaines, des soldats allemands massacrent des civils le 4 août 1944 dont le maire Alain Budes de Guébriant.

L'armement de la batterie

La batterie d'artillerie était armée de 4 canons de campagne 7,62 cm (FK 39, abréviation de Feldkanone) d’origine russe remplacés ensuite par 4 obusiers de 15 cm (sFH 18, abréviation de schwere Feldhaubitze, littéralement gris obusier lourd de campagne). Si les canons de campagne avaient une portée maximum de 4 000 m, les obusiers de campagne atteignent 13 500 m.

L’embrasure de chacune des casemates permet le tir indirect dans un secteur de 60 degrés en azimut (plan horizontal) et une possibilité de pointage en site de moins 9 degrés à plus 35 degrés (plan horizontal : le réglage de la hauteur permet d'augmenter la distance du tir). Cent projectiles de 15 cm peuvent être stockées comme coups de réserve dans les niches à munition de chaque casemate : le reste des projectiles est stocké dans des magasins à munitions semi-enterrés.

La section de gauche de la batterie a son axe de tir dans le chenal de l'ilot Saint-Anne et dans l'entrée de l'anse de Pempoul à Saint-Pol-de-Léon (vers le Nord-est). Elle peut soutenir l'ensemble fortifié "Mo 89". L'objectif est à 4 000 m environ mais les obusiers peuvent également défendre l'entrée de la baie de Morlaix en tir maximum.

Casemate n° 1 : axe de tir principal à 30 degrés.

Casemate n° 2 : axe de tir principal à 35 degrés.

La section de droite a son axe de tir vers le port de Carantec (vers l'Est-nord-est). Elle peut soutenir l'ensemble fortifié "Mo 83". L'objectif est à 4 000 m environ.

Casemate n° 3 : axe de tir principal à 50 degrés.

Casemate n° 3 : axe de tir principal à 54 degrés.

Les casemates ont conservé leurs marquages et instructions de tir (voir description).

Le tir des canons de la batterie, commandés par un officier, secondé par des observateurs et des calculateurs, était dirigé via des liaisons téléphoniques câblées et radios depuis le bunker - abri pour observatoire d’artillerie de type 627 implanté pointe de Bloscon à Roscoff (Mo 94). Un second bunker - observatoire d’artillerie, variante allégée d’un type 627 était situé pointe du Cosmeur à Carantec (Mo 81). Les liaisons sont assurées par la section des transmissions de la batterie.

Implantation de la batterie

La batterie d'artillerie de Vézen Doket est située entre Saint-Pol-de-Léon et Plouénan, à l'est de la route départementale n° 75, sur un plateau à 50 m au-dessus de la mer. A moins de 500 m à l'est passe la voie ferrée Morlaix - Roscoff. Elle est implantée sur les terres de la ferme Vézen Doket située non loin d'un ruisseau se jetant dans la mer près du château de Kernevez et à proximité de plusieurs points d'eau et de pâtures nécessaires aux chevaux de la batterie. Elle n'est pas visible depuis la mer ce qui permet de surprendre l'ennemi sur des positions préalablement enregistrées et d'éviter les tirs de contre-batterie.

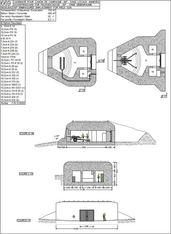
Quatre bunkers – casemates de type 669

La batterie se compose notamment de quatre bunkers - casemates de type 669 en élévation implantés en arc de cercle. Ils abritaient chacun à l’origine une pièce d’artillerie. Du nord au sud, ils sont respectivement espacés de 50 m, 25 m et 35 m.

Construits en béton armé, ces bunkers - casemates de type 669, conçus pour abriter un canon de campagne ou un obusier, regroupent une chambre de combat (Kampfraum) et deux niches à munition (Nischen für Munition) de part et d’autre de leur couloir d’accès.

Dalle de couverture et murs périphériques mesurent 2 m d’épaisseur, ce qui place ce type de bunker dans les "constructions permanentes" (Ständig Ausbau), c’est-à-dire à l’épreuve des bombes aériennes. Un marquage "St." (peint de couleur rouge), abréviation de Ständig, situé sur le fronton d’entrée de l’une des casemates atteste de cette caractéristique. Les angles extérieurs des bunkers sont arrondis éviter les éclats de béton en cas de bombardement. La construction d'un seul bunker de ce type nécessite un terrassement de 150 m3, 495 m3 de béton, 22 t de fer rond en ferraillage et 8,3 t de fer profilé pour le plafond. Il s’agit d’un type de bunker très répandu sur le Mur de l’Atlantique (600 exemplaires selon Rudi Rolf). Au total pour les quatre bunkers - casemates, cela représente un volume de 1 980 m3 de béton armé.

Des bunkers – abris semi-enterrés dans le sol

D’après le plan issu du rapport Pinczon du Sel, la batterie comprend également cinq bunkers enterrés servant d'abri pour le personnel avec un "central téléphonique", d'usine électrique (pour abriter le groupe électrogène) et de magasins de munitions.

Un magasin de munitions conserve des marquages "Pz.Gr.39 / Pz.Gr.40. Pz.Gr.", abréviation de Panzergranate en allemand, obus perforant anti-char.

Marquages et inscriptions de tir liés à al conduite de tir

Des marquages précisent :

- dans chaque bunker - casemate, identifié par son nom, des repères de tir et distances :

"Max / Schwenkenkber. [vue panoramique] v.G.R. 650 wg[?] - 550 mr / Kürz. Schußentf [distance de tir] ? - 30 / 3232".

"Ulli / Schwenkenkber. [vue panoramique] v.G.R. 250 wg - ?50 mr / Kürz. Schußentf [distance de tir] 1275 ? / ?".

"Ural / Schwenkenkber. [vue panoramique] v.G.R. 250 wg - 950 mr / Kürz. Schußentf [distance de tir] 1600 m – 38 / 2833".

- des instructions :

Achtung !

[Danger !]

Beim Schießen [?] Beachten :

[Faites attention lors du tir :]

1.) Soweit Absauglüfter eingeba  [mot recouvert par une fixation contemporaine : eingebaut] werden einschatten

[Si des ventilateurs d'extraction sont installés, allumez-les]

2.) Türen beim Schießen offen ? n [mot recouvert par une fixation contemporaine]

[Portes ouvertes lors du tir ?]

3.) Hülsen sofort in Hülsengruberwerfen oder aus dem Stand entfernen.

[Jetez immédiatement les obus (Hülsen) dans l'extracteur d’obus ou retirez-les du support.]

4.) Bei Verqualmung des Standes Gasmaske mit CO filter aufsetzen.

[Si la position est remplie de fumée, mettez un masque à gaz avec filtre CO.]

  • Murs
    • béton béton armé
  • Toits
    béton en couverture
  • Étages
    rez-de-chaussée
  • Énergies
    • énergie électrique
    • produite sur place
  • État de conservation
    bon état, inégal suivant les parties
  • Techniques
    • peinture
  • Précision représentations

    Marquage et instructions de tir.

  • Statut de la propriété
    propriété privée
  • Intérêt de l'œuvre
    vestiges de guerre, à signaler
  • Éléments remarquables
    batterie, blockhaus, casemate, magasin de munitions

Documents d'archives

  • Rapport Pinczon du Sel. Livre IV. "Le Mur de l´Atlantique de la côte de la Manche et de l´Atlantique du Mont Saint-Michel à la Laïta". 1946-1948.

    Service Historique de la Défense de Brest

Bibliographie

  • ROLF, Rudi. Atlantikwall-Typenheft. Atlantic Wall typology. Typologie du Mur de l'Atlantique. Middelburg, PRAK publishing, 2008, 432 p.

  • FLEURIDAS, Patrick. HERBOTS, Karel. PEETERS, Dirk. Constructions normalisées. 600-699. 700-704. Regelbauten. S. l., 2008, 183 p., 2-914827-27-X.

Périodiques

  • BOHEE, Alain. "Une ferme du Trégor dans le mur de l'Atlantique". Bulletin de l'Association pour la Recherche et la Sauvegarde des Sites Archéologiques du Trégor, 2014, p. 290-295.

Documents multimédia

  • Regelbau 669 Schartenstand für Feldgeschütze (60°) ohne Nebenräume

    https://www.lexikon-der-wehrmacht.de/Regelbauten/Atlantikwall/RB669.htm

Annexes

  • Le groupe de batteries côtières hippomobiles de Saint-Pol-de-Léon, extrait du Rapport Pinczon du Sel, 1946-1947
Date(s) d'enquête : 2002; Date(s) de rédaction : 2002, 2023