Corps de garde crénelé n° 2 modifié, année "1861" de Beg Ar Gador ou pointe du Kador (Crozon),
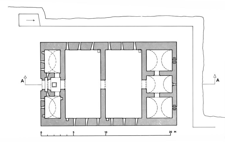
Plan du réduit de Beg Ar Gador ou pointe du KadorImmatriculation
IVR53_19872900003PA
Auteur du document reproduit
Auteur de l'illustration
-
Artur Guy (reproduction)Artur Guy (reproduction)Cliquez pour effectuer une recherche sur cette personne.
Auteur de l'illustration
(reproduction)
Copyright
Diffusion
reproduction soumise à autorisation du titulaire des droits d'exploitation
Type
phototype argentique
Besoin d'informations sur cette illustration ?
Nous contacter
Informations techniques
-
Technique de relevé
- relevé manuel