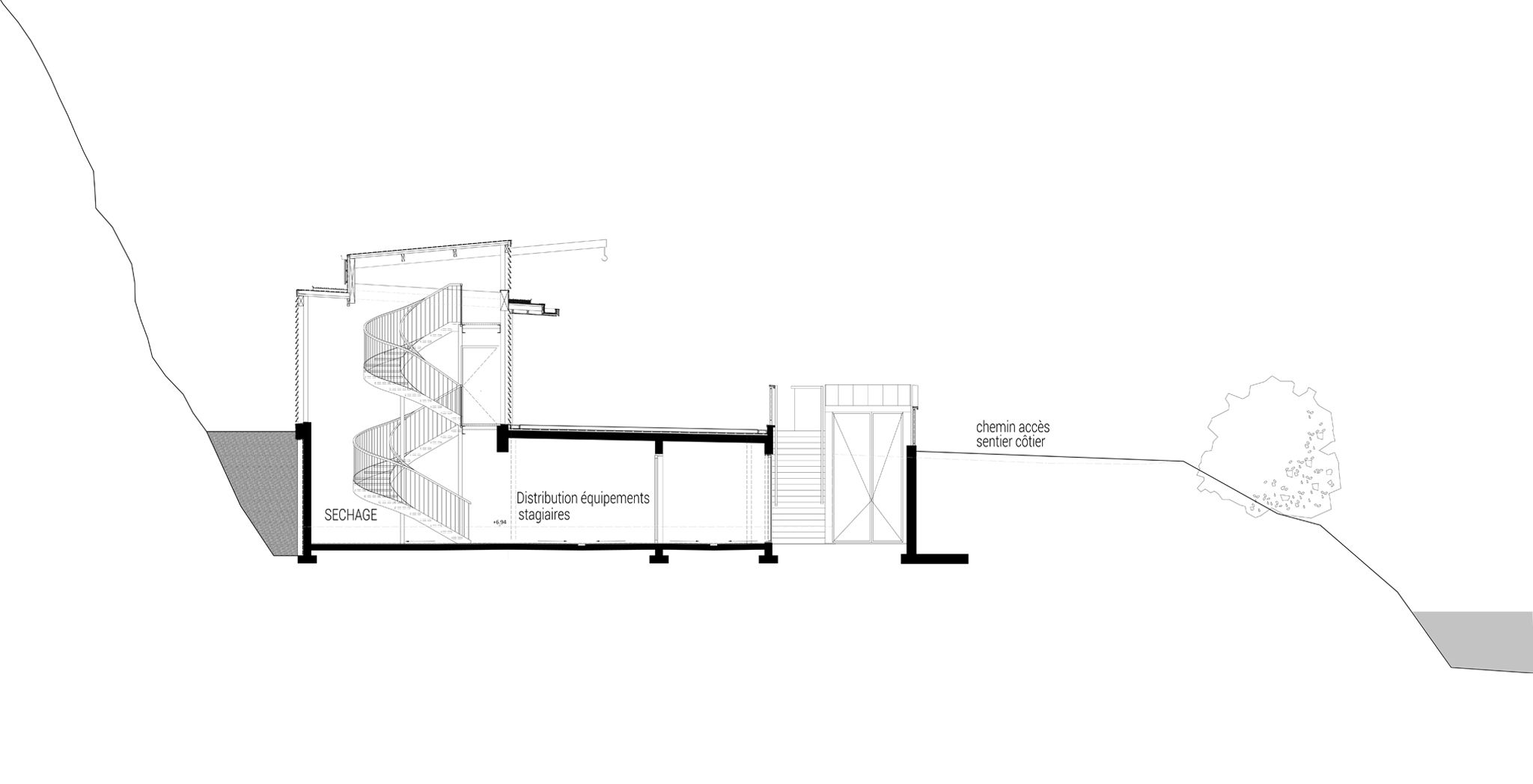
Centre nautique, rue du Môle (Douarnenez),

Coupe
Immatriculation
IVR53_20182907387NUCA
Copyright
  • (c) Michel Grignou
Année de prise de vue
2018
Diffusion
reproduction soumise à autorisation du titulaire des droits d'exploitation
Type
phototype numérique

Sujets

établissement nautique
Besoin d'informations sur cette illustration ?
Nous contacter