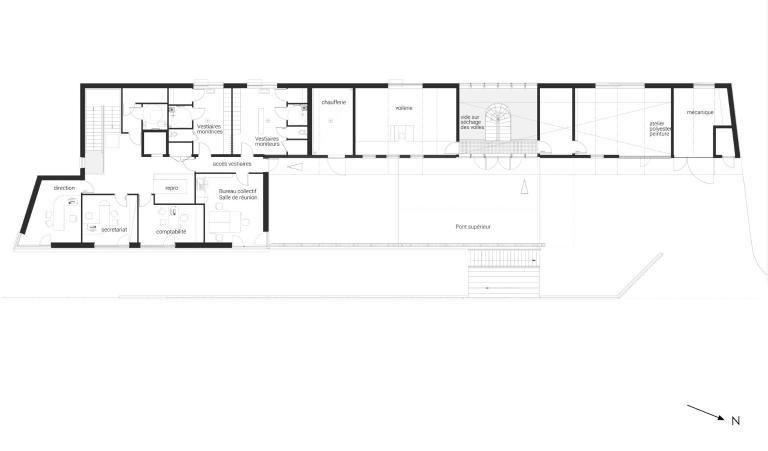
"Le site du projet, entre falaise et chenal, est soumis aux influences de la marée et est caractérisé par une topographie marquée. S’ajoute à ces contraintes naturelles, la nécessité de partage de cet espace mesuré entre différents usages : activités nautiques, promenade le long du sentier côtier, desserte des habitations. Notre projet fait le choix d’une implantation à l’emplacement exact de l’ancienne construction. La topographie est mise à profit pour offrir aux deux niveaux du bâtiment des accès de plain-pied. Cette disposition permet une lecture aisée du fonctionnement du centre avec la mise en retrait des ateliers. L’écriture architecturale se caractérise par une série d’horizontales étirées, tissant ainsi discrètement la métaphore maritime et asseyant la perspective sur la falaise. La terrasse des bateaux, véritable « pont supérieur » du centre nautique est proposée comme le support et la vitrine de l’activité du centre. Trois secteurs se partagent le centre nautique : Le projet s’appuie sur leurs liaisons avec l’extérieur pour organiser leurs partitions sur deux niveaux : le secteur accueil-administration, le secteur nautique et le secteur atelier." (Notice paysagère, architecturale et environnementale)
- enquête thématique régionale, patrimoine des sports
Dossier non géolocalisé
-
Aire d'étude et canton
Bretagne
-
Commune
Douarnenez
-
Adresse
rue du Môle
-
Dénominationsétablissement nautique
Après l'abandon d'un premier projet sur le site de Kermabon (1968), l'architecte M. Penther dresse en 1970 les plans et devis d'un centre nautique au nord-ouest du port de plaisance de Tréboul. L'arrêté d'approbation technique d'une première tranche de travaux est signé le 18 juin 1970, et le permis de construire le 5 mai 1971. A la différence des bâtiments d'hébergement-restauration (1973) et du local socio-éducatif (1975), situés au haut de la falaise, le hangar, édifice assez rudimentaire construit au pied de celle-ci, se révèle obsolète au bout d'une quarantaine d'années. Il fait l'objet d'un permis de démolir le 16 mars 2015. La création d'un nouveau pôle nautique est confiée à M. Grignou et V. Stéphan. Le permis de construire est délivré le 23 août 2016, le chantier s'ouvre le 23 janvier 2017, après sécurisation de la falaise, et l'inauguration a lieu le 26 mai 2018.
-
Période(s)
- Principale : 3e quart 20e siècle , daté par source
- Principale : 1er quart 21e siècle , daté par source
-
Dates
- 1971, daté par source
- 2018, daté par source
-
Auteur(s)
- Auteur : architecte attribution par source
-
Auteur :
Grignou Michelarchitecte attribution par sourceGrignou MichelCliquez pour effectuer une recherche sur cette personne.
Architecte, 6 rue de Rosmadec, puis 6 rue Joseph Halleguen, Quimper, puis associé à Véronique Stéphan, 6 rue Joseph Halleguen – 29000 Quimper
-
Auteur :
Stéphan Véroniquearchitecte attribution par sourceStéphan VéroniqueCliquez pour effectuer une recherche sur cette personne.
Architecte, diplômée de l’école nationale des arts et industries de Strasbourg, 6 rue Joseph Halleguen, Quimper
D'une surface de 687 m2, le nouveau pôle nautique est composé d'un rez-de-chaussée bas qui accueillera du public et d’un rez-de-chaussée haut réservé au personnel (à l'ouest : vestiaires, chaufferie, voilerie, atelier polyester, peinture et mécanique ; à l'est : bureau du directeur, secrétariat, comptabilité et salle de réunion).
-
Murs
- béton
- bois
-
Plansplan rectangulaire régulier
-
Statut de la propriétépropriété de la commune
- (c) Archives Nationales
- (c) Archives Nationales
- (c) Archives Nationales
- (c) Archives Nationales
- (c) Archives Nationales
- (c) Archives Nationales
- (c) Michel Grignou
- (c) Michel Grignou
- (c) Michel Grignou
- (c) Ville de Douarnenez
- (c) Ville de Douarnenez
- (c) Ville de Douarnenez
- (c) Ville de Douarnenez
- (c) Région Bretagne
- (c) Région Bretagne
- (c) Région Bretagne
- (c) Région Bretagne
- (c) Ville de Douarnenez
- (c) Région Bretagne
- (c) Région Bretagne
- (c) Région Bretagne
- (c) Région Bretagne
- (c) Région Bretagne
- (c) Région Bretagne
- (c) Région Bretagne
- (c) Région Bretagne
- (c) Région Bretagne
- (c) Région Bretagne
- (c) Région Bretagne
- (c) Région Bretagne
- (c) Région Bretagne
- (c) Région Bretagne
- (c) Région Bretagne
- (c) Région Bretagne
- (c) Région Bretagne
- (c) Région Bretagne
- (c) Région Bretagne
- (c) Région Bretagne
- (c) Région Bretagne
- (c) Région Bretagne
- (c) Région Bretagne
- (c) Région Bretagne
- (c) Région Bretagne
- (c) Région Bretagne
- (c) Région Bretagne
- (c) Région Bretagne
Architecte DESA, 19 allée de la Palestine, Quimper