Poste central de la gare de Rennes,

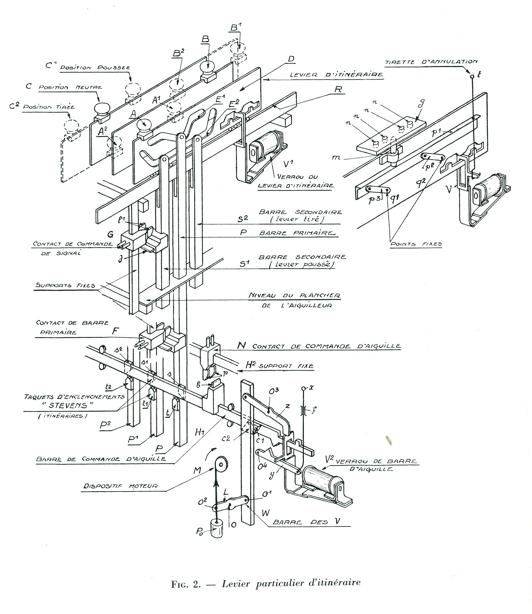
Dessin de principe représentant le fonctionnement d’un levier dans un combinateur Mors pour les postes à leviers d’itinéraires
Immatriculation
IVR53_20163506119NUCA
Copyright
  • (c) Rails et histoire
Diffusion
reproduction soumise à autorisation du titulaire des droits d'exploitation
Type
phototype numérique
Besoin d'informations sur cette illustration ?
Nous contacter
Références des documents reproduits
  • Document de la Société Mors

    Archives association Rails et Histoire