Master Restauration et réhabilitation du patrimoine bâti (2015-2016)
- enquête thématique régionale
- (c) Rails et histoire
Dossier non géolocalisé
-
Aire d'étude et canton
Rennes ville
-
Commune
Rennes
-
Lieu-dit
-
Adresse
Place de la Gare
,
Boulevard Beaumont
-
Précisions
-
Dénominationsposte d'aiguillage
La Société Mors
Louis Mors (1855-1917) est ingénieur centralien. Avec son frère Émile (1859-1952), ils sont particulièrement intéressés par les nouvelles techniques en rapport avec le chemin de fer, l’électricité ou l’automobile. À la fin du XIXe siècle Louis Mors prend la succession de l’entreprise de P. Prud’homme qui a produit les premiers appareils électro-sémaphoriques pour la Compagnie du Nord. Il crée à partir de celle-ci la Société d’électricité Mors. Sa société produit des moteurs de signal, des postes d’aiguillages à leviers d’itinéraires ou leviers individuels. Elle a une importante production de relais et de verrous électromécaniques. Dans sa première période d’expansion la société a surtout produit pour les réseaux de l’Ouest-Etat, du Nord et de l’Est.
La société fabrique, outre la signalisation ferroviaire, des voitures et… des fleurs artificielles. Pendant l’entre-deux guerres elle rencontre des difficultés financières, entrainant la fin de la fabrication des voitures Mors qui est reprise par André Citroën.
Cependant, la société n’arrête pas son activité pour les chemins de fer. À partir de 1935 elle est dirigée par M. Egnell. Elle comporte alors plusieurs secteurs, dont l’appareillage électrique industriel (relais) et la signalisation (moteurs d’aiguilles, de signaux, pédales électriques, signaux lumineux, freins de voies, etc.). La société Mors réalise des installations de sécurité sur le terrain et celles qui assurent la télécommande des sous-stations.
Après 1960, Mors fonde avec Saxby et Jeumont la SARL JMS (Jeumont-Mors-Saxby). En 1967 le département signalisation est racheté par Jeumont-Schneider. Toutefois, en 1982 la Société Mors reprend sous le nom de Mors Railways une partie de sa production du département signalisation : l’exploitation des procédés Paulvé du Muy et Meunier ainsi qu’une filiale de Saxby (produisant des relais industriels). En 1988, Mors Railways est absorbée par Siferdec filiale de De Dietrich et de Cogifer.
La société Mors a développé deux types de postes à leviers d’itinéraires :
- le poste à leviers curseurs entre 1922 et 1930 ;
- le poste à leviers particuliers d’itinéraires après 1930.
Pour le premier type les leviers se déplacent verticalement dans un gril, puis horizontalement dans une fente déterminée. Chaque fente correspond à un itinéraire. Ces postes ont été construits sur le réseau de la Compagnie du Nord et pour l’État : La Rochelle 1, 2 et 3 (1922-1992), Laon 5 (1923-1944), Lens-Avion 1 (1925-1977), Lens 4 (3) (1925-1988), Tergnier B (fin des années 1920-1957), Valenciennes 7 (fin des années 1920-1956), Amiens 3 (fin des années 1920-1960)
Les postes Mors à leviers particuliers d’itinéraires (deuxième type) ont équipé des nœuds importants du réseau de l’État. Chaque levier correspond alors à un itinéraire et ils se déplacent horizontalement (voir description technique). En France, six postes furent installés à partir de 1932 :
- Versailles-Chantiers Central (1932-1976) ;
- Caen Central (1936-1964) ;
- Porchefontaine (1937-1976) ;
- Clamart (1937-1987) ;
- Le Mans Central (1938-1969);
- Rennes Central (1941).
Ainsi, le poste central de Rennes est le dernier poste d’aiguillage de la Société Mors à avoir été installé et à être encore en fonctionnement en 2016.
Le poste central de Rennes (1939-1941)
Le poste central de Rennes est installé en 1941 dans le cadre du plan de modernisation de la gare. De vastes hangars en bois jouxtant le buffet (1913) sont détruits pour pouvoir construire le poste central. Le bâtiment lui-même est construit en 1939, mais le poste Mors à leviers particuliers d’itinéraires n’est en fonctionnement qu’à partir de 1941. Il vient remplacer les postes n° 2, 3 et 4 qui se situaient entre le pont de Châtillon et celui de Saint-Hélier. Le poste comprenait 80 leviers d’itinéraires en 1964.
Au début des années 1960 la ligne entre Le Mans et Rennes est électrifiée en 25 KV 50 Hz (courant alternatif monophasé depuis lors adopté pour les LGV, la ligne Paris-Le Mans ayant été électrifiée en 1500 V continu en 1937) dans le cadre d’un plan plus général d’électrification pour les lignes au trafic assez élevé. La première section, entre Le Mans et Laval, est inaugurée le 26 septembre 1964 puis la deuxième section, entre Laval et Rennes, est mise en service le 1er juillet 1965.
Ce changement nécessite la modification du poste central afin de répondre à l’augmentation du trafic. Le 14 juin 1964, il est livré aux techniciens du service électrique et de la Société Mors pour l’adapter aux nouvelles installations. Pendant ce temps, un poste provisoire, équipé de 132 manettes individuelles, moins souple, vient le remplacer.
Quelques semaines avant l’ouverture de la ligne électrifiée, le 9 mai 1965, le poste central est remis en service. Il a été amélioré et transformé : c’est toujours un poste de type Mors à leviers d’itinéraires. Le combinateur a fait peau neuve, dorénavant vert clair, mais surtout le poste est équipé de nouveaux leviers, de 80 il passe à 138 leviers. Deux tables annexes sont installées : une pour la commande des signaux et des annotateurs de zones, l’autre pour l’alimentation et la protection des caténaires. Une table de travail est aménagée avec une platine téléphonique. Le bâtiment est rénové, sa façade est réenduite en blanc et à l’intérieur les murs et le sol sont rénovés au goût du jour.
En 1964, le poste de type Mors de Caen Central est débranché, de nombreuses pièces ont été récupérées et rénovées pour les installer sur le poste de Rennes en révision.
Le poste central a fait l’objet de travaux de d’agrandissement dans les années 1990. Ces travaux ont notamment une incidence sur la façade du bâtiment. La coursive est en partie supprimée par l’agrandissement de la salle du combinateur. Pour cela des profils métalliques viennent renforcer l’ancienne coursive. De nouvelles fenêtres sont installées. Aujourd’hui ce poste comprend 254 itinéraires.
La modernisation de la gare pour l'arrivée de la LGV et le déclassement du poste central (2018)
En 2010, Réseau Ferré de France a décidé de construire un bâtiment de gestion centralisée (commande centralisée du réseau) des équipements ferroviaires sur le site de Saint-Hélier à Rennes. Ce choix est le résultat de la modernisation du réseau ferré national et de la construction d’une nouvelle ligne à grande vitesse entre Le Mans et Rennes (LGV Bretagne - Pays de la Loire).
Le bâtiment va accueillir un poste de contrôle à distance (PCD) et le poste de commande central des sous stations (CSS) du Centre-Ouest. Le PCD remplacera le poste central ainsi queles différents postes de Rennes, mais il assura aussi contrôle de la sécurité et de la circulation de la ligne du Mans et d’une partie de la ligne Rennes-Redon. Le CSS contrôle et commande les installations fixes de traction électrique, c’est-à-dire les sous-stations et les caténaires du Centre-Ouest (Bretagne, ancien CSS de Tours et une partie de celui de Paris-Montparnasse).
La mise en service de la commande centralisée du réseau Centre-Ouest est prévue pour mars 2018. Ainsi le poste central de Rennes va être déclasser (débranché) dans l'été 2018.
-
Période(s)
- Principale : 20e siècle
-
Dates
- 1939, daté par source
- 1941, daté par source
Le poste central se trouve à l’intérieur de la gare de Rennes. Contrairement à beaucoup de postes il se présente en dehors des voies et est accessible depuis le quai n° 1, mais aussi depuis le boulevard de Beaumont. Situé à l’ouest du bâtiment des voyageurs, il est entouré du buffet de 1913 à l’est et du bâtiment de la direction régionale de la SNCF au nord et à l’ouest.
Description architecturale
⧁ description extérieure : bâtiment, orientation, matériaux…
Le bâtiment du poste suit un plan relativement simple. Son style épuré est typique des postes d’aiguillages construits par la SNCF. La cabine de l’aiguilleur est surélevée. Le bâtiment est conçu pour accueillir le poste de type Mors qui nécessite un bâtiment à plusieurs niveaux (deux étages) pour son fonctionnement. Ainsi chaque niveau a une ou plusieurs destinations précises.
En termes de volumétrie, le bâtiment se compose de quatre volumes parallélépipédiques : deux volumes principaux qui forment un " T " et s’élèvent sur trois niveaux. À ce volume viennent se coller deux volumes parallélépipédiques (plus petits) pour former quasiment un rectangle.
Le toit est en grande partie un toit terrasse mais avec une légère pente sur les débords de toit (résultat des derniers grands travaux au début des années 1990). Une visière en béton déborde de l’édifice de façon dissymétrique : sur la façade principale et une partie des deux façades latérales couvrant une coursive au 2e étage. Une bande bleue vient marquer visuellement ce débord. Il permet d’abriter la cabine de l’aiguilleur du rayonnement direct du soleil.
Le bâtiment est construit en béton. Les façades sont recouvertes d’un enduit bâtard de couleur claire. L’enduit est lisse, seul le soubassement en saillie souligné par de fins bandeaux (formant trois lignes) vient rythmer horizontalement la façade du bâtiment. Le bâtiment a probablement toujours été enduit.
La façade principale du bâtiment donne sur les quais et porte en grande lettres capitales bleues le nom de la ville de Rennes. Le premier niveau est éclairé par une grande baie grillagée. Le second niveau comporte des petites baies hautes. Le dernier niveau en encorbellement est entièrement vitré et équipé d’une coursive en partie condamnée (suite aux travaux d’agrandissement de 1991). La présence des vitres sur la façade principale et en retour sur les deux autres faces du bâtiment permettent à l’aiguilleur de garder un œil directement sur les voies. Cette configuration est caractéristique de l’architecture des postes d’aiguillage.
Un bâtiment préfabriqué d’un seul niveau jouxte la façade du côté de Brest. Ce bâtiment communique par une porte avec le bâtiment du poste central. Au dernier niveau une passerelle permet un accès direct entre la cabine de l’aiguilleur et le bâtiment de la Direction régionale
La façade arrière du bâtiment, côté cour, présente au centre une double porte dans un léger renfoncement. Cette porte permet d’accéder au hall d’entrée et à l’escalier qui dessert le bâtiment. Elle est surmontée d’une seconde porte au 1er étage qui permet d’accéder à une coursive. Dans le même axe une grande fenêtre éclaire le dernier étage. Un escalier démarre au pied du bâtiment et continue sur la façade latérale (côté Paris).
Cette façade était symétrique à sa construction, un volume (côté Brest) a été surélevé d’un étage dans les travaux d’agrandissement des années 1990.
La façade côté Paris présente un aspect similaire à celle initialement dessiné côté Brest. Un escalier courant dans la largeur permet un accès direct depuis l’extérieur à la cabine de l’aiguilleur. La façade est agrémentée de deux portes, l’une au rez-de-chaussée et la seconde au 1er étage accessible par une échelle fixée dans le mur.
⧁ description intérieure : différents niveaux, organisation des niveaux…
L’intérieur du bâtiment a connu différentes modifications au cours des phases de rénovation, dont deux sont connues, la première en 1964 et la seconde au tout début des années 1990. Cependant la distribution des pièces et le fonctionnement du bâtiment sont restés sensiblement les mêmes. Les revêtements des sols ainsi que ceux des murs ou les peintures datent probablement des derniers travaux des débuts des années 1990. Les sols sont majoritairement recouverts par un revêtement plastique. Les murs ont été recouverts d’un revêtement à peindre, puis de couches de peinture.
Le rez-de-chaussée est occupé par un hall d’entrée donnant accès aux différentes pièces et à un escalier qui dessert les deux étages du bâtiment. Cet escalier en béton est équipé d’une rambarde en fonte au dessin simple et élégant.
Trois salles occupent le rez-de-chaussée :
- une première contient les armoires d’arrivée et de contrôle du courant électrique qui alimente le poste ;
- une seconde salle est occupée par un groupe électrogène de secours qui est utilisé en cas de panne du secteur ;
- une troisième salle renferme /renfermait des tubes alignés de bromure de méthyle.
Sur le palier de chaque étage se trouvent de petites pièces destinées aux aiguilleurs et personnes qui travaillent dans le poste (sanitaires, réfectoire).
Au 1er étage se trouve la salle des relais qui occupe très largement cet étage. Cette salle est le cœur ou le centre nerveux du poste. D’étroits couloirs permettent de traverser la pièce dans sa largeur et sa longueur. Ces couloirs sont formés par les nombreux relais qui reposent sur une structure en métal et la table à enclenchements du poste Mors. Les relais occupent cette structure du sol au plafond. Depuis la salle des relais il est possible d’accéder à la coursive qui mène à une seconde pièce aux dimensions réduites.
L cabine de l’aiguilleur (salle de commande des aiguilles) se situe dans le 2e étage. Le 2e étage est occupé par le combinateur Mors et sa table horizontale présentant les nombreux leviers. La table est munie d’une partie supérieure verticale comportant les commutateurs de fermeture d’urgence des carrés, les boutons des annulateurs d’enclenchement, les boutons de test d’aiguille comme de test de zone ou encore les boutons poussoir d’annulation de protection de sections élémentaires. De part et d’autre du combinateur se trouvent une table annexes d’annulateur de zone (à droite) et un poste PRS contrôlant la bifurcation de Port-Cahours (à gauche).
En hauteur, en face du combinateur se trouve fixé au plafond le tableau de contrôle optique (TCO) représentant schématiquement le dessin des voies en gare contrôlées par le poste central. Le TCO est surmonté d’une horloge. À droite du TCO se trouve une petite armoire refermant les clés nécessaires aux annulations d’itinéraires dans des cas particuliers.
Derrière le combinateur, deux rangées de bureaux permettent à une partie de l’équipe de pouvoir interagir sur des ordinateurs et avec des téléphones pour notamment contrôler les arrivées et départ et faire les annonces dans la gare. Ces deux rangées de bureaux sont complétées par deux petits bureaux, dont un occupé par un agent responsable de l’alimentation et de la protection des caténaires. Ce bureau comporte les appareils nécessaires à leur surveillance. Deux portes de chaque côté de la salle permettent d’accéder à deux balcons.
Le bâtiment a globalement conservé son architecture et esthétique initiale. Cependant il a fait l’objet de deux grandes campagnes de travaux, dont la dernière au début des années 1990 qui a notamment modifié une partie des façades extérieures. Pour la façade principale, les vitrages en partie haute ont été changés pour laisser place à de grandes baies à châssis en métal peint de couleur bleue. Ce changement est aussi dû à l’agrandissement de la cabine qui déborde maintenant sur une partie de la coursive initiale. À l’inverse, certains éléments semble ne pas avoir changé depuis la construction du bâtiment (portes, ouvertures, escaliers, etc.).
Description technique
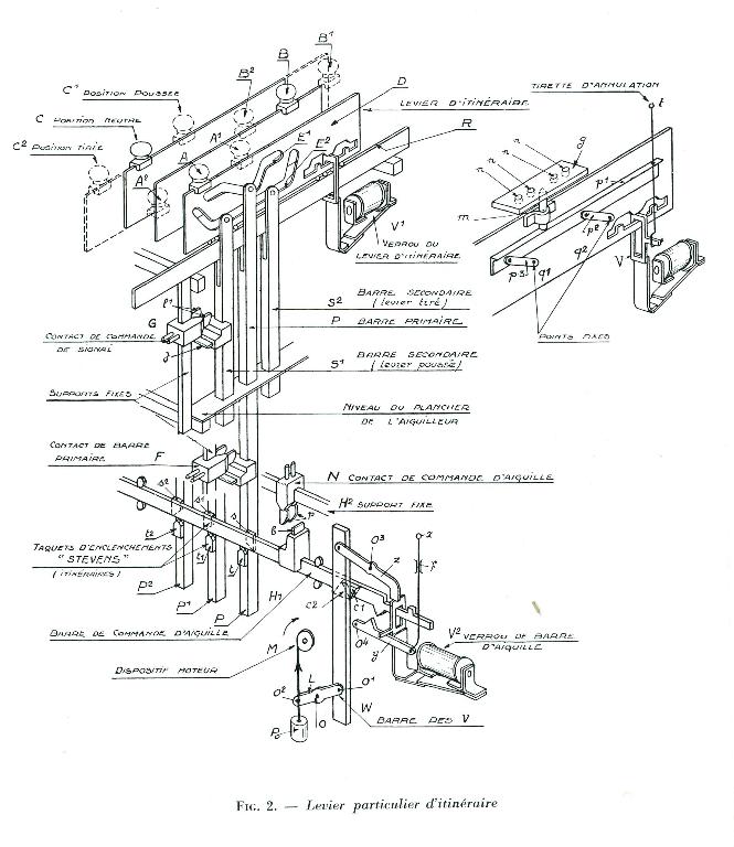
Chaque itinéraire est commandé par un « seul geste ». Les leviers de ce poste se présentent à l’extérieur d’un meuble appelé combinateur ou table de manœuvre. La longueur du meuble varie en fonction du nombre de leviers à mettre en place (et donc d’itinéraires) : mais généralement le meuble mesure 1 m de hauteur pour 0,9 de largeur. Les leviers sont matérialisés par des poignées (boutons métallique ou de verre) de manœuvre à déplacement horizontal dans une rainure sur la partie supérieure du combinateur. Toutes ces poignées sont concentrées de façons à former deux rangées horizontales de boutons imbriqués. Une poignée se trouve dans une position « neutre » lorsqu’elle n’est pas sollicitée pour un itinéraire. Dans le cas inverse elle vient occuper une position « extrême ».
L’action d’un levier permet de commander les aiguilles et les signaux nécessaires pour faire suivre un itinéraire à une circulation s’arrêtant ou non dans la gare (arrêt ou passage).
Chaque poignée est associée à un numéro, qui correspond à un itinéraire, par exemple le numéro 138 correspond à l’itinéraire de UC vers P1 ou P1 vers UC (« UC » correspond à voie unique Châteaubriant et « P1 » à poste 1). Ainsi le levier peut être placé dans deux sens différents en fonction du sens de l’itinéraire. Dans ce cas le levier peut occuper deux positions: soit une « position poussée » soit une « position tirée » selon le sens du parcours. De ce fait, le levier est en position poussée pour P1 vers UC, à l’inverse il est en position tirée pour UC vers P1. Lorsqu’un seul sens est possible le levier ne peut se renverser que d’une seule façon, comme pour le levier 140, la circulation n’est possible que de UC vers C1.
Pour réaliser un parcours géographique particulier à travers le faisceau de voies il peut être nécessaire d’actionner plusieurs poignées pour parcourir plusieurs sections et former un itinéraire complet.
La circulation sur les voies est suivie grâce à un tableau de contrôle optique (TCO). Ce tableau représente de façon schématique le plan de voie et regroupe les contrôles de position des signaux, des aiguilles, ainsi que l’état d’occupation des zones. Un changement de couleur des lumières sur les sections de voies ou l’emplacement des signaux et aiguilles rend visible chaque mouvement ; par exemple la lumière blanche ou jaune correspond à la voie libre tandis que la lumière rouge signale l’occupation d’une voie. Il renseigne aussi sur la position des aiguilles et l’état d’ouverture des signaux (fermé ou ouvert).
À l’intérieur du combinateur, le déplacement des poignées ou leviers provoque la translation de cames. La came est une d’une plaque d’acier découpée dont la poignée est solidaire. Cet organe mécanique permet de piloter le déplacement des barres. Les cames roulent ou glissent sur une autre pièce ; dans le cas du poste Mors leurs tranches glissent grâce à des billes sur un chemin de roulement. Leur mouvement entraîne celui de barres d’aiguilles et de barres secondaires. Ce sont les organes mécaniques qui assurent la commutation des circuits électriques pour commander les signaux ou les aiguilles. Chaque aiguille ou signal correspond à un organe mécanique de commande. Une aiguille ou un groupe d’aiguilles conjuguées est matérialisé dans le combinateur par les barres de commande des aiguilles. Les différents organes contenus dans le meuble se prolongent dans une salle inférieure sous le plancher de l’aiguilleur. Les barres sont disposées les unes-au-dessous des autres.
De manière plus précise, la plaque d’acier (came) comporte des évidements dans lesquels coulissent, lors de ses mouvements, des galets-guides qui provoquent :
- dans un premier temps : le déplacement vertical (de bas en haut) de barres dites « primaires », qui entrainent elles-mêmes les barres horizontales de commande d’aiguilles, dites « barres d’aiguille » et comportent les enclenchements mécaniques et électriques d’itinéraire. Le soulèvement de la barre primaire déplace les barres de commande d’aiguilles de l’itinéraire par l’intermédiaire de taquets « Stevens ». Ces taquets réalisent aussi l’enclenchement d’incompatibilité d’itinéraire en empêchant deux leviers d’utiliser la même aiguille dans deux positions différentes. Les barres d’aiguilles portent les contacts électriques nécessaires pour commander un moteur d’aiguille ou un groupe d’aiguilles conjuguées.
- dans un second temps : le déplacement vertical de barres dites « secondaires », qui assurent les commutations nécessaires à l’établissement des circuits d’itinéraire et des différents circuits de transit, contrôles impératifs, enclenchements d’approche, etc.
Lorsque l’itinéraire n’est plus utilisé, la remise en position neutre d’un levier produit en sens inverse les différentes opérations et mouvements de barres décrits précédemment. De ce fait, la barre secondaire revient à sa position de repos en fermant le signal. La barre primaire dégage les barres de commande d’aiguilles qui peuvent être utilisées à nouveau pour la réalisation d’autres itinéraires.
Les enclenchements peuvent et doivent pouvoir être annulés dans certains cas particuliers, tels que la défaillance d’une installation ou des circonstances anormales. Cependant, cette action fait l’objet de consignes très sévères et l’annulation doit laisser des traces matérielles pour que son contrôle reste possible a posteriori.
Ce type de poste est muni d’enclenchements électriques très complets tels que l’enclenchement d’approche et l’enclenchement de contrôle impératif de fermeture. Le verrou de barre d’aiguille a pour particularité de permettre de réaliser les enclenchements spéciaux et surtout l’enclenchement de transit fractionné. Le transit fractionné est une solution équivalente à celle dite du « transit souple » des PRS. Dans les PRS, la destruction partielle de l’itinéraire est automatique à chaque franchissement de tronçon. Pour les postes de type Mors comme celui de Rennes on parle de transit fractionné ce qui équivaut au transit souple. Dans une situation inverse de transit rigide ou complet la manœuvre des aiguilles ou enclenchement d’un signal est interdite et impossible tant que la circulation d’un train n’est pas complètement terminée sur l’itinéraire complet. Alors que pour le transit souple, dès qu’un train a quitté un tronçon d’itinéraire les aiguilles et signaux de ce tronçon son disponibles pour établir un nouvel itinéraire. La Société Mors a mis au point un dispositif permettant la réalisation des conditions de sécurité tout en améliorant le transit avant que les PRS ne soient utilisés. Dans un poste Mors, la manœuvre de toutes les barres d’aiguilles de l’itinéraire est interdite dès que la circulation est engagée : toutes les aiguilles sont alors immobilisées et le levier peut être ramené en position neutre. Cependant, au fur et à mesure du dégagement de la zone de l’itinéraire, on peut établir un nouvel itinéraire sécant derrière la circulation (avec des zones similaires) ou un itinéraire de refoulement par simple changement d’une aiguille dégagée. Ce dispositif permet de gagner du temps, de faciliter le passage des trains et surtout de répondre plus facilement aux exigences d’un trafic important. C’est pourquoi les six postes de ce type construits sur le réseau ferré français étaient installés dans des nœuds importants.
-
Murs
- béton enduit
- brique (incertitude)
-
Toitsbitume
-
Couvertures
-
Escaliers
- escalier intérieur : escalier tournant à retours en maçonnerie
- escalier de distribution extérieur : escalier droit suspendu
-
Énergies
-
État de conservationbon état
-
Protectionsinscrit MH, 2020/01/30
-
Précisions sur la protection
Ancien poste central en totalité, avec l'ensemble de son équipement technique.
Situation cadastre : 2019 : BY 230
-
Référence MH
- (c) Rails et histoire
- (c) Rails et histoire
- (c) SNCF
- (c) Rails et histoire
- (c) SNCF
- (c) Rails et histoire
- (c) SNCF
- (c) Rails et histoire
- (c) SNCF
- (c) Rails et histoire
- (c) SNCF
- (c) Rails et histoire
- (c) SNCF
- (c) Rails et histoire
- (c) Rails et histoire
- (c) SNCF
- (c) Rails et histoire
- (c) Rails et histoire
- (c) SNCF
- (c) Rails et histoire
- (c) SNCF
- (c) Rails et histoire
- (c) Rails et histoire
- (c) SNCF
- (c) Rails et histoire
- (c) SNCF
- (c) Rails et histoire
- (c) SNCF
- (c) Rails et histoire
- (c) Rails et histoire
- (c) Rails et histoire
- (c) Rails et histoire
- (c) Rails et histoire
- (c) Rails et histoire
- (c) Rails et histoire
- (c) Rails et histoire
- (c) Rails et histoire
- (c) Rails et histoire
- (c) Musée de Bretagne
- (c) Rails et histoire
- (c) Rails et histoire
- (c) Rails et histoire
- (c) Rails et histoire
- (c) Rails et histoire
- (c) Rails et histoire
- (c) Rails et histoire
Documents d'archives
-
Fond documentaire Rails et histoire (Paris)
Société d’électricité Mors, « La table Mors à leviers particuliers d’itinéraires », notice n°160, 16 p. (collection Alain Gernigon).
-
Fond documentaire Rails et histoire (Paris)
BOILLOT, Cours de compléments d’exploitation technique, deuxième partie, Paris, École spéciale des travaux publics du bâtiment et de l’industrie, 1939.
-
Fond documentaire Rails et histoire (Paris)
LEMMONIER André, L’Exploitation technique des chemins de fer. La sécurité des transports, Paris, Éditions Léon Eyrolles, 1945.
p.111-130 -
Fond documentaire Rails et histoire (Paris)
LOGEAT Jean-Marc, 'Cybernétique et Chemin de fer', thèse de doctorat sous la direction de François Caron, Université de Paris-Sorbonne (Paris IV) UFR Histoire, 1997.
-
Fond documentaire Rails et histoire (Paris)
WALTER Jean, La Signalisation des Chemins de fer, Tome I, Conditions générales de sécurités dispositifs de signalisation, Paris, Éditions Eyrolles, Encyclopédie industrielle et commerciale, 1936.
-
Fond documentaire Rails et histoire (Paris)
DHEU M., Les postes unifiés de la SNCF, SNCF, Direction des installations fixes, Paris, 1957.
-
Fond documentaire Rails et histoire (Paris)
FREYSSENET Michel, IMBERT Françoise, 'Genèse sociale de choix d’automatisation et d’organisation, le cas de l’aiguillage dans les chemins de fer', Compte rendu de fin d’étude, ministère du Transport, Service des études, de la recherche et de la technologie, Centre de Sociologie Urbaine, Paris, septembre 1986.
Bibliographie
-
GERNIGON Alain, Histoire de la signalisation ferroviaire française, Paris, Éditions La Vie du rail, 1998.
p.237-367 -
Fond documentaire Rails et histoire (Paris)
DUGAS René, LAVEISSIERE François, LEVI Robert, PONCET Maxime, SAUVY Alfred, 'L’évolution des postes d’aiguillage', L’année Ferroviaire 1951, Paris, Éditions Plon, 1951.
p. 45-65 -
PROD’HOMME Laurence (sous la direction de), Bretagne Express, les chemins de fer en Bretagne 1851-1989, Lyon, Éditions Fage, 2016.
p.76-77 -
WURMSER Daniel, Signaux mécaniques, Tome I, Généralités, Postes d’aiguillage, Réseau Nord, Grenoble, Presses et Éditions ferroviaires, 2007.
-
WURMSER Daniel, Signaux mécaniques, Tome II, Réseaux Ouest-État, PO, Midi, Grenoble, Presses et Éditions ferroviaires, 2008.
-
WURMSER Daniel, Signaux mécaniques, Tome III, Réseaux Est, AL, Ceintures de Paris, Grenoble, Presses et Éditions ferroviaires, 2008.
-
WURMSER Daniel, Signaux mécaniques, Tome IV, Réseaux PLM, SNCF, Secondaires, Métropolitain de Paris, Grenoble, Presses et Éditions ferroviaires, 2009.
Périodiques
-
BILLARD Alex, « Une cure de rajeunissement pour le poste central de Rennes », La Vie du Rail, septembre 1965.
p. 17 -
'Les postes électriques d’aiguillages', Le Génie Civil, 1er et 15 août 1944
-
BARJOT R., WALTER Jean, 'La sécurité', Science et Vie, hors-série, 1952.
p. 151-158 -
DILLMANN Antoine, 'Ces postes qui veillent sur les trains', Ferrovissime, n° 65 (nov. 2013),
p. 60-67 -
DILLMANN Antoine, 'Les postes d’aiguillage se mettent à l’heure de l’électricité', Ferrovissime, n° 66 (déc. 2013).
p. 62-66 -
GRELLIER M., 'L’évolution des postes d’aiguillage', Chemins de fer, n° 204 (mai-juin 1957).
p.61-69 -
Fond documentaire Rails et histoire (Paris)
LEVI Robert, 'Agrandissements et aménagements de la gare de Versailles-Chantiers', Revue générale des chemins de fer, mai 1953.
p.383-392 -
SNCF, 'La sécurité : signalisation, aiguillages', Science et Vie, hors-série, 1947.
p.85-104 -
THOUVENIN J., 'Notions sur les postes d’aiguillage', Rail Magazine, n° 52 (août 1981).
p. 46 -
WALTER Jean, 'Les postes d’aiguillage', La Vie du Rail, n° 776 (18 décembre 1960).
p. 10-14 -
Fond documentaire Rails et histoire (Paris)
WALTER Jean, 'Évolution des postes électriques d’aiguillages à leviers d’itinéraires', Revue générale des chemins de fer, mai-juin 1945.
p. 49-57 -
Fond documentaire Rails et histoire (Paris)
WALTER Jean, 'Évolution des postes à pouvoir', Revue générale des chemins de fer, mai 1939.
p. 378-391 -
Fond documentaire Rails et histoire (Paris)
WALTER Jean, 'Le développement des installations de sécurité de la SNCF au cours des 20 dernières années', Revue générale des chemins de fer, juillet-août 1958.
p. 361-369 -
WURMSER Daniel, 'Les sentinelles de la Petite Ceinture', Voies Ferrées, n° 94 (mars-avril 1996).
p. 6-15 -
THOUVENIN J., « Notions sur les postes d’aiguillage », Rail Magazine, n° 53 (septembre 1981).
p. 53 -
« La modernisation de la gare de Rennes », Ouest-Éclair (Rennes), 25 février 1939.
p. 7 -
« La modernisation de la gare de Rennes », Ouest-Éclair (Rennes), 7 mars 1939.
p. 7 -
« La modernisation de la gare de Rennes », Ouest-Éclair (Rennes), 18 avril 1939.
p. 6 -
« Mise en Service de l’électrification Le Mans-Rennes », Revue générale des chemins de fer, octobre 1964.
p. 578-579 -
« Électrification Le Mans-Rennes, mise en service », La Vie du Rail, août 1965.
p. 3-9
Lien web
- La gestion centralisée de la LGV
- Les postes d'aiguillages
- Groupe de travail : patrimoine industriel et ferroviaire
- Diaporama patrimoine ferroviaire
- Informations complémentaires sur les postes d’aiguillages de Rennes
Annexes
-
La table Mors à leviers particuliers d’itinéraires, notice n°160 : Société d’électricité Mors, « La table Mors à leviers particuliers d’itinéraires », notice n°160, 16 p. (collection Alain Gernigon)
-
La Signalisation des Chemins de fer : le poste Mors à leviers d'itinéraires : WALTER Jean, La Signalisation des Chemins de fer, Tome I, Conditions générales de sécurités dispositifs de signalisation, Paris, Éditions Eyrolles, Encyclopédie industrielle et commerciale, 1936.
Master Restauration et réhabilitation du patrimoine bâti (2015-2016)
Master Restauration et réhabilitation du patrimoine bâti (2015-2016)