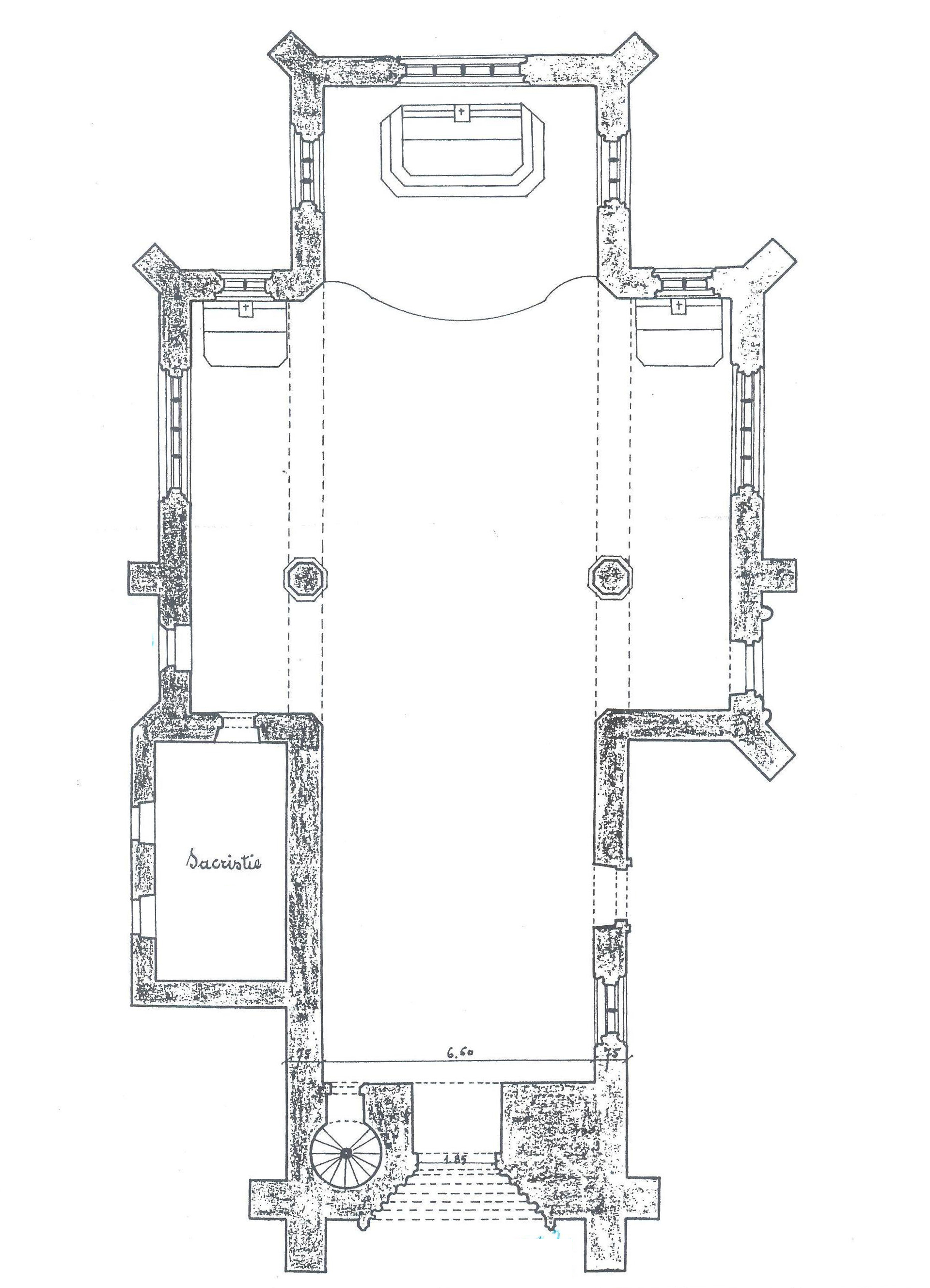
Chapelle Ty Mamm Doué, 1 chemin de Ty Mamm Doué (Quimper),

Plan de la chapelle Ty Mamm Doué
Immatriculation
IVR53_20142911058A4YY
Copyright
  • (c) Ville de Quimper
Année de prise de vue
1998
Diffusion
reproduction soumise à autorisation du titulaire des droits d'exploitation
Type
dessin non numérique

Sujets

chapelle
Besoin d'informations sur cette illustration ?
Nous contacter
Références des documents reproduits
  • CORBIN Gwenola, Étude architecturale de la Chapelle de Ti Mamm Doué à Kerfeunteun, travail universitaire de Licence, Option Architecture dans l'Ouest, 1998.

    Archives municipales de Quimper : KM 91