• enquête thématique départementale, ville de Quimper
  • enquête thématique régionale, Inventaire des lieux et objets de pardon et de pèlerinage en Bretagne
Chapelle Ty Mamm Doué, 1 chemin de Ty Mamm Doué (Quimper)
Œuvre étudiée

Dossier non géolocalisé

Localisation
  • Aire d'étude et canton Quimper
  • Commune Quimper
  • Lieu-dit Ti Mamm Doué, Keranmaner
  • Adresse 1 chemin de Ty Mamm Doué
  • Précisions anciennement commune de Kerfeunteun
  • Dénominations
    chapelle
  • Destinations
    chapelle
  • Dossier dont ce dossier est partie constituante

La chapelle Ty Mamm Doué est reconstruite au 16e siècle, à l'emplacement d'un édifice plus ancien.

La tradition explique le nom de la chapelle, "Ty Mamm Doué" (ou chapelle de la maison de la mère de Dieu) par la présence d'un petit oratoire à proximité immédiate, qui ferait lui-même référence à la maison de Nazareth où l'ange Gabriel serait apparu à Marie pour lui annoncer la naissance miraculeuse de Jésus (Annonciation). Peyron et Abgrall avancent que la première chapelle Ty Mamm Doué est construite en souvenir de la translation de la maison de Nazareth à Lorette en 1295, hypothèse qui serait corroborée par l'existence du second bâtiment, simple maison transformée en oratoire. Cet oratoire, qui subsiste jusqu'au 20e siècle, et dont quelques images anciennes témoignent, possédait une porte cintrée avec pierres d'encadrements à arêtes vives, qui invite à dater sa construction du 17e siècle. En état de ruines et à moitié enterré suite au relèvement de la route, il est démantelé en 1969, malgré son importance symbolique.

[Garance Girard, enquête thématique régionale, 2023]

En 1540, les paroissiens de Cuzon obtiennent le droit de reconstruire et d'agrandir la chapelle préexistante "appelée la chapelle de la mère dieu" sur les terres de la seigneurie de Kermaner appartenant à Pierre de Quenechvilly (Archives départementales d'Ille-et-Vilaine, 1 bf 2, arrêté du Parlement du 1er avril 1556).

Le seigneur donne son autorisation mais la volonté des paroissiens est essentielle dans le processus de reconstruction. Une partie du granite employé provient de la carrière à côté de laquelle est élevée la chapelle. Là encore, le seigneur dut permettre l'extraction de la pierre, la vendre ou bien l'offrir.

Un cartouche situé au-dessus du portail du bras du transept sud rappelle la date du début du chantier : 1541.

Les travaux s'étalent quasiment sur un demi-siècle si l'on considère les autres dates portées sur l'édifice et les différences de style qui s'expliquent par le passage progressif du gothique à la Renaissance.

On peut ainsi lire la date de 1573 sur le clocher construit à l'angle sud-ouest du bras sud du transept. Au-dessus de la porte ouverte dans le bras du transept nord apparaît la date de 1578. Enfin sur la façade ouest, l'inscription "PAX VOBIS 1592" laisse penser qu'elle est achevée à cette date. Etant donné le style encore très flamboyant des voussures du portail, l'inscription, qui fait peut-être référence à la Guerre de la Ligue (1588-1598), pourrait aussi indiquer une reprise ou un remaniement du portail préexistant à ce moment-là, à moins qu'on admette ici une forme d'archaïsme dans l'emploi de formes de la première moitié du 16e siècle. En 1605, la nef est percée au sud par une porte de style Renaissance. En 1621, est ajoutée une sacristie sur le côté nord.

En 1547, Pierre de Quenechvilly délaisse à titre de féage la terre de Keranmaner à Jehan Furic (1515-1564). On ne sait pas grand chose de ce dernier mais les Furic, dont les armes figurent sur la tribune au revers de la façade ouest, apparaissent comme les principaux bienfaiteurs de la chapelle à partir de cette date. Cette famille, qui place plusieurs de ses membres à la tête de la communauté de la ville de Quimper, demeure propriétaire de la terre de Keranmaner et donc de la chapelle jusqu'au début du 18e siècle.

Un aveu du 28 août 1775 signale que la terre de Kermanmaner est passée dans la famille de Kerguélen (Archives départementales du Finistère, 1 V 368).

Au moment de la Révolution, la chapelle et l'oratoire sont vendus nationalement le 8 Floréal, an III (27 avril 1795) à Louis Ollivier, du village de Kergariou, qui la donne ensuite à la commune de Kerfeunteun par acte du 29 août 1807.

Une ordonnance royale du 26 février 1817 (Archives départementales du Finistère, 2 V 45) confirme l'acceptation régulière de la donation des édifices par Louis Ollivier, après des années de conflits avec le nouveau propriétaire des terres de Keranmaner, le sieur Charuel. Ce dernier affirmait que seules les pierres des bâtiments avaient été vendues au sieur Ollivier et non le sol et que par conséquent, son terrain devait être débarrassé de ces constructions et des rassemblements religieux qui en gênaient l'exploitation agricole.

En 1815, la chapelle est en ruine, au point que l'évêque demande au préfet d'accéder à la demande de la fabrique de Kerfeunteun, qui souhaite utiliser les matériaux de Ty Mamm Doué pour reconstruire l'église paroissiale, endommagée par la chute de son clocher (Archives départementales du Finistère, 2 V 45).

Il n'est pas donné suite à cette demande et jusqu'en 1822, le curé en place semble s'employer à la restauration de l'édifice. Un courrier du maire de Kerfeunteun au préfet du Département, daté de 1816 et concernant la "reconstruction" projetée par le desservant, laisse deviner l'ampleur des travaux à entreprendre (Archives départementales du Finistère, 2 V 45). On n'en connaît pas le détail mais c'est peut-être à cette campagne qu'il faut rattacher la reprise de la charpente et de son décor peint.

La chapelle est classée Monument historique par arrêté du 20 mars 1903.

[Garance Girard, enquête thématique régionale, 2023]

  • Période(s)
    • Principale : 2e quart 15e siècle, 2e moitié 15e siècle , daté par source
    • Secondaire : 1er quart 16e siècle
  • Dates
    • 1542, porte la date
    • 1578, porte la date
    • 1592, porte la date
    • 1605, porte la date
    • 1621, porte la date

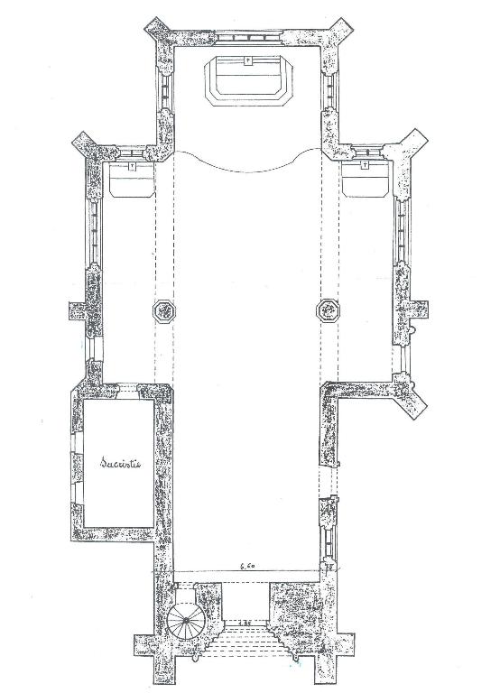
La chapelle Ty Mamm Doué affecte un plan en croix latine avec un croisillon inhabituellement large de 3 travées. La sacristie, ajoutée au 17e siècle occupe l'angle nord-ouest que forme le croisillon nord avec la nef.

La façade ouest prend la forme d'un unique pignon triangulaire contrebuté par deux contreforts creusés de niches aujourd'hui vides. Le portail à trois voussures ornées de rinceaux de vigne et de grappes de raisin s'enrichit de personnages sculptés en haut-relief, au bas des rampants du gâble couronnant l'ensemble : à gauche, un chevalier en armure tenant une hallebarde ; à droite, un seigneur présentant un phylactère portant l'inscription "PAX VOBIS 1592". Le gâble et la maçonnerie qui l'environne témoignent de remaniements peu soigneux qui remontent peut-être à la restauration générale de l'édifice à partir de 1817.

La façade sud est dominée par le vaste pignon triangulaire du bras du transept sud, à l'angle sud-ouest duquel s'élève de manière tout à fait exceptionnelle un clocher entièrement maçonné, achevé en 1573. Le portail ouvert dans ce pignon affiche un style de transition entre gothique finissant et Renaissance, mêlant les formes hérissées des pinacles aux colonnes imprimées de motifs géométriques et torsadées que l'on retrouve sur d'autres édifices du milieu du 16e siècle (Notre-Dame du Crann, à Spézet). Il est surmonté de l'inscription permettant de dater le début de la construction de la chapelle autour de 1541. Une seconde porte, percée dans le mur de la nef en 1605 affiche un classicisme consumé, avec ses pilastres, sa frise et son fronton triangulaire, à la manière d'un petit frontispice de temple antique.

La façade nord, difficile à appréhender en raison du ravin qui la surplombe, présente un caractère plus simple que la façade sud mais un pignon triangulaire élevé en symétrie avec une porte percée face au portail sud, datée par inscription de 1573. Il semblerait que la pente du terrain ait été exploitée afin de créer un niveau de cave dans la sacristie, qui n'existe plus aujourd'hui en raison sans doute, d'une mise à niveau avec le sol de la chapelle. Témoignent néanmoins de ce sous-sol qui devait être semi-enterré seulement, la cheminée de l'étage supérieure aujourd'hui suspendue à mi-hauteur du mur ouest de la sacristie et surtout la porte obstruée, visible à l'extérieur, située sous le niveau de la cheminée.

Enfin le chevet droit est surmonté d'un large pignon triangulaire conforté aux angles par des contreforts obliques animés dans leur partie supérieure de fausses gargouilles et d'animaux fantastiques sculptés en ronde-bosse. Il est percé de trois baies à réseaux flamboyants, de même que les mur-pignons du transept.

L'espace intérieur est orné d'un riche mobilier de pierre (bénitiers, niche-crédences, culots et sacraire) qui se décline en fonction des espaces et de la chronologie. Le fond de la nef est occupé par une vaste tribune maçonnée. Le chœur, séparé de la croisée par une clôture en fer forgé (18ème siècle), accueille des stalles et le maître-autel. A l'angle nord avec le transept, contre le pan coupé, est installée la statue de la Vierge de Ty Mamm Doué, dans une niche néo-gothique dont l'aménagement peut remonter aux années 1890, si l'on en croit les plaques ex-voto fixées sur le mur adjacent du sanctuaire.

Une voûte lambrissée couvre l'ensemble de la nef et du chœur. Etrangement, elle ne retombe pas sur les supports intermédiaires du transept, de grandes piles polygonales qui ne sont reliées à la charpente que par de minces entraits, dont la découpe sèche indique une datation relativement récente. Cette configuration peu conventionnelle remonte peut-être à la vaste campagne de restauration ou même reconstruction de la chapelle entreprise après 1817.

[Garance Girard, enquête thématique régionale, 2023]

  • Murs
    • granite
  • Toits
    ardoise
  • Plans
    plan en croix latine
  • Couvrements
    • lambris de couvrement
  • Escaliers
  • Typologies
  • Techniques
  • Représentations
  • Mesures
    • l : 24 m
    • la : 6,6 m (nef)
    • la : 13 m (transept)
  • Précision dimensions

    Epaisseur moyenne des murs : 0,75m.

  • Statut de la propriété
    propriété de la commune
  • Protections
    classé MH, 1903/03/20
  • Référence MH

Documents d'archives

  • Cadastre de la commune de Kerfeunteun, section A 3 du Brieux, 1835

    Archives départementales du Finistère : 3 P 90/1/4
  • Mémoire de travaux (avril-mai 1957) ; Courrier confirmant l'approbation d'un devis (10 mai 1955)...

    Médiathèque de l'architecture et du patrimoine : 0081-029-0050

Périodiques

  • Mon clocher, Kerfeunteun (Bulletin paroissial), juin 1912

    Archives départementales du Finistère : PERBP 132-8

Documents figurés

  • Planche de dessins de la chapelle Ty Mamm Doué : élévations, coupes et détails, Charles Chaussepied (1900-1901)

    Médiathèque de l'architecture et du patrimoine : G/82/29/1010
Date(s) d'enquête : 2014; Date(s) de rédaction : 2014, 2023
Articulation des dossiers