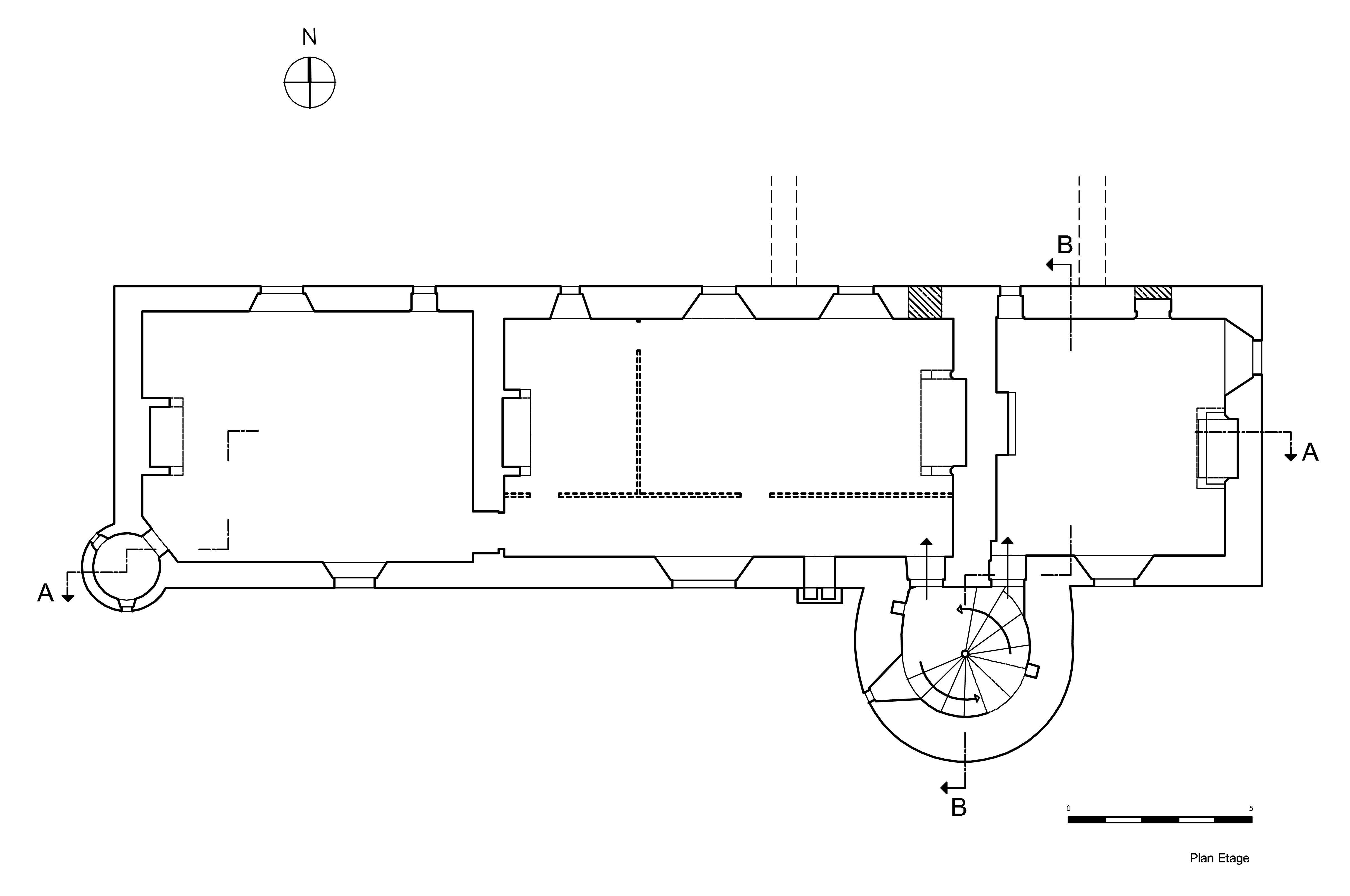
Manoir de la Ferronnais (Calorguen),
Plan du premier étage, par Nicole Le Net, 2013Immatriculation
IVR53_20132215206NUD
Auteur de l'illustration
Copyright
Diffusion
reproduction soumise à autorisation du titulaire des droits d'exploitation
Type
dessin numérique
Besoin d'informations sur cette illustration ?
Nous contacter