• inventaire topographique, Communauté de communes de Dinan
Manoir de la Ferronnais (Calorguen)
Œuvre étudiée

Dossier non géolocalisé

Localisation
  • Aire d'étude et canton Parc naturel régional de la Vallée de la Rance - Côte d'Emeraude
  • Commune Calorguen
  • Lieu-dit Ferronnais (la)
  • Dénominations
    manoir
  • Parties constituantes non étudiées
    portail, communs

L’architecture du manoir de la Ferronays, bien que plus tardive, s’inspire de celle du château du Hac au Quiou construit au milieu du 15e siècle. On y retrouve le principe d’une importante tour d’escalier en vis percée d’ouvertures de défense et d’une tourelle d’angle en surplomb. Le couvrement particulier en bulbe qui n’est plus visible aujourd’hui rappelle ceux des tourelles du château de la Chapelle Chaussée et de l’ancien manoir de la Coudraye en Ploubalay.

Le caractère défensif du logis seigneurial, bretèche, meurtrières, caches et pièces de gué témoigne de l’histoire troublée de ce secteur, marqué par les guerres de la Ligue entre 1562 et 1598.

Le calcaire coquillier employé pour la corniche, la lucarne et la tourelle secondaire témoigne de la diffusion de la pierre des faluns bien au-delà du gisement géologique lui-même. La lucarne contemporaine de l’inscription de 1569 fait partie des plus anciens modèles répertoriés en calcaire des faluns. Le fronton courbe, les pilastres en tables ainsi que les bossages piquetés se retrouvent dans les lucarnes des beaux logis de la campagne de Dinan du 16e siècle à la première moitié du 18e siècle.

Les Ferron de la Ferronays

La famille Ferron de la Ferronays, d’extraction chevaleresque, fait partie des plus anciennes familles nobles de Bretagne, elle a donné son nom à la terre de la Ferronnays. Le dictionnaire de la noblesse mentionne la famille Ferron dès le début du 12 e siècle. En 1118, un de ses membres est consigné dans une charte de donation en faveur de l’Abbaye de Marmoutiers. Le 17 janvier 1356, Jacques Ferron de la Ferronnays est présent à la revue des Ecuyers avec d’autres nobles du territoire dont Jean de Beaumanoir. Ses enfants, Olivier, Jean et Geoffroy Ferron, sont tous trois qualifiés de Chevaliers dans l’association établie en 1359 des seigneurs et gentilshommes bretons, pour la garde et le maintien du droit ducal en Bretagne.

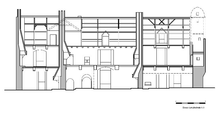
Un logis du 14e siècle

Le manoir conserve dans sa partie orientale des éléments datables de la fin du 14e siècle : cheminée de la salle de l’étage et partie basse de la cheminée de la chambre est. Celle de la grande salle de l’étage s’apparente par le profil de ses corbeaux largement chanfreinés, ses pieds droits à colonnettes avec chapiteaux à feuilles stylisées à celle du manoir de la Grande Touche à Pacé, datée de 1390.

Deux campagnes du 16e siècle

Le logis a été reconstruit au début du 16e siècle, sans doute à l’occasion du mariage en 1516 de Rolland Ferron de la Ferronnays avec Louise Troussier dont les armes en alliance figurent sur une poutre de la chambre haute, à l’est de la tour d’escalier et sur le manteau de la cheminée de la salle du rez-de-chaussée. La partie du logis située à l’ouest était à cette période plus basse comme l’indique le collage de maçonnerie au sommet des murs, au milieu de la façade. (Voir schémas des hypothèses de restitution).Le portail d’entrée au décor flamboyant correspond à cette première campagne du 16e siècle.

Le logis est agrandi en 1569 pour Gilles Ferron et Jeanne Glé de la Costardais (paroisse de Médréac) comme le signale l’inscription portée sur le linteau de la porte du rez-de-chaussée, aujourd’hui murée qui ouvrait sur un cellier établi dans une aile arrière disparue. La partie ouest du logis est surélevée vers 1614 et cantonnée d’une tourelle d’angle en surplomb. Deux grandes lucarnes de style renaissance sont installées sur la façade sud et une petite en accompagnement au sommet de la tourelle d’angle.

Sa transformation en ferme

La famille Ferron n’habite plus le manoir à partir de la deuxième moitié du 17e siècle et il est progressivement transformé en ferme. La partie supérieure de la tourelle d’angle et le portail ont été démantelés au 20e siècle.

Une réhabilitation

Les propriétaires actuels ont entrepris d’importants travaux de rénovation et projettent de remonter le portail de la cour dont les montants déposés ont été retrouvés.

La consultation du cadastre ancien

Le cadastre napoléonien de 1810 représente l’ancien environnement du manoir, communs, colombier, vivier, cour fermée et ses trois accès, ouest, nord et est qui ont été supprimés au profit d’une nouvelle allée au nord. La comparaison entre les plans de 1810 et de 1843 montre globalement la même disposition des lieux. Par contre, une excroissance visible à l’arrière du logis du manoir, au nord sur le cadastre de 1810, représente une aile disparue.

Une mise en œuvre mixte

Le logis orienté sud-est présente une hétérogénéité de matériaux, granite, schiste et faluns. La pierre des faluns extraite des carrières proches de Tréfumel ou du Quiou est principalement employée dans la corniche, lucarne et souche de cheminée et dans la tourelle d’angle en surplomb.

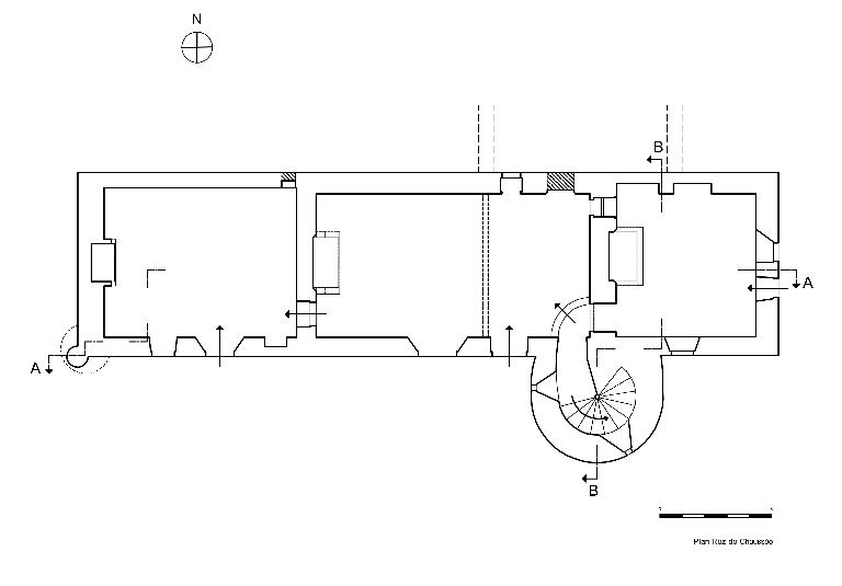
Le rez-de-chaussée

L’organisation actuelle du logis, cohérente et fonctionnelle, masque cependant des aménagements successifs. Le manoir tel qu’il se présentait à la fin du 16e siècle comprenait 4 pièces en rez-de-chaussée. Au centre, la grande salle encadrée à l’ouest d’une chambre basse, à l’est d’une cuisine, et au nord d’un cellier. Le linteau de la porte d’accès au cellier est sculpté d’une inscription : 1569 GILLES FERRON ET IENNE (Jeanne) GLE MONT FAICT FAIRE.

La grande salle, au centre, est accessible depuis la cour par une belle porte moulurée en plein-cintre. Eclairée par une très grande fenêtre a ébrasement qui diffuse la lumière, la salle est chauffée par une monumentale cheminée qui porte sur son linteau des armoiries d’alliance des familles Ferron et Troussier. La porte nord aujourd’hui murée accédait à l’aile arrière où se situait le cellier.

La cuisine, à l’est, a gardée sa cheminée en granite avec corniche en falun, un passe plat, actuellement muré et deux grands vaisseliers muraux creusés dans le mur gouttereau nord.La chambre de l’ouest, qui est actuellement la cuisine, a été surélevée lors des travaux de la deuxième campagne du 16e siècle. Outre la cheminée elle était pourvue d’un évier dans le mur sud et de latrines (disparues) dans le mur nord accessibles par une porte actuellement murée.

L’escalier

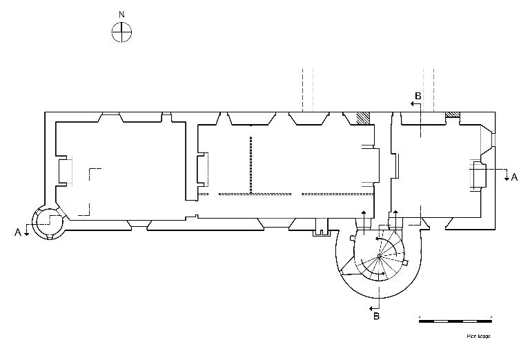
On accède à l’étage par un grand escalier en vis en bois dont les premières marches sont en pierre de taille de granite. L’ample espace de circulation se combine avec un repos dont l’usage semble être d’ordre défensif puisqu’il facilite l’accès à la meurtrière qui protège l’entrée. Un escalier secondaire creusé dans l’épaisseur du mur de la tour permet de se rendre à une petite chambre haute chauffée qui a pu servir de pièce de gué.Les murs très épais de l’escalier posent question, de même que la volée de marches qui se poursuit bien au delà de la porte de la vis secondaire. Ceci semblerait indiquer une transformation de l’arrivée primitive de l’escalier en pièce haute vraisemblablement dans la deuxième campagne du 16e siècle.

L’étage des chambres

Une suite de trois chambres compose l’étage. Celle de l’est, à l’origine la chambre seigneuriale placée au-dessus de la cuisine pour des raisons de confort a gardé l’essentiel de son agencement, hormis les latrines au nord. Son plafond aux poutres sculptées de plusieurs motifs, frise de perles, décors géométriques, balustres, armoiries d’alliance aux armes des Ferron et Troussier, témoigne du raffinement de cette pièce privée. La grande salle du milieu ouverte au sud et au nord, sans doute une chambre d’apparat, présente une monumentale cheminée de la fin du 14e siècle dont l’emplacement décalé dans la pièce s’explique pour des raisons techniques, puisqu’elle partage le même conduit que la cheminée de la cuisine du rez-de-chaussée.La dernière chambre, à l’ouest, agrandie d’une garde robe dans la tourelle en encorbellement disposait également de latrines au nord.Comme en témoigne une photo ancienne, la tourelle d’angle était coiffée d’une toiture à bulbe. Elle s’élevait sur trois niveaux. De la garde robe on pouvait accéder à une cache inférieure et à une petite pièce supérieure chauffée à usage de gué.

Inscriptions

1569 GILLES FERRON ET IENNE GLE MONT FAICT FAIRE, porte de la salle accédant au cellier.

F FERRON ET ( ?), sur l’appui de la fenêtre nord de l’étage.

( ?) ES FERRON (IE GLE) FAICT, partie d’une inscription réemployée dans la cuisine.

  • Murs
    • schiste moellon
    • granite pierre de taille
    • falun pierre de taille
  • Toits
    ardoise
  • Étages
    1 étage carré, étage de comble
  • Techniques
    • sculpture
  • Représentations
    • ornement architectural
  • Statut de la propriété
    propriété privée
  • Protections
    inscrit MH, 1926/02/27
  • Référence MH

Bibliographie

  • MONIER M.E. Châteaux, manoirs et paysages ou quinze promenades autour de Dinan. Mayenne : Joseph Floch, 1975 (nouvelle édition revue et augmentée). P450-456.

  • LE COUR GRANDMAISON. Le marquis de la Ferronnays 1876-1946. Paris : éditions Siloë, 1952.

Annexes

  • Matrices cadastrales de 1810 (A.C. Calorguen)
Date(s) d'enquête : 2012; Date(s) de rédaction : 2012