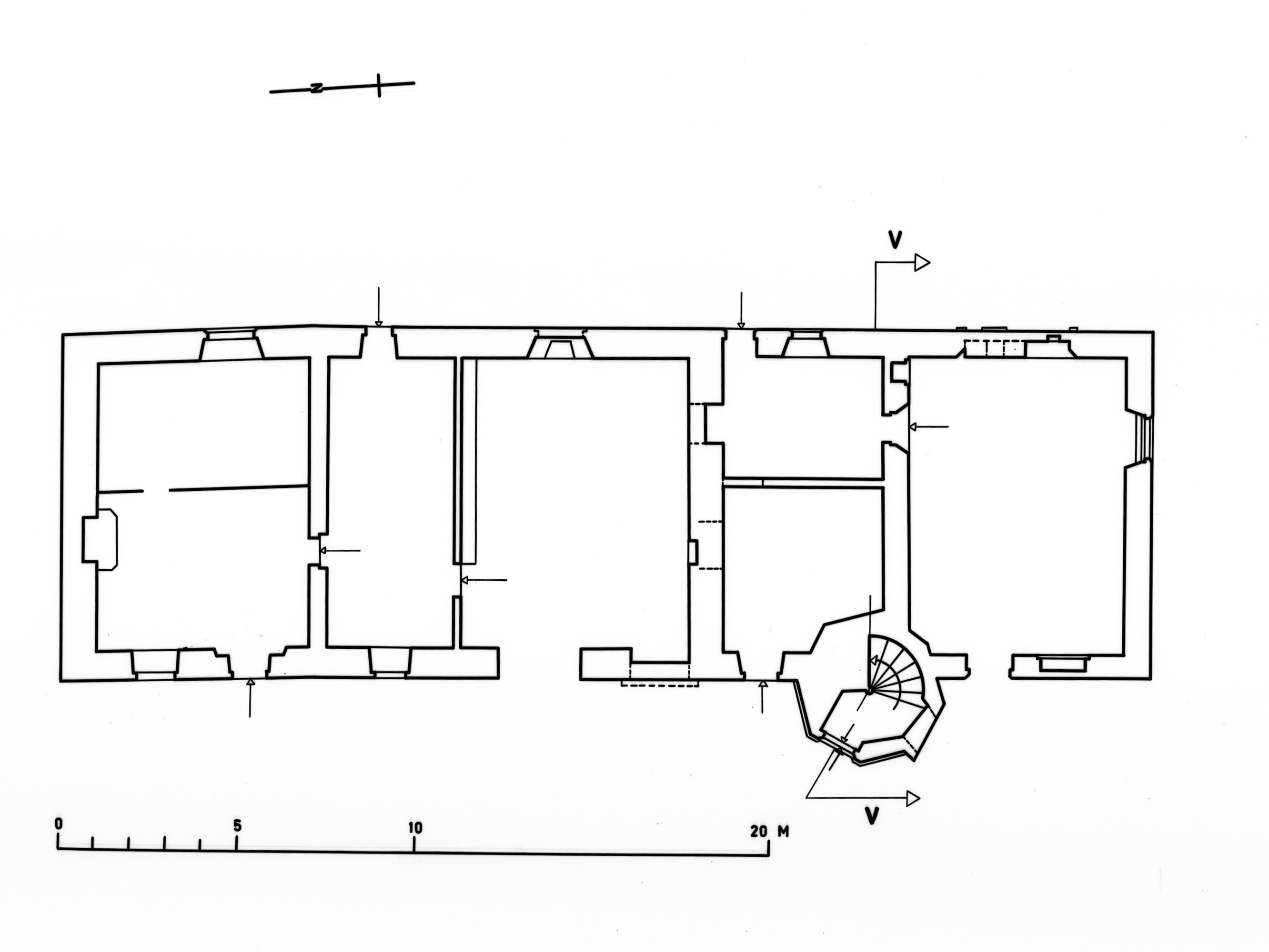
Château, Les Acres (Parigné),

Plan du rez-de-chaussée
Immatriculation
IVR53_19893500085P
Diffusion
reproduction soumise à autorisation du titulaire des droits d'exploitation
Type
phototype argentique
Besoin d'informations sur cette illustration ?
Nous contacter
Références des documents reproduits
  • Parigné - Les Acres - Plan au sol. Dessin

    Région Bretagne (Service de l'Inventaire du patrimoine culturel)