Dossier d’œuvre architecture IA35130992 | Réalisé par
  • inventaire topographique, Fougères communauté
Château, Les Acres (Parigné)
Œuvre étudiée

Dossier non géolocalisé

Localisation
  • Aire d'étude et canton Pays de Fougères - Ille-et-Vilaine
  • Commune Parigné
  • Lieu-dit Les Acres

D'après Émile Pautrel, dans son ouvrage Notions d'histoire et d'archéologie pour la région de Fougères, la seigneurie des Acres, parfois qualifiée de châtellenie, emportait la seigneurie de la paroisse ; elle relevait de Fougères et fut unie, au 17e siècle, à la terre de Saint-Brice. Le seigneurs des Acres, ou, comme l'on disait aussi de Parigné, ont joué un rôle important dans l'histoire de la province. Les Acres appartinrent au 15e siècle aux de la Motte, seigneurs de Parigné. Cette terre passa par alliance, successivement aux de Parigné de la Bouëssière, et aux de Parthenay (au 15e siècle), puis aux de Lorgeril, aux de Rohan, et aux Maure (au 16e siècle). Louis de Rochechouart, descendant, par sa mère, des de Maure, la vendit en 1653 à Jean Guérin de la Grasserie, devenu en 1674 seigneur de Saint-Brice, dont les descendants l'ont conservée, unie à la terre de Saint-Brice jusqu'à la Révolution. Maison seigneuriale de la paroisse, elle possédait un droit de haute justice.

Située à 500m du bourg, l'ancien château a été en partie démoli en 1854. Il reste aujourd'hui un grand bâtiment remanié au 18ème siècle.

Une chapelle existait autrefois dans les combles. Le manoir des Acres semble avoir été reconstruit ou très restauré en 1560 ; il est devenu le chef-lieu de la seigneurie de Parigné après la disparition du manoir de ce nom.

  • Période(s)
    • Principale : 16e siècle, 3e quart 18e siècle
  • Dates
    • 1763, porte la date

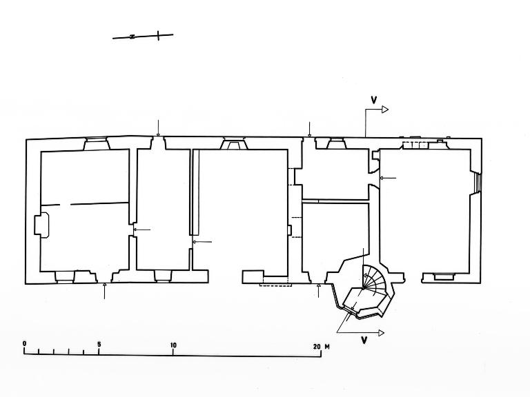
Le manoir se composait d'un bâtiment construit en moellons, élevé d'un rez de chaussée et de deux étages : chaque angle était flanqué d'une tourelle à toit aigu, celle du nord-est renfermait un escalier, sa base reposait sur le sol, les trois autres étaient en encorbellement et portaient sur deux supports massifs imitant des contre-forts : une grande arcade voutée et à cintre surbaissé ouvrait sur un couloir qui traversait le bâtiment et donnait accès à une cour.

Quelques restes de mâchicoulis semblaient indiquer l'existence d'une échauguette extérieure au dessus de cette arcade. Chaque étage était percé de ce côté de deux fenêtres munies d'un meneau et de deux barres formant croix : aucune ouverture n'existait du côté opposé. Le manoir contenait deux vastes pièces par étage, plus celles des tourelles ; ces pièces possédaient chacune une fenêtre et une grande cheminée.

Le grand bâtiment encore visible est élevé en moellon de granite. Ce bâtiment possède une porte en arc brisé dont le tympan renferme un écusson, et une tourelle polygonale découronnée. La tourelle possède une porte à corbeaux sommée d'un fronton arrondi.

  • Murs
    • granite moellon
    • granite pierre de taille
  • Toits
    ardoise
  • Statut de la propriété
    propriété privée

Bibliographie

  • ORAIN, Adolphe. Petite géographie pittoresque du département d'Ille-et-Vilaine pour servir de guide aux voyageurs dans Rennes et le Département. Rennes : P. Dubois Libraire-éditeur, 1884.

  • BANEAT, Paul. Le département d'Ille-et-Vilaine, Histoire, Archéologie, Monuments. Rennes : J. Larcher, 1929

    T.3 p.66
  • OGÉE, Jean-Baptiste. Dictionnaire historique et géographique de la province de Bretagne. Nlle éd. [1778-1780] rev. et augm. Rennes : Molliex, 1845.

  • GUILLOTIN DE CORSON, abbé. Pouillé historique de l'archevêché de Rennes. Rennes : Fougeray, Paris : René Haton, 1884.

    p. 421
  • PAUTREL, Emile. Notions d'histoire et d'archéologie pour la région de Fougères, 1927.

    pp. 516, 517, 746
Date(s) d'enquête : 2013; Date(s) de rédaction : 2013
Articulation des dossiers