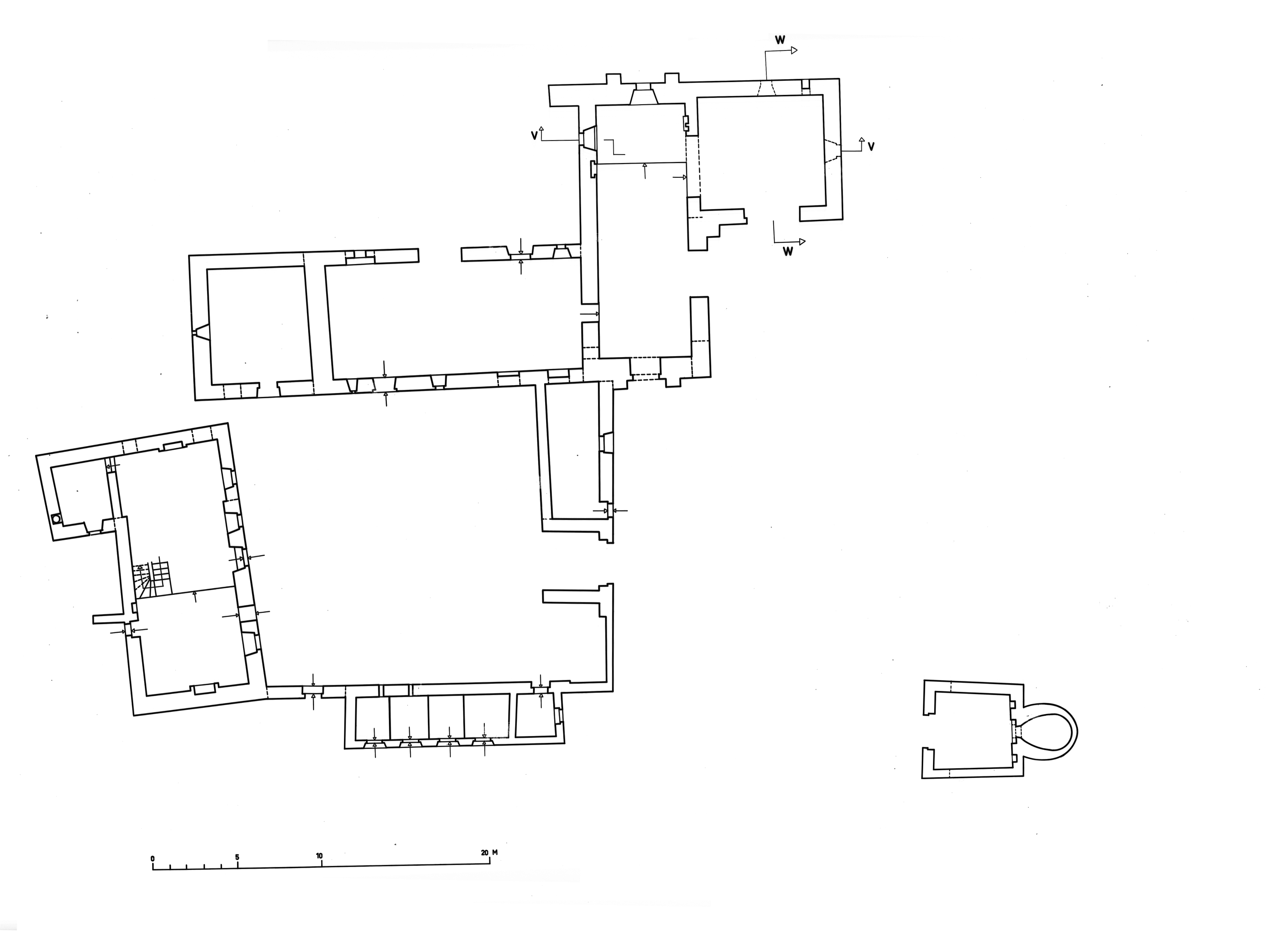
Commanderie d'Hospitaliers de Saint-Jean-de-Jérusalem, Temple de la Coeffrie (Messac fusionnée en Guipry-Messac en 2016),
Plan.Immatriculation
IVR53_19843500214P
Auteur de l'illustration
-
Service régional de l'Inventaire de BretagneService régional de l'Inventaire de BretagneCliquez pour effectuer une recherche sur cette personne.
Copyright
Diffusion
reproduction soumise à autorisation du titulaire des droits d'exploitation
Type
phototype argentique
Besoin d'informations sur cette illustration ?
Nous contacter