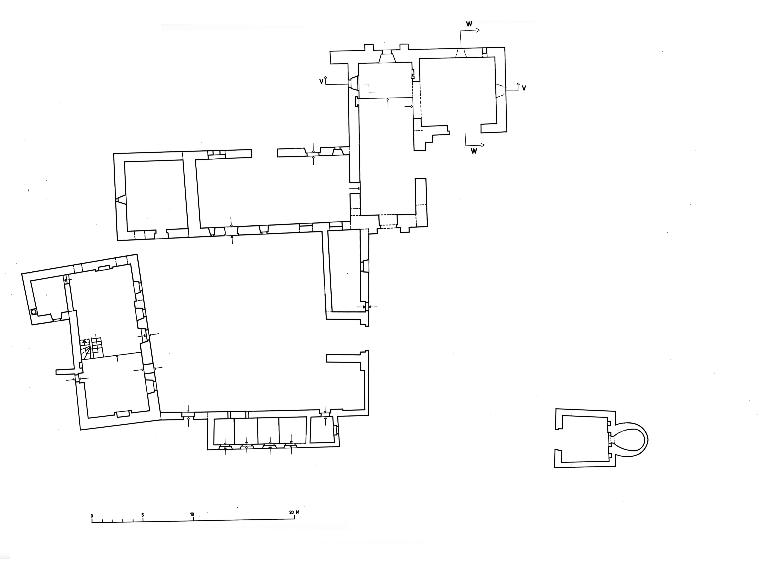
Nef de la chapelle et peintures murales 12e ou 13e siècle ; bras sud 14e ou 15e siècle ; restauration importante de la chapelle en 1621, inscription sur la charpente : F GILLES DU BUISSON CR 1621 ; partie ouest du logis 1ère moitié 17e siècle ; partie est en 1682 ; colombier construit en 1668, inscription : A FET REBATI CE COLOMBIER L'AN 1668.
Dossier d’œuvre architecture IA00007502
| Réalisé par
;
- étude d'inventaire
- enquête thématique régionale, Inventaire des commanderies templières et hospitalières de Bretagne
Commanderie d'Hospitaliers de Saint-Jean-de-Jérusalem, Temple de la Coeffrie (Messac fusionnée en Guipry-Messac en 2016)
Œuvre étudiée
Auteur
Dossier non géolocalisé
Localisation
-
Aire d'étude et canton
Bretagne - Bain-de-Bretagne
-
Commune
Guipry-Messac
-
Lieu-dit
Messac,
Temple de la Coeffrie (le)
-
Cadastre
1963
ZB 2, 3
-
Précisions
commune fusionnée après inventaire Commune inventoriée sous le nom de Messac
-
Dénominationscommanderie
-
Genred'hospitaliers de Saint-Jean-de-Jérusalem
-
Destinationsmaison
-
Parties constituantes non étudiéesédifice agricole, four à pain, puits, chapelle, cour, colombier
-
Période(s)
- Principale : 12e siècle
- Principale : 13e siècle , (incertitude)
- Principale : 14e siècle
- Principale : 15e siècle , (incertitude)
- Principale : 1ère moitié 17e siècle
- Principale : 3e quart 17e siècle
- Principale : 4e quart 17e siècle
-
Dates
- 1621, porte la date
- 1668, daté par source
- 1682, daté par source
-
Murs
- schiste
- grès
- appareil mixte
- moellon sans chaîne en pierre de taille
-
Toitsardoise
-
Étages1 étage carré, 1 vaisseau
-
Couvertures
- toit à longs pans
- pignon couvert
- noue
-
Typologiescour fermée
-
Techniques
- peinture
-
Représentations
- Christ
- Tétramorphe
-
Statut de la propriétépropriété d'une personne privée
-
Intérêt de l'œuvreà signaler
-
Protectionsinscrit MH, 1981/03/02
-
Référence MH
- (c) Inventaire général, ADAGP
- (c) Inventaire général, ADAGP
- (c) Inventaire général, ADAGP
- (c) Inventaire général, ADAGP
- (c) Inventaire général, ADAGP
- (c) Inventaire général, ADAGP
- (c) Inventaire général, ADAGP
- (c) Inventaire général, ADAGP
- (c) Inventaire général, ADAGP
- (c) Inventaire général, ADAGP
- (c) Inventaire général, ADAGP
- (c) Inventaire général, ADAGP
- (c) Inventaire général, ADAGP
- (c) Inventaire général, ADAGP
- (c) Inventaire général, ADAGP
- (c) Inventaire général, ADAGP
- (c) Inventaire général, ADAGP
- (c) Inventaire général, ADAGP
- (c) Inventaire général, ADAGP
- (c) Inventaire général, ADAGP
- (c) Inventaire général, ADAGP
- (c) Inventaire général, ADAGP
- (c) Inventaire général, ADAGP
- (c) Inventaire général, ADAGP
- (c) Inventaire général, ADAGP
- (c) Inventaire général, ADAGP
- (c) Inventaire général, ADAGP
- (c) Inventaire général, ADAGP
- (c) Inventaire général, ADAGP
- (c) Inventaire général, ADAGP
- (c) Inventaire général, ADAGP
- (c) Inventaire général, ADAGP
- (c) Inventaire général, ADAGP
- (c) Inventaire général, ADAGP
- (c) Inventaire général, ADAGP
- (c) Inventaire général, ADAGP
- (c) Inventaire général, ADAGP
- (c) Inventaire général, ADAGP
- (c) Inventaire général, ADAGP
- (c) Inventaire général, ADAGP
- (c) Inventaire général, ADAGP
- (c) Inventaire général, ADAGP
- (c) Inventaire général, ADAGP
- (c) Inventaire général, ADAGP
- (c) Inventaire général, ADAGP
- (c) Inventaire général, ADAGP
- (c) Inventaire général, ADAGP
- (c) Inventaire général, ADAGP
- (c) Inventaire général, ADAGP
- (c) Inventaire général, ADAGP
- (c) Inventaire général, ADAGP
- (c) Inventaire général, ADAGP
- (c) Inventaire général, ADAGP
- (c) Inventaire général, ADAGP
- (c) Inventaire général, ADAGP
- (c) Inventaire général, ADAGP
- (c) Inventaire général, ADAGP
- (c) Inventaire général, ADAGP
- (c) Inventaire général, ADAGP
- (c) Inventaire général, ADAGP
- (c) Inventaire général, ADAGP
- (c) Inventaire général, ADAGP
- (c) Inventaire général, ADAGP
- (c) Inventaire général, ADAGP
- (c) Inventaire général, ADAGP
- (c) Inventaire général, ADAGP
- (c) Inventaire général, ADAGP
- (c) Inventaire général, ADAGP
- (c) Inventaire général, ADAGP
- (c) Inventaire général, ADAGP
- (c) Inventaire général, ADAGP
- (c) Inventaire général, ADAGP
- (c) Inventaire général, ADAGP
- (c) Inventaire général, ADAGP
- (c) Inventaire général, ADAGP
- (c) Inventaire général, ADAGP
- (c) Inventaire général, ADAGP
- (c) Inventaire général, ADAGP
- (c) Inventaire général, ADAGP
- (c) Inventaire général, ADAGP
- (c) Inventaire général, ADAGP
Date(s) d'enquête :
1967;
Date(s) de rédaction :
1982,
2015
(c) Stéven Lemaître
Dossiers de synthèse
Photographe