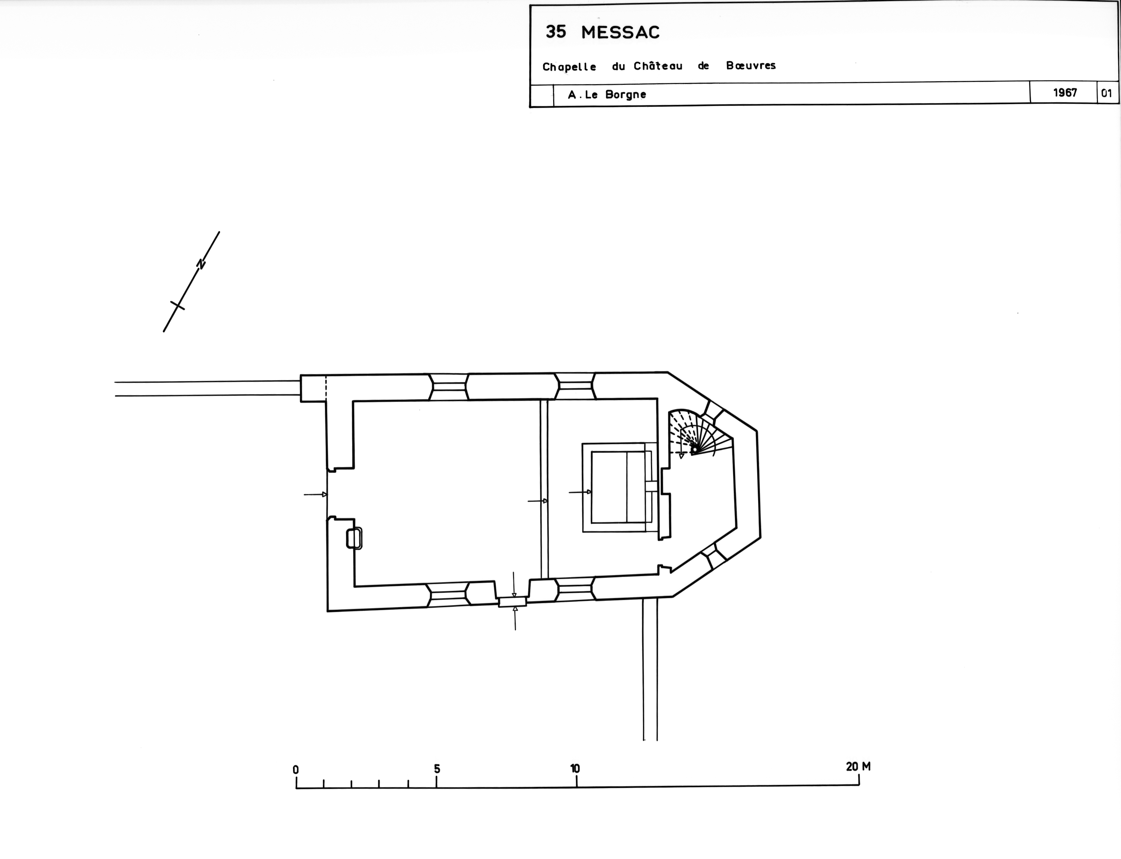
Château, Boeuvres (Messac fusionnée en Guipry-Messac en 2016),
Chapelle, plan.Immatriculation
IVR53_19843500166P
Auteur de l'illustration
Copyright
Diffusion
reproduction soumise à autorisation du titulaire des droits d'exploitation
Type
phototype argentique
Besoin d'informations sur cette illustration ?
Nous contacter
Photographe