Ce dossier correspond à une transcription numérique d’éléments d’enquêtes antérieures à 2000. Tout enrichissement est le bienvenu.
Dossier d’œuvre architecture IA00007507
| Réalisé par
Service régional de l'Inventaire de Bretagne
(Rédacteur)
Service régional de l'Inventaire de Bretagne
Cliquez pour effectuer une recherche sur cette personne.
- étude d'inventaire
Château, Boeuvres (Messac fusionnée en Guipry-Messac en 2016)
Œuvre étudiée
Auteur
Dossier non géolocalisé
Localisation
-
Aire d'étude et canton
Bain-de-Bretagne - Bain-de-Bretagne
-
Commune
Guipry-Messac
-
Lieu-dit
Messac,
Boeuvres
-
Cadastre
1963
AN
13
-
Précisions
commune fusionnée après inventaire Commune inventoriée sous le nom de Messac
-
Dénominationschâteau
-
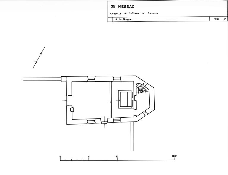
Parties constituantes non étudiéespuits, chapelle, colombier, cour, jardin, édifice agricole
Château construit dans la 1ère moitié du 17e siècle probablement pour François Huart ; agrandissement fin 17e ou début 18e siècle (actuel corps principal) ; la chapelle, le colombier et l'aménagement des jardins datent de la 1ère moitié 17e siècle ; incendié pendant la Révolution ; restauration et remaniement vers 1901, 1902 ; ferme du château partiellement datée 1704.
-
Période(s)
- Principale : 1ère moitié 17e siècle
- Principale : 17e siècle
- Principale : 18e siècle , (incertitude)
- Principale : 1er quart 20e siècle
-
Dates
- 1704, porte la date
-
Murs
- schiste
- grès
- enduit
- appareil mixte
- moellon
-
Toitsardoise
-
Étagesen rez-de-chaussée, étage de comble
-
Élévations extérieuresélévation à travées
-
Couvertures
- toit à longs pans
- toit à longs pans brisés
- croupe
- pignon couvert
-
Escaliers
- escalier dans-oeuvre : escalier en vis sans jour
-
Techniques
- sculpture
-
Représentations
- armoiries
-
Précision représentations
Armes des Huart.
-
Statut de la propriétépropriété d'une personne morale
- (c) Inventaire général, ADAGP
- (c) Inventaire général, ADAGP
- (c) Inventaire général, ADAGP
- (c) Inventaire général, ADAGP
- (c) Inventaire général, ADAGP
- (c) Inventaire général, ADAGP
- (c) Inventaire général, ADAGP
- (c) Inventaire général, ADAGP
- (c) Inventaire général, ADAGP
- (c) Inventaire général, ADAGP
- (c) Inventaire général, ADAGP
- (c) Inventaire général, ADAGP
- (c) Inventaire général, ADAGP
- (c) Inventaire général, ADAGP
- (c) Inventaire général, ADAGP
- (c) Inventaire général, ADAGP
- (c) Inventaire général, ADAGP
- (c) Inventaire général, ADAGP
- (c) Inventaire général, ADAGP
- (c) Inventaire général, ADAGP
- (c) Inventaire général, ADAGP
- (c) Inventaire général, ADAGP
- (c) Inventaire général, ADAGP
- (c) Inventaire général, ADAGP
- (c) Inventaire général, ADAGP
- (c) Inventaire général, ADAGP
- (c) Inventaire général, ADAGP
- (c) Inventaire général, ADAGP
Date(s) d'enquête :
1967;
Date(s) de rédaction :
1967
Service régional de l'Inventaire de Bretagne
Service régional de l'Inventaire de Bretagne
Cliquez pour effectuer une recherche sur cette personne.
Photographe