Les installations sportives couvertes du lycée Renan juxtaposent un préau gymnase des années 30 (qui a perdu sa vocation d'origine en 2008) et deux gymnases des années 60, dont le plus grand était complété par un bassin de natation. Conçus par des architectes bretons parmi les plus importants du XXe siècle - Georges Robert Lefort pour le premier, Jean Fauny assisté de son fils Yann pour les plus récents -, ils possèdent une valeur patrimoniale forte.
- enquête thématique régionale, patrimoine des sports
-
Panoramic BretagnePanoramic BretagneCliquez pour effectuer une recherche sur cette personne.
- (c) Panoramic Bretagne
Dossier non géolocalisé
-
Aire d'étude et canton
Bretagne
-
Commune
Saint-Brieuc
-
Adresse
2-4 boulevard Hérault
-
Dénominationsgymnase
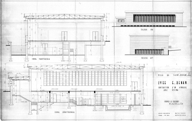
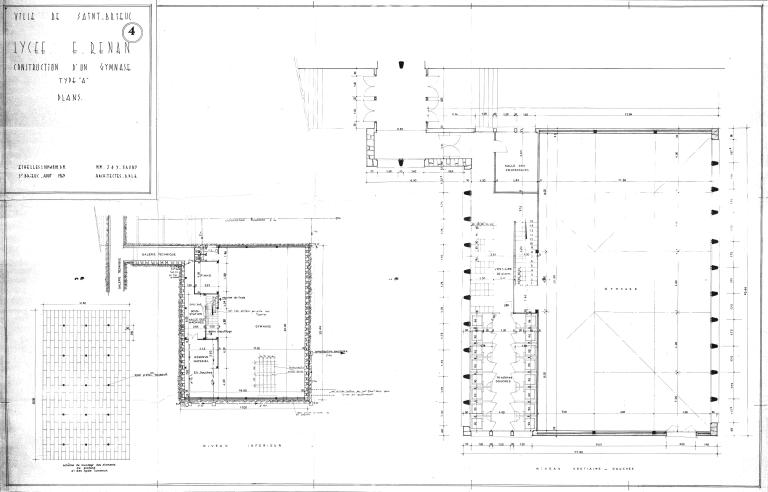
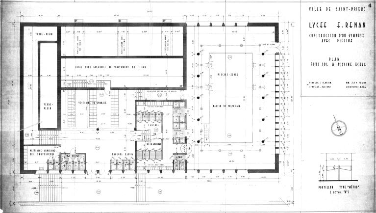
Parmi les nouveaux bâtiments du lycée de jeunes filles de Saint-Brieuc, conçus par G.-R. Lefort et inaugurés le 29 mai 1938, figurait un préau gymnase. Au début des années 1960, l'équipement est devenu insuffisant pour une population scolaire qui atteint 1400 élèves. Le programme pédagogique transmis par le ministère de l’Éducation nationale à la ville le 7 avril 1962 prévoit donc la construction d’un gymnase de type B incluant un bassin-école dans son niveau bas. Le projet élaboré par J. et Y. Fauny fait l'objet d'un arrêté d'approbation technique le 2 novembre 1962 et d'une subvention de 442 288,63 F. Le chantier s'ouvre en octobre 1963 et la réception provisoire est prononcée le 18 février 1965. Presque aussitôt, on décide de le compléter par un second gymnase, de type A, placé à l'équerre du précédent. Œuvre des mêmes architectes, il bénéficie de l'approbation technique les 22 mars 1965 et 5 décembre 1966 et d'une subvention totale de 156 000 F au taux de 65% (arrêtés des 21 juillet 1965 et 5 décembre 1966). Le procès-verbal de réception définitive est signé le 2 avril 1969. Quarante ans plus tard, les installations sportives du lycée sont restructurées par l'atelier d'architecture Hargos : le premier gymnase de Lefort est transformé en amphithéâtre, sans modification importante de façade, tandis que ceux des Fauny sont modifiés par la création d’un hall de jonction entre grand et petit gymnases avec mise en place d’un ascenseur et d’une allée assurant l’accessibilité aux PMR, transformation de l’ancienne piscine en salle d’activités physiques, édification d’une contre-façade en vitrage photovoltaïque au grand gymnase. Le permis de construire est délivré le 20 mars 2008 et les travaux débutent le 9 juillet.
-
Période(s)
- Principale : 2e quart 20e siècle , daté par source
- Principale : 3e quart 20e siècle , daté par source
- Secondaire : 1er quart 21e siècle , daté par source
-
Dates
- 1938, daté par source
- 1965, daté par source
- 1969, daté par source
- 2008, daté par source
-
Auteur(s)
-
Auteur :
Lefort Georges-Robertarchitecte attribution par sourceLefort Georges-RobertCliquez pour effectuer une recherche sur cette personne.
Architecte, diplômé de l'ENSBA en 1900, directeur de l’École régionale d'architecture de Rennes (1935-1948), 22 boulevard de la Gare, Guingamp
-
Auteur :
Fauny Jeanarchitecte attribution par sourceFauny JeanCliquez pour effectuer une recherche sur cette personne.
Architecte DPLG en 1924, architecte départemental des Côtes-du-Nord de 1926 à 1956
-
Auteur :
Fauny Yannarchitecte attribution par sourceFauny YannCliquez pour effectuer une recherche sur cette personne.
Architecte DPLG à Saint-Brieuc. Élève de l’École régionale d'architecture de Nantes, diplômé en 1956.
-
Auteur :
Gosselin Didierarchitecte attribution par sourceGosselin DidierCliquez pour effectuer une recherche sur cette personne.
Architecte, atelier Hargos, 5 boulevard de la Commune, Saint-Brieuc
-
Auteur :
Harlé Christianarchitecte attribution par sourceHarlé ChristianCliquez pour effectuer une recherche sur cette personne.
Architecte ENSAIS, Atelier Hargos, 5 boulevard de la Commune, Saint-Brieuc
-
Auteur :
Harlé Moniquearchitecte attribution par sourceHarlé MoniqueCliquez pour effectuer une recherche sur cette personne.
Architecte, Atelier Hargos, 5 boulevard de la Commune, Saint-Brieuc
-
Auteur :
Construit en béton enduit, le préau gymnase de Lefort est un beau bâtiment moderniste dont la récente transformation en amphithéâtre n'a pas dénaturé les volumes extérieurs. Situé à proximité de la villa Baratoux, relié par des galeries couvertes aux bâtiments de l'externat et de l'internat, il est précédé au nord-est par un auvent retombant sur d'élégantes colonnes, rappelant d'autres structures des années 30 comme le marché Talensac à Nantes. Ses dimensions maximales sont de 30,75 m sur 22,50 m. L'espace intérieur (20 m x 12 m) a pu servir, à l'instar de nombreux gymnases scolaires de la IIIe République, de salle d'agrès ou de salle des fêtes.
Paradoxalement, les deux gymnases des Fauny sont plus traditionnels, puisqu'ils mêlent maçonneries de granite et éléments préfabriqués pour les encadrements d'ouverture. Le bassin-école, converti en dojo en 2008, mesurait 12,50 m sur 8 m pour une profondeur de 0,90 m à 1,50 m, avec une eau chauffée en permanence entre 26° et 29°.
-
Murs
- béton
- granite
-
Toitszinc en couverture, bitume
-
Plansplan rectangulaire régulier
-
Couvertures
- terrasse
-
Statut de la propriétépropriété de la région
- (c) Archives départementales des Côtes-d'Armor
- (c) Archives départementales des Côtes-d'Armor
- (c) Archives départementales des Côtes-d'Armor
- (c) Archives départementales des Côtes-d'Armor
- (c) Archives départementales des Côtes-d'Armor
- (c) Archives départementales des Côtes-d'Armor
- (c) Archives départementales des Côtes-d'Armor
- (c) Archives départementales des Côtes-d'Armor
- (c) Archives départementales des Côtes-d'Armor
- (c) Archives départementales des Côtes-d'Armor
- (c) Panoramic Bretagne
- (c) Région Bretagne
- (c) Région Bretagne
- (c) Panoramic Bretagne
- (c) Panoramic Bretagne
- (c) Région Bretagne
- (c) Région Bretagne
- (c) Région Bretagne
- (c) Région Bretagne
- (c) Région Bretagne
- (c) Lycée Ernest Renan (Saint-Brieuc)
- (c) Région Bretagne
- (c) Région Bretagne
- (c) Région Bretagne
- (c) Région Bretagne
- (c) Région Bretagne
- (c) Région Bretagne
- (c) Région Bretagne
Panoramic Bretagne, photographie aérienne, Plouzévédé