Auteur
Résultats de la recherche : "Grammare Max" 16 résultats
Notice d'illustration
IVR53_20082213329NUCB
|
Four à boulets, la Pointe du Roselier (Plérin-sur-Mer)
Maquette en terre du four à boulets : vue latérale Est avec l'orifice d'évacuation des fumées (CAUE 22)
Notice d'illustration
IVR53_20082213330NUCB
|
Four à boulets, la Pointe du Roselier (Plérin-sur-Mer)
Maquette du four à boulets : vue frontale et latérale Ouest (CAUE 22)
Notice d'illustration
IVR53_20082213332NUCB
|
Four à boulets, la Pointe du Roselier (Plérin-sur-Mer)
Maquette du four à boulets : vue du dessus (CAUE 22)
Notice d'illustration
IVR53_20082213331NUCB
|
Four à boulets, la Pointe du Roselier (Plérin-sur-Mer)
Maquette en terre du four à boulets : vue générale (CAUE 22)
Notice d'illustration
IVR53_20042206613NUCB
|
Colombier du manoir du Porjou (Plestin-les-Grèves)
Plan en coupe des boulins (CAUE 22)
Notice d'illustration
IVR53_20042206612NUCB
|
Colombier du manoir du Porjou (Plestin-les-Grèves)
Descriptif des éléments constituant l'architecture intérieure d'un colombier : château de la Granville, Bringolo (typologie des colombiers CAUE 22)
Notice d'illustration
IVR53_20042206614NUCB
|
Colombier du manoir du Porjou (Plestin-les-Grèves)
Plan montrant l'escalier en vis secondaire pour accéder au colombier et plan vers le haut montrant les enrayures et la fenêtre d'envol (Typologie des colombiers CAUE 22)
Notice d'illustration
IVR53_20042206610NUCB
|
Colombier du manoir du Porjou (Plestin-les-Grèves)
Plan reconstitué de l'échelle d'un colombier : château de la Granville, Bringolo (CAUE 22)
Notice d'illustration
IVR53_20042206611NUCB
|
Colombier du manoir du Porjou (Plestin-les-Grèves)
Plan reconstitué des enrayures et charpente d'un colombier : Château de la Granville, Bringolo (CAUE 22)
Notice d'illustration
IVR53_20192206601NUD
|
-
Maison de marchand dite maison Saint-Pierre, 14 rue La Chalotais (Tréguier)
Plans au sol du rez-de-chaussée et du 1er étage. D'après relevés réalisés par Grammare et Belorgey, architectes. Cabinet Bonnier-Glachant
Belorgey Bernard
Belorgey Bernard
Cliquez pour effectuer une recherche sur cette personne.
Notice d'illustration
IVR53_20192206605NUD
|
-
Maison de marchand dite maison Saint-Pierre, 14 rue La Chalotais (Tréguier)
façade sur rue après restauration. D'après relevés réalisés par Grammare et Belorgey, architectes. Cabinet Bonnier-Glachant
Belorgey Bernard
Belorgey Bernard
Cliquez pour effectuer une recherche sur cette personne.
Notice d'illustration
IVR53_20192206602NUD
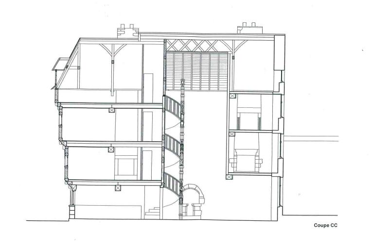
|
Maison de marchand dite maison Saint-Pierre, 14 rue La Chalotais (Tréguier)
Coupe tranversale. D'après relevés réalisés par Grammare et Belorgey, architectes. Cabinet Bonnier-Glachant
Belorgey Bernard
-
Belorgey Bernard
Cliquez pour effectuer une recherche sur cette personne.
Notice d'illustration
IVR53_20192206604NUD
|
-
Maison de marchand dite maison Saint-Pierre, 14 rue La Chalotais (Tréguier)
Façade sur rue avant restauration. D'après relevés réalisés par Grammare et Belorgey, architectes. Cabinet Bonnier-Glachant
Belorgey Bernard
Belorgey Bernard
Cliquez pour effectuer une recherche sur cette personne.
Notice d'illustration
IVR53_20192206606NUD
|
-
Maison de marchand dite maison Saint-Pierre, 14 rue La Chalotais (Tréguier)
Façade sur jardin. D'après relevés réalisés par Grammare et Belorgey, architectes. Cabinet Bonnier-Glachant
Belorgey Bernard
Belorgey Bernard
Cliquez pour effectuer une recherche sur cette personne.
Notice d'illustration
IVR53_20192206603NUD
|
-
Maison de marchand dite maison Saint-Pierre, 14 rue La Chalotais (Tréguier)
Coupe transversale. D'après relevés réalisés par Grammare et Belorgey, architectes. Cabinet Bonnier-Glachant
Belorgey Bernard
Belorgey Bernard
Cliquez pour effectuer une recherche sur cette personne.
Dossier
Dossier IA22003881
| Réalisé
par
Présentation de la commune d'Erquy
Pichouron Patrick
-
Pichouron Patrick
Cliquez pour effectuer une recherche sur cette personne.
Auteur