dessinateur
Résultats de la recherche : "Carpentier Yves" 359 résultats
Notice d'illustration
IVR53_20042904826NUC
|
Ferme, Keriouarc'h (Guilligomarc'h)
Fonctions et distributions, schéma
Notice d'illustration
IVR53_20055603447NUCA
|
Le patrimoine mobilier de l'église paroissiale
Emplacement des vitraux
Notice d'illustration
IVR53_20065605048A4
|
Le mobilier de la chapelle Saint-Mélec
Emplacement du mobilier
Notice d'illustration
IVR53_20055603451NUCA
|
Le patrimoine mobilier de la chapelle Saint-Sauveur
Emplacement du mobilier, schéma
Notice d'illustration
IVR53_19933505003A1
|
Malounière de la Verderie, Saint-Servan, 26 rue Dreux (Saint-Malo)
Relevé du rez-de-chaussée et premier étage
Notice d'illustration
IVR53_20025603578NUCB
|
Ensemble de 2 niches
Plan et localisation du mobilier
Notice d'illustration
IVR53_19985605005NUCB
|
Hôtel, douane, anciennement dit Le grand Motonnier, 14 rue du Port (Vannes)
Elévation est sur cour, relevé schématique.
Notice d'illustration
IVR53_20055603003NUCB
|
Ferme, Rouezo (Melrand)
Shéma au sol du rez-de-chaussée
Notice d'illustration
IVR53_20055603048NUC
|
Chapelle, Saint-Adrien (Saint-Barthélemy)
Plan au sol
Notice d'illustration
IVR53_20033517698NUCA
|
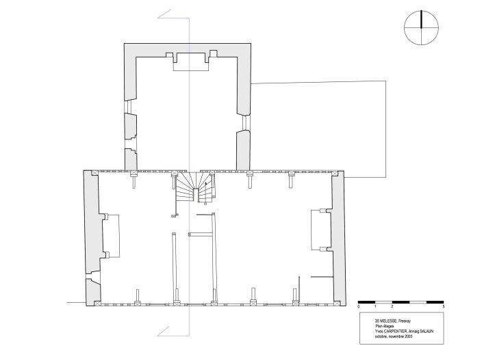
Maison, le Frenay (Melesse)
Plan étage
Notice d'illustration
IVR53_20085605009NUC
|
Le patrimoine mobilier de la chapelle Saint-Cado
Emplacement du mobilier
Notice d'illustration
IVR53_19985605007NUCB
|
Hôtel, douane, anciennement dit Le grand Motonnier, 14 rue du Port (Vannes)
Corps de latrines sur jardin, élévation sud, relevé schématique.
Notice d'illustration
IVR53_20055603006NUCB
|
Chapelle, le Guelhouit (Melrand)
Plan de localisation des objets mobiliers
Notice d'illustration
IVR53_20003500006A4
|
Ferme 2, la Chapelle (Cancale)
Plan masse dressé en 1972
Notice d'illustration
IVR53_19985605004NUCB
|
Hôtel, douane, anciennement dit Le grand Motonnier, 14 rue du Port (Vannes)
Elévation sud sur cour, relevé schématique.
Notice d'illustration
IVR53_20065603034NUCA
|
Verrières (4) baies 5, 7, 6 et 8 (verrières historiées) : Nativité de Marie ; Ascension de la Vierge ; Sainte Famille ; Couronnement de la Vierge
Emplacement des verrières
Notice d'illustration
IVR53_20085605006NUC
|
Le patrimoine mobilier de la chapelle Notre-Dame de Recouvrance
Emplacement du mobilier
Notice d'illustration
IVR53_20065603005NUC
|
Ferme, Clayo (Guénin)
Plan au sol, croquis
Notice d'illustration
IVR53_20065605171A4
|
Le mobilier de l'église paroissiale de la Trinité
Emplacement du mobilier
Notice d'illustration
IVR53_20055603007NUCB
|
Chapelle Saint-Fiacre (Melrand)
Plan de localisation des objets mobiliers
dessinateur