Résultats de la recherche : "Biet Joël" 10 résultats
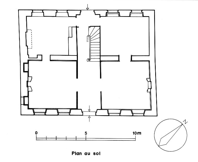
Notice d'illustration
IVR53_19882900231P
|
Manoir, Liorzou (Plounévez-Lochrist)
Manoir : plan au sol du rez-de-chaussée (état en 1988)
Notice d'illustration
IVR53_19882900229P
Manoir, Liorzou (Plounévez-Lochrist)
Manoir : plan au sol à l'étage (état en 1988)
Notice d'illustration
IVR53_19882900230P
Manoir, Liorzou (Plounévez-Lochrist)
Manoir : plan à l'entresol (état en 1988)
Notice d'illustration
IVR53_19862900227P
|
Manoir aujourd'hui ferme, l'Île en Gall (Plouescat)
Manoir : plan au sol (état en 1986)
Notice d'illustration
IVR53_19862900228P
|
-
Manoir aujourd'hui ferme, l'Île en Gall (Plouescat)
Manoir : coupe transversale au niveau de la charpente (état en 1986)
Notice d'illustration
IVR53_19882900224P
|
Maison, 8 rue du Général Leclerc (Plouescat)
Maison : plan au sol (état en 1988)
Artur Guy (reproduction)
Artur Guy (reproduction)
Cliquez pour effectuer une recherche sur cette personne.
Notice d'illustration
IVR53_19882900225P
|
Ferme, Kerscouarnec (Plouescat)
Ferme : plan au sol (état en 1986)
Artur Guy (reproduction)
Artur Guy (reproduction)
Cliquez pour effectuer une recherche sur cette personne.
Notice d'illustration
IVR53_19862900226P
|
Maison de prêtre, Kerneac'h (Plouescat)
Maison : plan au sol (état en 1986)
Artur Guy (reproduction)
Artur Guy (reproduction)
Cliquez pour effectuer une recherche sur cette personne.
Notice d'illustration
IVR53_19882900214P
|
-
Ferme, Cornamis (Plouescat)
Ferme : plan au sol (état en 1988
Notice d'illustration
IVR53_19862900247P
|
Ferme, Arvor (Tréflez)
Ferme : plan au sol (état en 1986)
Artur Guy (reproduction)
Artur Guy (reproduction)
Cliquez pour effectuer une recherche sur cette personne.