Maître d’œuvre à Plérin (22).
Résultats de la recherche : "BA Ingénierie" 26 résultats
Notice d'illustration
IVR53_20225606276NUCA
|
Dom-bunker Ouest dit "T6" avec encuvement pour canon antiaérien puis usine de construction navale, aire de réparation navale, port de pêche de Keroman (Lorient)
Vue du dessus, 2019 (Projet de réhabilitation des cathédrales de l'aire de réparation navale de Lorient-Keroman)
Notice d'illustration
IVR53_20225606271NUCA
|
Dom-bunker Est dit "T5" puis entrepôt, aire de réparation navale, port de pêche de Keroman (Lorient)
Photographies de l'état existant, 2019 (Projet de réhabilitation des cathédrales de l'aire de réparation navale de Lorient-Keroman)
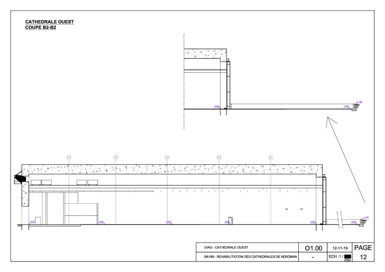
Notice d'illustration
IVR53_20225606284NUCA
|
Dom-bunker Ouest dit "T6" avec encuvement pour canon antiaérien puis usine de construction navale, aire de réparation navale, port de pêche de Keroman (Lorient)
Coupe B2-B2, 2019 (Projet de réhabilitation des cathédrales de l'aire de réparation navale de Lorient-Keroman)
BA Ingénierie
Cliquez pour effectuer une recherche sur cette personne.
BA Ingénierie
Maître d’œuvre à Plérin (22).
Notice d'illustration
IVR53_20225606263NUCA
|
Dom-bunker Est dit "T5" puis entrepôt, aire de réparation navale, port de pêche de Keroman (Lorient)
Vue en plan : plancher haut premier étage et plancher haut deuxième étage, 2019 (Projet de réhabilitation des cathédrales de l'aire de réparation navale de Lorient-Keroman)
BA Ingénierie
Cliquez pour effectuer une recherche sur cette personne.
BA Ingénierie
Maître d’œuvre à Plérin (22).
Notice d'illustration
IVR53_20225606265NUCA
|
Dom-bunker Est dit "T5" puis entrepôt, aire de réparation navale, port de pêche de Keroman (Lorient)
Elévations ouest et est, 2019 (Projet de réhabilitation des cathédrales de l'aire de réparation navale de Lorient-Keroman)
BA Ingénierie
Cliquez pour effectuer une recherche sur cette personne.
BA Ingénierie
Maître d’œuvre à Plérin (22).
Notice d'illustration
IVR53_20225606270NUCA
|
Dom-bunker Est dit "T5" puis entrepôt, aire de réparation navale, port de pêche de Keroman (Lorient)
Coupes B1-B1 et B2-B2, 2019 (Projet de réhabilitation des cathédrales de l'aire de réparation navale de Lorient-Keroman)
BA Ingénierie
Cliquez pour effectuer une recherche sur cette personne.
BA Ingénierie
Maître d’œuvre à Plérin (22).
Notice d'illustration
IVR53_20225606261NUCA
|
Dom-bunker Est dit "T5" puis entrepôt, aire de réparation navale, port de pêche de Keroman (Lorient)
Vue du dessus, 2019 (Projet de réhabilitation des cathédrales de l'aire de réparation navale de Lorient-Keroman)
BA Ingénierie
Cliquez pour effectuer une recherche sur cette personne.
BA Ingénierie
Maître d’œuvre à Plérin (22).
Notice d'illustration
IVR53_20225606268NUCA
|
Dom-bunker Est dit "T5" puis entrepôt, aire de réparation navale, port de pêche de Keroman (Lorient)
Coupe A1-A1, 2019 (Projet de réhabilitation des cathédrales de l'aire de réparation navale de Lorient-Keroman)
BA Ingénierie
Cliquez pour effectuer une recherche sur cette personne.
BA Ingénierie
Maître d’œuvre à Plérin (22).
Notice d'illustration
IVR53_20225606266NUCA
|
Dom-bunker Est dit "T5" puis entrepôt, aire de réparation navale, port de pêche de Keroman (Lorient)
Elévation nord, 2019 (Projet de réhabilitation des cathédrales de l'aire de réparation navale de Lorient-Keroman)
BA Ingénierie
Cliquez pour effectuer une recherche sur cette personne.
BA Ingénierie
Maître d’œuvre à Plérin (22).
Notice d'illustration
IVR53_20225606262NUCA
|
Dom-bunker Est dit "T5" puis entrepôt, aire de réparation navale, port de pêche de Keroman (Lorient)
Vue en plan : plancher bas rez-de-chaussée et plancher haut rez-de-chaussée, 2019 (Projet de réhabilitation des cathédrales de l'aire de réparation navale de Lorient-Keroman)
BA Ingénierie
Cliquez pour effectuer une recherche sur cette personne.
BA Ingénierie
Maître d’œuvre à Plérin (22).
Notice d'illustration
IVR53_20225606280NUCA
|
Dom-bunker Ouest dit "T6" avec encuvement pour canon antiaérien puis usine de construction navale, aire de réparation navale, port de pêche de Keroman (Lorient)
Coupe A1-A1, 2019 (Projet de réhabilitation des cathédrales de l'aire de réparation navale de Lorient-Keroman)
BA Ingénierie
Cliquez pour effectuer une recherche sur cette personne.
BA Ingénierie
Maître d’œuvre à Plérin (22).
Notice d'illustration
IVR53_20225606278NUCA
|
Dom-bunker Ouest dit "T6" avec encuvement pour canon antiaérien puis usine de construction navale, aire de réparation navale, port de pêche de Keroman (Lorient)
Elévation nord, 2019 (Projet de réhabilitation des cathédrales de l'aire de réparation navale de Lorient-Keroman)
BA Ingénierie
Cliquez pour effectuer une recherche sur cette personne.
BA Ingénierie
Maître d’œuvre à Plérin (22).
Notice d'illustration
IVR53_20225606277NUCA
|
Dom-bunker Ouest dit "T6" avec encuvement pour canon antiaérien puis usine de construction navale, aire de réparation navale, port de pêche de Keroman (Lorient)
Elévations ouest et est, 2019 (Projet de réhabilitation des cathédrales de l'aire de réparation navale de Lorient-Keroman)
BA Ingénierie
Cliquez pour effectuer une recherche sur cette personne.
BA Ingénierie
Maître d’œuvre à Plérin (22).
Notice d'illustration
IVR53_20225606273NUCA
|
Dom-bunker Ouest dit "T6" avec encuvement pour canon antiaérien puis usine de construction navale, aire de réparation navale, port de pêche de Keroman (Lorient)
Plan de masse du site, 2019 (Projet de réhabilitation des cathédrales de l'aire de réparation navale de Lorient-Keroman)
BA Ingénierie
Cliquez pour effectuer une recherche sur cette personne.
BA Ingénierie
Maître d’œuvre à Plérin (22).
Notice d'illustration
IVR53_20225606267NUCA
|
Dom-bunker Est dit "T5" puis entrepôt, aire de réparation navale, port de pêche de Keroman (Lorient)
Elévation sud, 2019 (Projet de réhabilitation des cathédrales de l'aire de réparation navale de Lorient-Keroman)
BA Ingénierie
Cliquez pour effectuer une recherche sur cette personne.
BA Ingénierie
Maître d’œuvre à Plérin (22).
Notice d'illustration
IVR53_20225606282NUCA
|
Dom-bunker Ouest dit "T6" avec encuvement pour canon antiaérien puis usine de construction navale, aire de réparation navale, port de pêche de Keroman (Lorient)
Elévation nord : intérieur de la porte métallique, 2019 (Projet de réhabilitation des cathédrales de l'aire de réparation navale de Lorient-Keroman)
BA Ingénierie
Cliquez pour effectuer une recherche sur cette personne.
BA Ingénierie
Maître d’œuvre à Plérin (22).
Notice d'illustration
IVR53_20225606264NUCA
|
Dom-bunker Est dit "T5" puis entrepôt, aire de réparation navale, port de pêche de Keroman (Lorient)
Vue en plan : plancher haut troisième étage et plancher bas quatrième étage, 2019 (Projet de réhabilitation des cathédrales de l'aire de réparation navale de Lorient-Keroman)
BA Ingénierie
Cliquez pour effectuer une recherche sur cette personne.
BA Ingénierie
Maître d’œuvre à Plérin (22).
Notice d'illustration
IVR53_20225606279NUCA
|
Dom-bunker Ouest dit "T6" avec encuvement pour canon antiaérien puis usine de construction navale, aire de réparation navale, port de pêche de Keroman (Lorient)
Elévation sud, 2019 (Projet de réhabilitation des cathédrales de l'aire de réparation navale de Lorient-Keroman)
BA Ingénierie
Cliquez pour effectuer une recherche sur cette personne.
BA Ingénierie
Maître d’œuvre à Plérin (22).
Notice d'illustration
IVR53_20225606283NUCA
|
Dom-bunker Ouest dit "T6" avec encuvement pour canon antiaérien puis usine de construction navale, aire de réparation navale, port de pêche de Keroman (Lorient)
Coupe B1-B1, 2019 (Projet de réhabilitation des cathédrales de l'aire de réparation navale de Lorient-Keroman)
BA Ingénierie
Cliquez pour effectuer une recherche sur cette personne.
BA Ingénierie
Maître d’œuvre à Plérin (22).
Notice d'illustration
IVR53_20225606269NUCA
|
Dom-bunker Est dit "T5" puis entrepôt, aire de réparation navale, port de pêche de Keroman (Lorient)
Coupe A2-A2, 2019 (Projet de réhabilitation des cathédrales de l'aire de réparation navale de Lorient-Keroman)
BA Ingénierie
Cliquez pour effectuer une recherche sur cette personne.
BA Ingénierie
Maître d’œuvre à Plérin (22).
Maître d’œuvre à Plérin (22).