Hôtel dit "Maison de Jean V", 22 rue Colvestre (Tréguier),
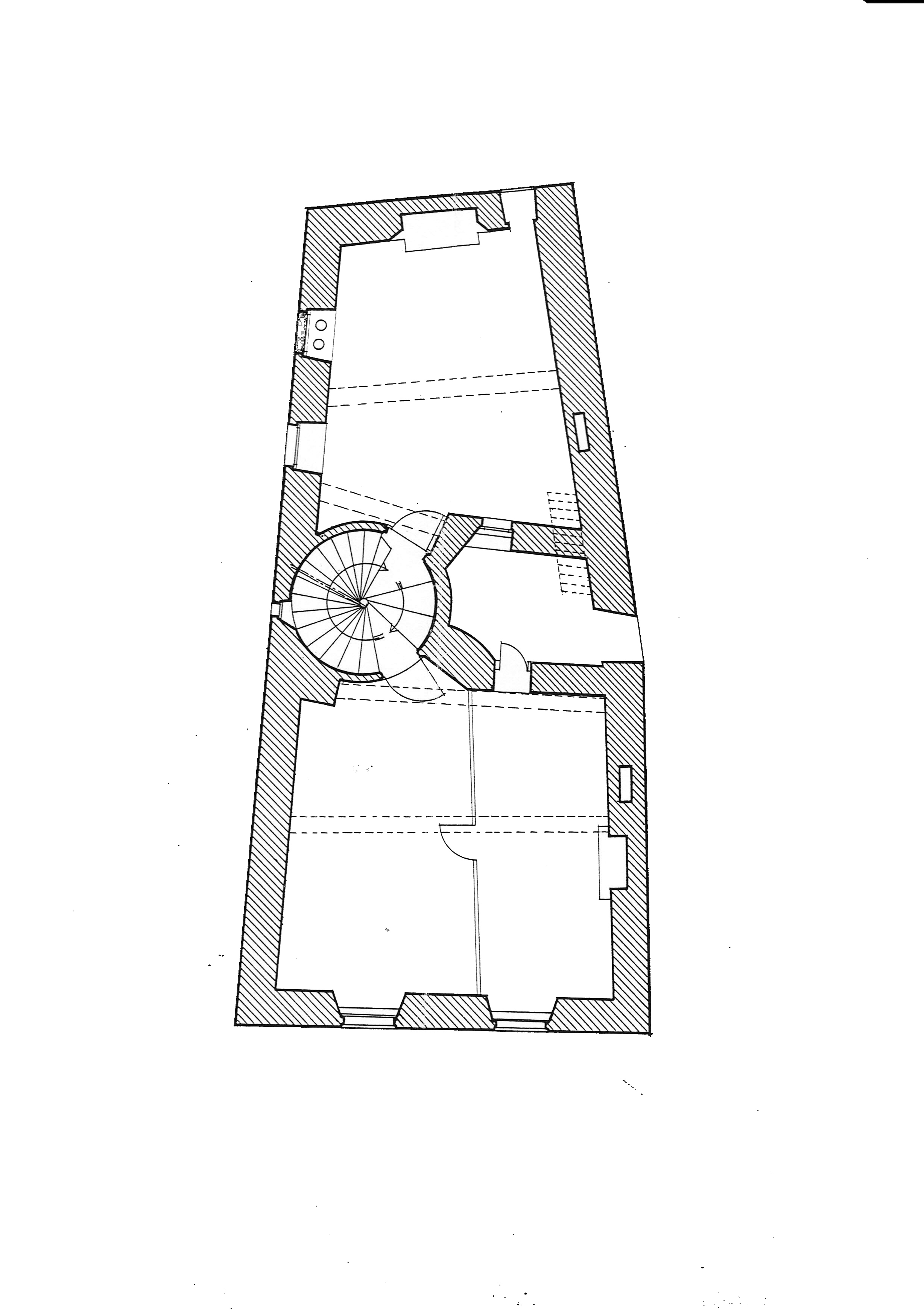
Tréguier, 22 rue Colvestre : manoir urbain, relevé du 1er étage (dessin : Daniel Leloup, architecte)Immatriculation
IVR53_20172205392NUC
Auteur de l'illustration
Copyright
- (c) Collection particulière
Diffusion
reproduction soumise à autorisation du titulaire des droits d'exploitation
Type
phototype numérique
Sujets
manoir
Besoin d'informations sur cette illustration ?
Nous contacter