Manoir, Kergaradec (Plounévez-Lochrist),
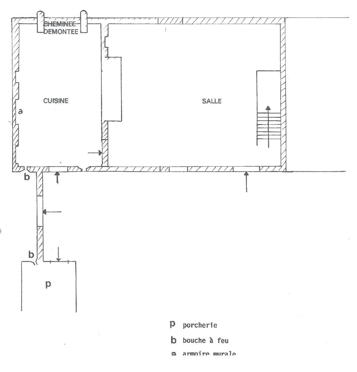
Manoir : plan schématique au sol (état en 1985)Immatriculation
IVR53_20152911972NUCB
Auteur du document reproduit
-
Menant Marie-DominiqueMenant Marie-DominiqueCliquez pour effectuer une recherche sur cette personne.
Copyright
Diffusion
reproduction soumise à autorisation du titulaire des droits d'exploitation
Type
phototype numérique
Besoin d'informations sur cette illustration ?
Nous contacter
Informations techniques
-
Échelle
- 1 : 2000.
-
Technique de relevé
- relevé manuel