Sémaphore de l'île de Penfret (Archipel des Glénan),
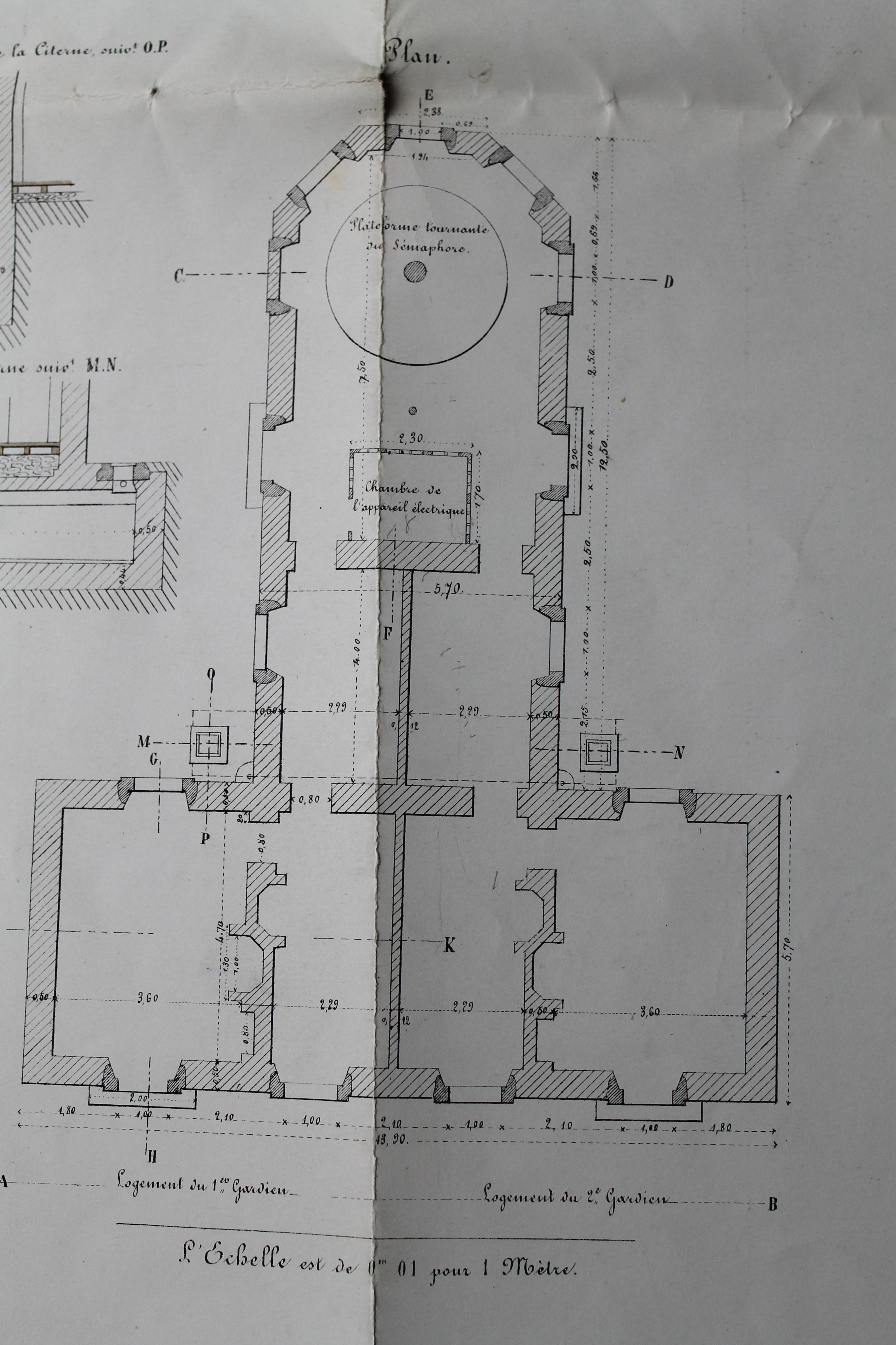
Projets de poste électro-sémaphoriques avec logement pour deux gardiens. Port de Brest, travaux hydrauliques et bâtiments civils. Signé par le directeur des travaux hydrauliques, Dehargne, Brest le 26 mai 1860Immatriculation
IVR53_20142907612NUCA
Auteur du document reproduit
-
Le Moigne ClémentineLe Moigne ClémentineCliquez pour effectuer une recherche sur cette personne.
Copyright
Année de prise de vue
2014
Diffusion
reproduction soumise à autorisation du titulaire des droits d'exploitation
Type
phototype numérique
Sujets
poste d'observation
Besoin d'informations sur cette illustration ?
Nous contacter
-
Service Historique de la Défense du Château de Vincennes : MVDD2 1613
Projets de poste électro-sémaphoriques avec logement pour deux gardiens. Port de Brest, travaux hydrauliques et bâtiments civils. Signé par le directeur des travaux hydrauliques, Dehargne, Brest le 26 mai 1860