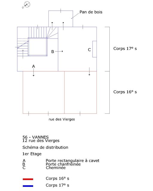
Hôtel dit hôtel de Jérusalem, 12 rue des Vierges (Vannes),
1er étage, croquis de distributionImmatriculation
IVR53_20125605140NUCB
Auteur de l'illustration
Copyright
Diffusion
reproduction soumise à autorisation du titulaire des droits d'exploitation
Type
phototype numérique
Besoin d'informations sur cette illustration ?
Nous contacter
Informations techniques
-
Technique de relevé
- relevé manuel