Château de Kerroué (Loguivy-Plougras),
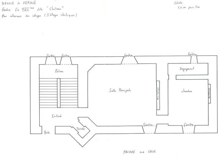
Loguivy-Plougras, Kerroué Braz : plan du château de Kerroué (rez-de-chaussée)Immatriculation
IVR53_20122206011NUCA
Auteur de l'illustration
-
Conservation Régionale des Monuments historiquesConservation Régionale des Monuments historiquesCliquez pour effectuer une recherche sur cette personne.
Copyright
Diffusion
reproduction soumise à autorisation du titulaire des droits d'exploitation
Type
phototype numérique
Besoin d'informations sur cette illustration ?
Nous contacter
Informations techniques
-
Technique de relevé
- relevé manuel