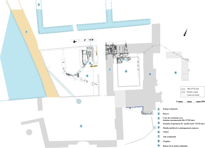
Ancienne abbaye de cisterciens, Le Relecq (Plounéour-Ménez),
Plan des fouilles archéologiques 2002-2006. DAO B. Grall, Conseil départemental du Finistère-Mission archéologieImmatriculation
IVR53_20072905767NUCA
Auteur de l'illustration
Copyright
- (c) Conseil départemental du Finistère
Diffusion
reproduction soumise à autorisation du titulaire des droits d'exploitation
Type
phototype numérique
Besoin d'informations sur cette illustration ?
Nous contacter