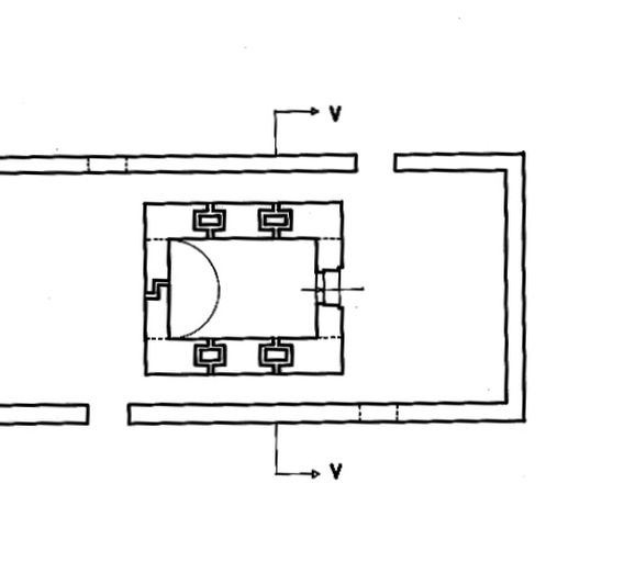
Fort de la Fraternité (Roscanvel),
Plan du magasin à poudreImmatriculation
IVR53_20062907016NUCA
Auteur du document reproduit
Auteur de l'illustration
(reproduction)
-
Lécuillier GuillaumeLécuillier GuillaumeCliquez pour effectuer une recherche sur cette personne.
Copyright
Diffusion
reproduction soumise à autorisation du titulaire des droits d'exploitation
Type
phototype numérique
Besoin d'informations sur cette illustration ?
Nous contacter
Informations techniques
-
Technique de relevé
- relevé manuel