Ferme, Le Grand Resto (Bieuzy fusionnée en Pluméliau-Bieuzy en 2019),
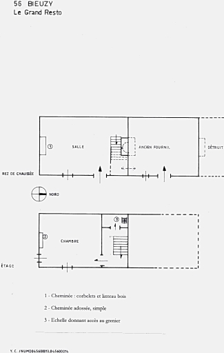
Plan au sol et de l'étage. Schéma.Immatriculation
IVR53_20045603118NUC
Auteur de l'illustration
Copyright
Diffusion
reproduction soumise à autorisation du titulaire des droits d'exploitation
Type
phototype numérique
Besoin d'informations sur cette illustration ?
Nous contacter
Informations techniques
-
Technique de relevé
- relevé schématique
dessinateur