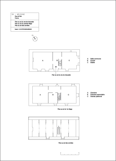
Ferme, 2 rue du Bot (Melrand),
Plans au sol du rez-de-chaussée, de l'étage et du combleImmatriculation
IVR53_20045603019NUC
Auteur de l'illustration
Copyright
Diffusion
reproduction soumise à autorisation du titulaire des droits d'exploitation
Type
phototype numérique
Besoin d'informations sur cette illustration ?
Nous contacter
Informations techniques
-
Technique de relevé
- relevé manuel
dessinateur