Église paroissiale Notre-Dame et Saint-Michel (Quimperlé),
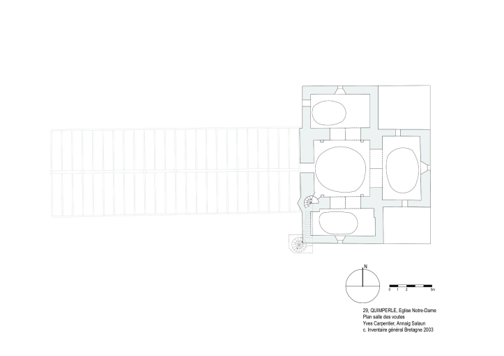
Choeur et transept. Plan des espaces au-dessus des voûtesImmatriculation
IVR53_20042905460NUC
Auteur de l'illustration
Auteur de l'illustration
(reproduction)
Copyright
Diffusion
reproduction soumise à autorisation du titulaire des droits d'exploitation
Type
phototype numérique
Besoin d'informations sur cette illustration ?
Nous contacter
Informations techniques
-
Technique de relevé
- relevé manuel
dessinateur