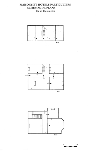
Les maisons, hôtels particuliers et immeubles sélectionnés sur la commune de Quimperlé,
Schémas de plans : 18e et 19e sièclesImmatriculation
IVR53_20042905457A4
Auteur de l'illustration
Auteur de l'illustration
(reproduction)
Copyright
Diffusion
reproduction soumise à autorisation du titulaire des droits d'exploitation
Type
dessin non numérique
Besoin d'informations sur cette illustration ?
Nous contacter
Informations techniques
-
Technique de relevé
- relevé schématique
dessinateur