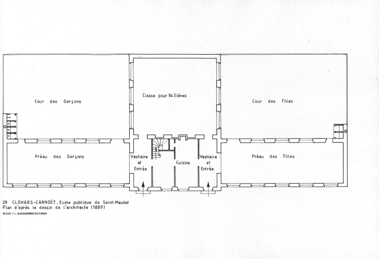
Les écoles sur la commune de Clohars-Carnoët,
Saint-Maudez. Ecole publique. Plan au sol, d'après le projet de l'architecte, 1889Immatriculation
IVR53_20032901619NUC
Auteur de l'illustration
-
Douard Christel (reproduction)Douard Christel (reproduction)Cliquez pour effectuer une recherche sur cette personne.
Copyright
Diffusion
reproduction soumise à autorisation du titulaire des droits d'exploitation
Type
phototype numérique
Besoin d'informations sur cette illustration ?
Nous contacter
Informations techniques
-
Technique de relevé
- relevé manuel
dessinateur