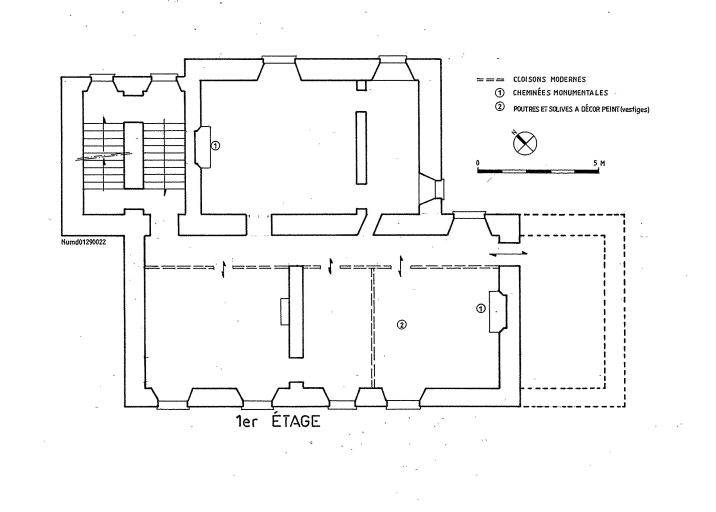
Hôtel particulier, 34-36 rue Brémond d'Ars (Quimperlé),
Partie sud. Plan schématique du premier étageImmatriculation
IVR53_20032901309NUC
Auteur de l'illustration
Auteur de l'illustration
(reproduction)
Copyright
Diffusion
reproduction soumise à autorisation du titulaire des droits d'exploitation
Type
phototype numérique
Besoin d'informations sur cette illustration ?
Nous contacter
Informations techniques
-
Technique de relevé
- relevé manuel
dessinateur