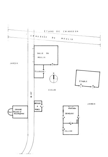
Moulin, le Moulin de Changeon (Livré-sur-Changeon),
Restitution en plan d'après les procès verbaux des saisies révolutionnairesImmatriculation
IVR53_20013524164A4
Auteur de l'illustration
Auteur de l'illustration
(reproduction)
Copyright
Diffusion
reproduction soumise à autorisation du titulaire des droits d'exploitation
Type
dessin non numérique
Besoin d'informations sur cette illustration ?
Nous contacter
Informations techniques
-
Technique de relevé
- relevé manuel
dessinateur