Maison, 1 rue Glatinier (Josselin),
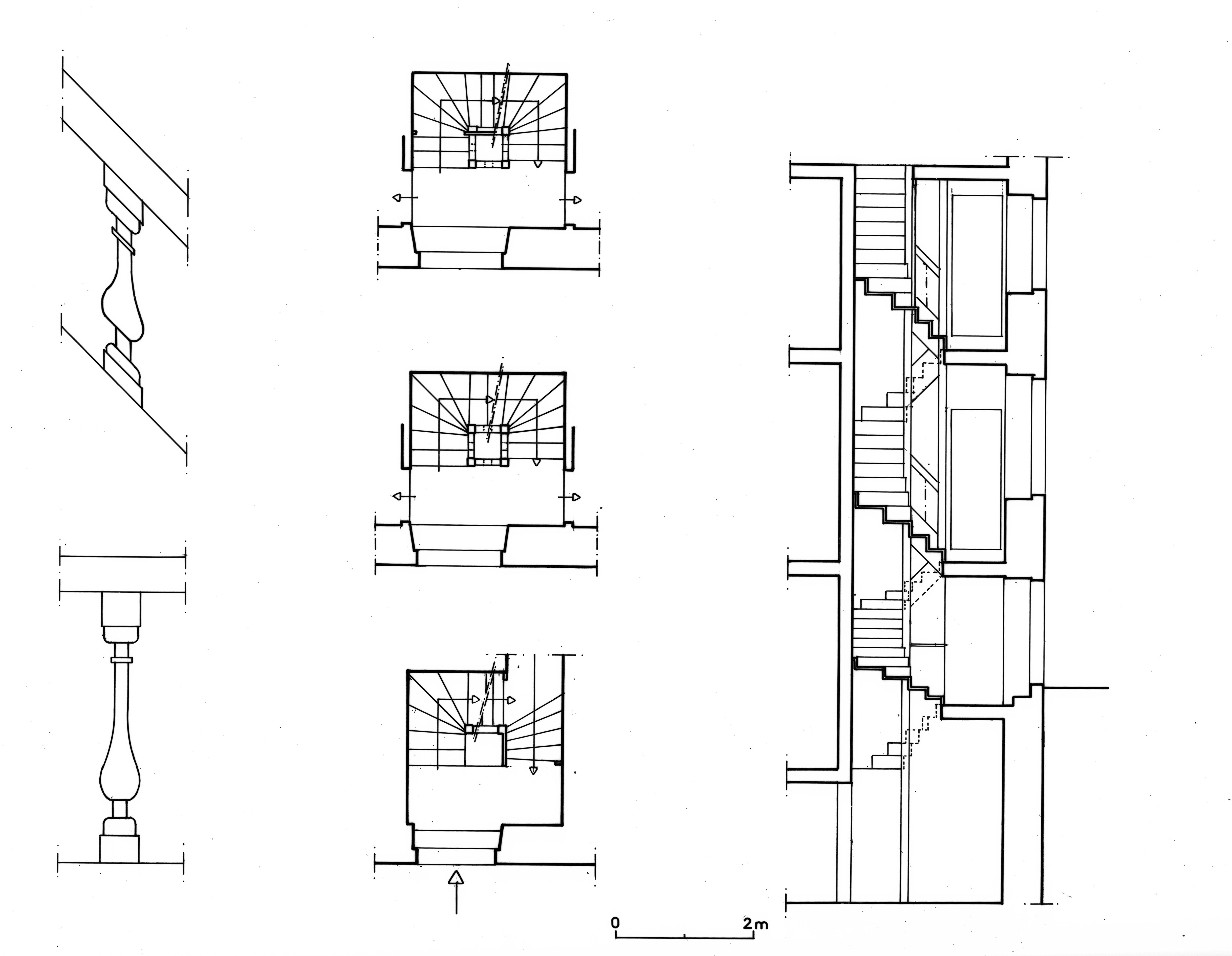
Maison, escalier : coupe, plan et détails des balustres (état en 1994)Immatriculation
IVR53_19945600121P
Auteur du document reproduit
- ;
Auteur de l'illustration
-
Artur Guy (reproduction)Artur Guy (reproduction)Cliquez pour effectuer une recherche sur cette personne.
Auteur de l'illustration
(reproduction)
Copyright
Diffusion
reproduction soumise à autorisation du titulaire des droits d'exploitation
Type
phototype argentique
Besoin d'informations sur cette illustration ?
Nous contacter
Informations techniques
-
Technique de relevé
- relevé manuel
dessinateur