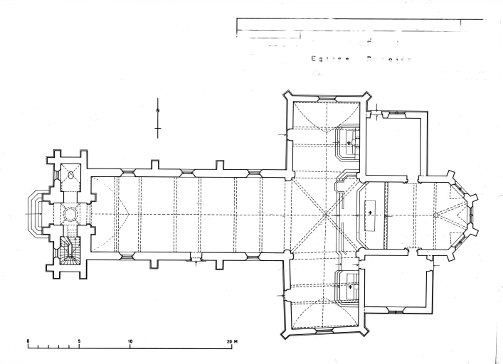
Eglise paroissiale Notre-Dame (Parigné),
Plan.Immatriculation
IVR53_19903500140P
Auteur de l'illustration
Copyright
Diffusion
reproduction soumise à autorisation du titulaire des droits d'exploitation
Type
phototype argentique
Besoin d'informations sur cette illustration ?
Nous contacter
Photographe