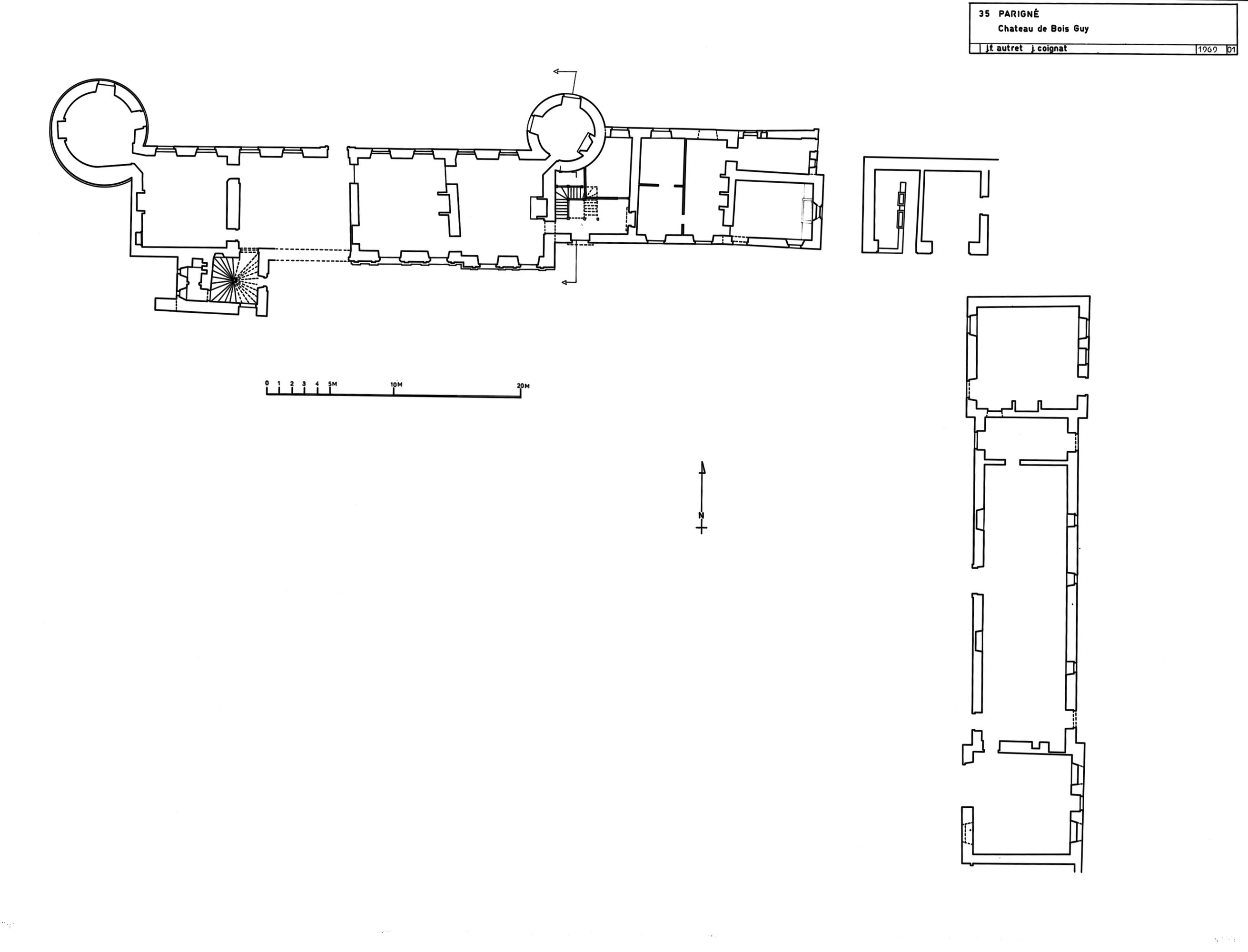
Château, Le Bois Guy (Parigné),

Plan du rez-de-chaussée
Immatriculation
IVR53_19903500087P
Diffusion
reproduction soumise à autorisation du titulaire des droits d'exploitation
Type
phototype argentique
Besoin d'informations sur cette illustration ?
Nous contacter
Références des documents reproduits
  • Parigné - château du Bois Guy : plan du rez-de-chaussée. Dessin.

    Région Bretagne (Service de l'Inventaire du patrimoine culturel)