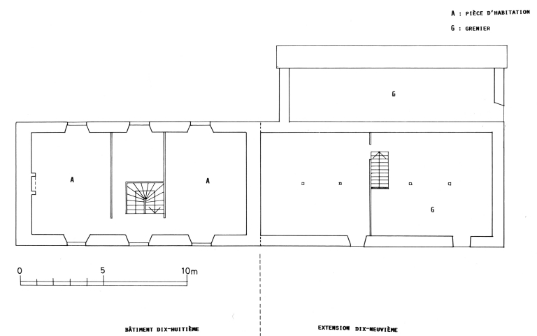
Maison, la Croix Huchard (Montfort-sur-Meu),
Plan de l'étage de la Croix HuchardImmatriculation
IVR53_19893500397P
Auteur de l'illustration
(reproduction)
Copyright
Diffusion
reproduction soumise à autorisation du titulaire des droits d'exploitation
Type
phototype argentique
Besoin d'informations sur cette illustration ?
Nous contacter
Informations techniques
-
Technique de relevé
- relevé manuel