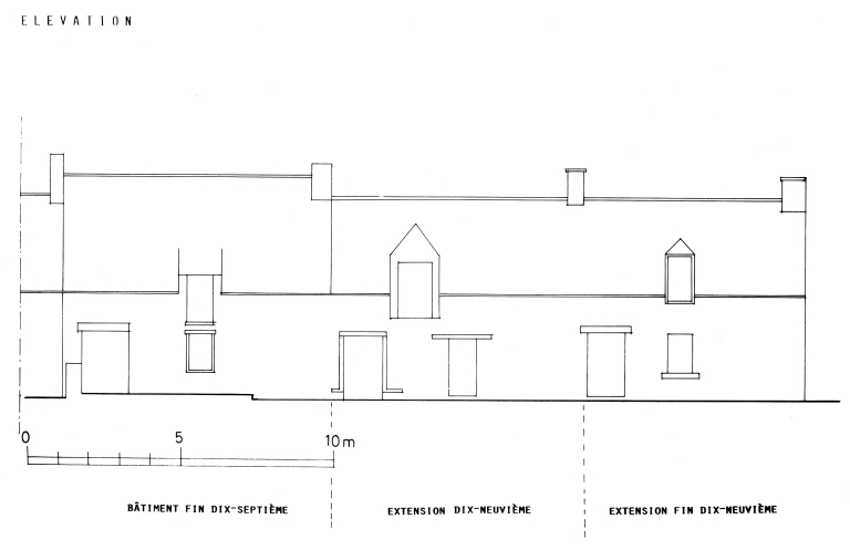
Alignement de maisons, la Chevretais (Montfort-sur-Meu),
Elévation de la ChevretaisImmatriculation
IVR53_19893500393P
Auteur de l'illustration
(reproduction)
Copyright
Diffusion
reproduction soumise à autorisation du titulaire des droits d'exploitation
Type
phototype argentique
Besoin d'informations sur cette illustration ?
Nous contacter
Informations techniques
-
Technique de relevé
- relevé manuel