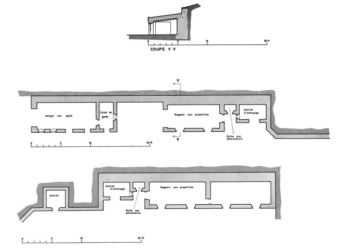
Batterie de mortiers (4 mortiers M. de 30 cm. modèle 1883 sur affûts M modèle 1883 à pivot antérieur puis modèle 1883-T-1893 sur affûts M modèle 1883 à pivot antérieur modifiés), Pointe des Capucins (Roscanvel),
Plan de détail des magasins de la batterie de mortiers de la pointe des CapucinsImmatriculation
IVR53_19872900180PA
Auteur du document reproduit
Auteur de l'illustration
-
Artur Guy (reproduction)Artur Guy (reproduction)Cliquez pour effectuer une recherche sur cette personne.
Auteur de l'illustration
(reproduction)
Copyright
Diffusion
reproduction soumise à autorisation du titulaire des droits d'exploitation
Type
phototype argentique
Besoin d'informations sur cette illustration ?
Nous contacter
Informations techniques
-
Technique de relevé
- relevé manuel