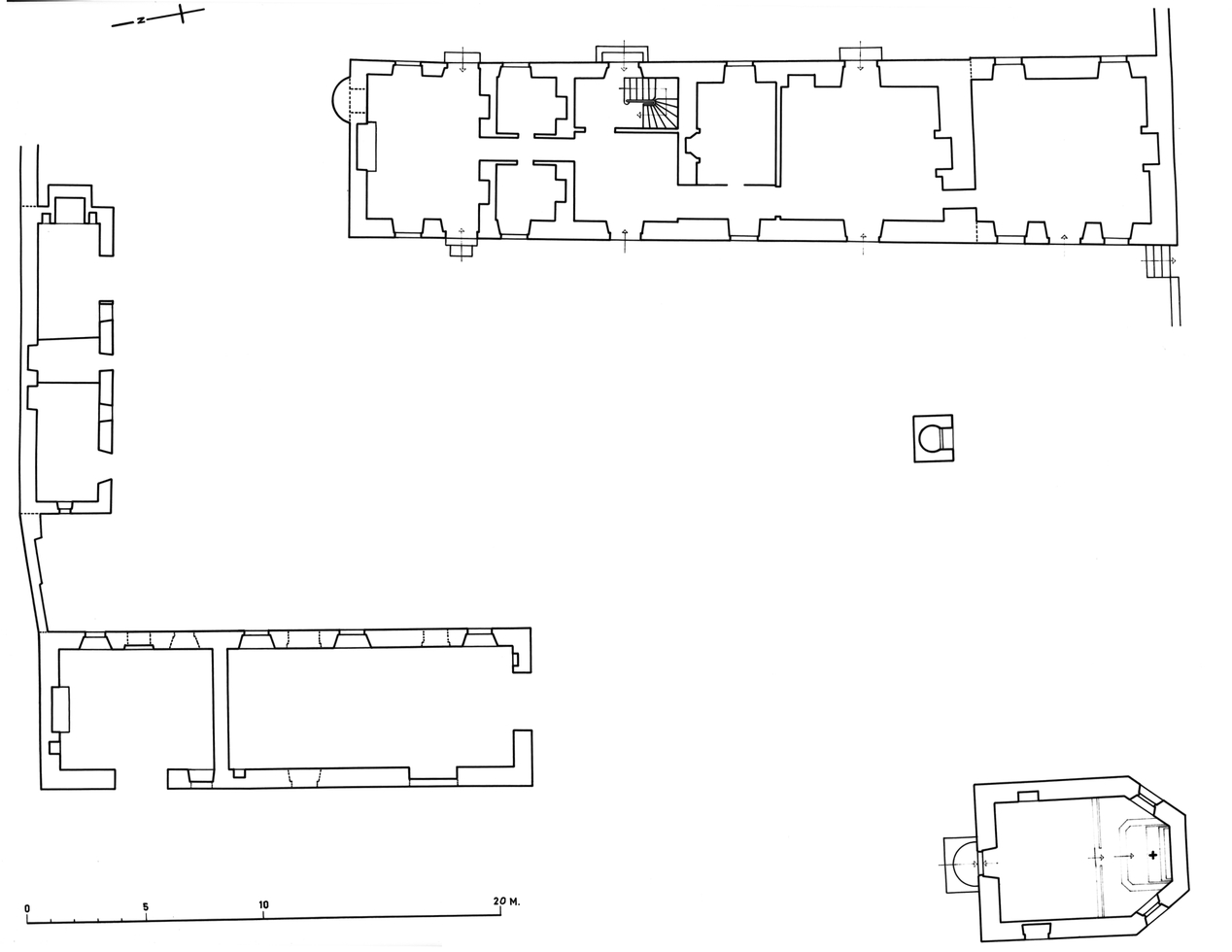
Manoir, la Fiollais (Saint-Senoux),
Ferme - Plan masse.Immatriculation
IVR53_19863500923P
Auteur de l'illustration
Copyright
Diffusion
reproduction soumise à autorisation du titulaire des droits d'exploitation
Type
phototype argentique
Besoin d'informations sur cette illustration ?
Nous contacter