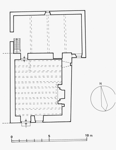
Maison, la Sichère (Saint-Brieuc-des-Iffs),
Plan au sol.Immatriculation
IVR53_19863500064P
Auteur de l'illustration
Copyright
Diffusion
reproduction soumise à autorisation du titulaire des droits d'exploitation
Type
phototype argentique
Besoin d'informations sur cette illustration ?
Nous contacter