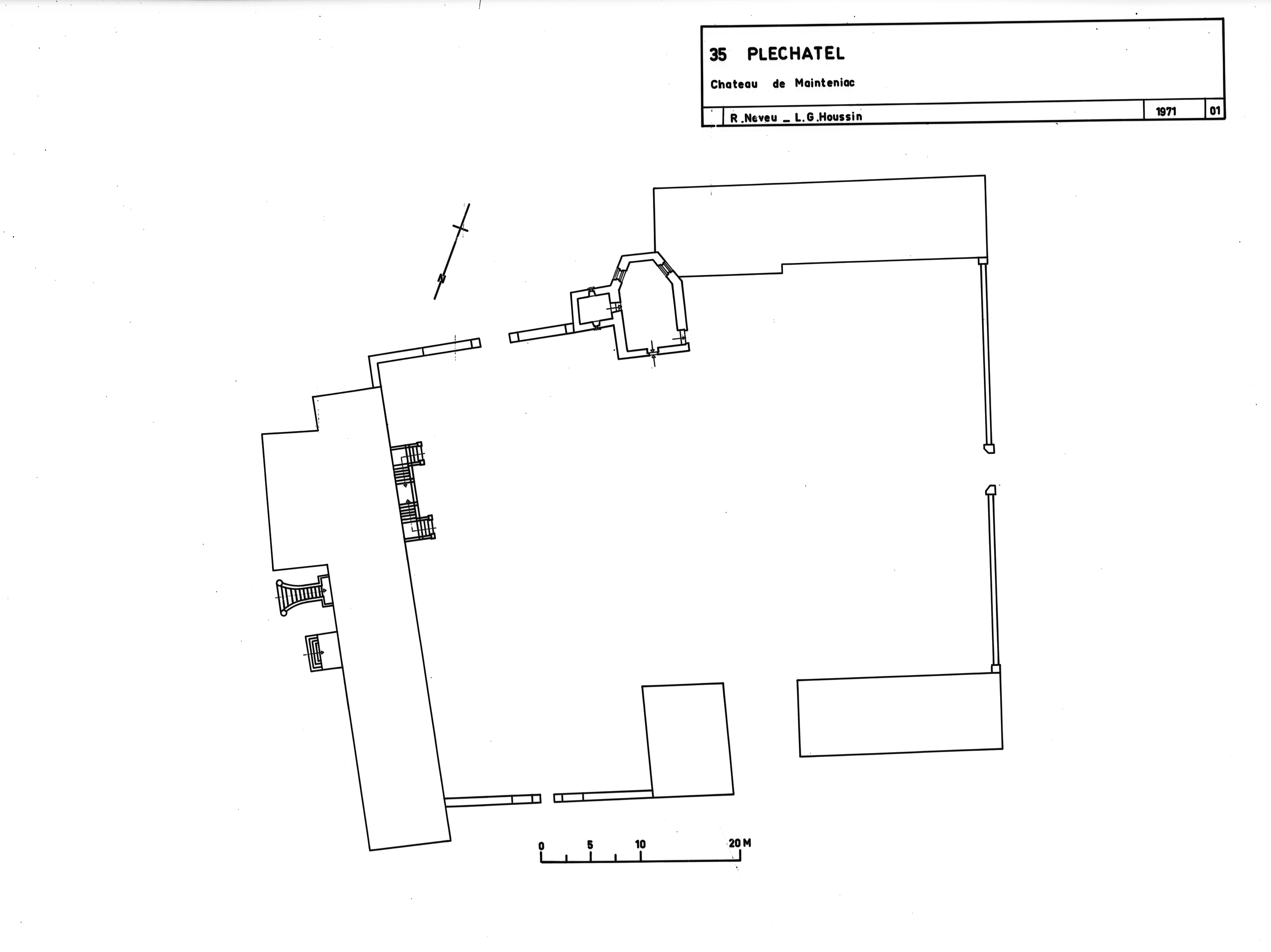
Château, Mainteniac (Pléchâtel),
Plan d''ensemble.Immatriculation
IVR53_19843501251P
Auteur de l'illustration
Copyright
Diffusion
reproduction soumise à autorisation du titulaire des droits d'exploitation
Type
phototype argentique
Besoin d'informations sur cette illustration ?
Nous contacter
Photographe