Voie ferrée sur la Côte de Granit Rose,
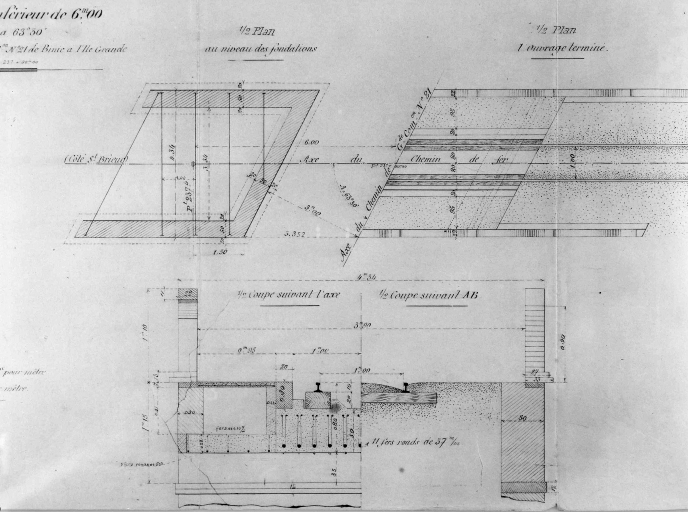
Ligne Saint-Brieuc - Paimpol - Tréguier : passage inférieur de 6,60 m, plan du niveau des fondations.Immatriculation
IVR53_19842200054P
Auteur de l'illustration
Copyright
Diffusion
reproduction soumise à autorisation du titulaire des droits d'exploitation
Type
phototype argentique
Besoin d'informations sur cette illustration ?
Nous contacter