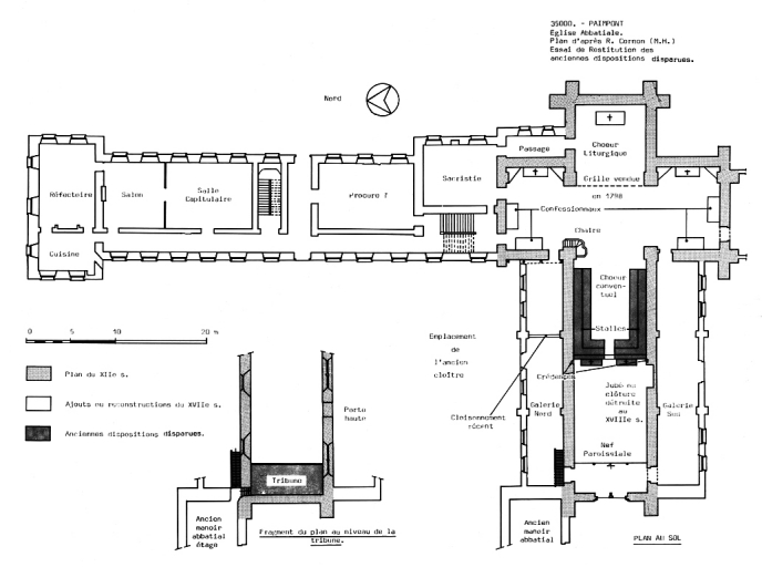
Abbaye de chanoines réguliers de Saint Augustin, actuellement église paroissiale Notre Dame, presbytère et mairie (Paimpont),
Essai de restitution des anciennes dispositions (d'après plan R. Cornon)Immatriculation
IVR53_19833500088P
Auteur de l'illustration
-
Artur Guy (reproduction)Artur Guy (reproduction)Cliquez pour effectuer une recherche sur cette personne.
Auteur de l'illustration
(reproduction)
Copyright
Diffusion
reproduction soumise à autorisation du titulaire des droits d'exploitation
Type
phototype argentique
Besoin d'informations sur cette illustration ?
Nous contacter
Informations techniques
-
Technique de relevé
- relevé manuel